3-комнатная квартира: Санкт-Петербург, улица Лёни Голикова, 7 (57.9 м²)
Продается уникальная трехкомнатная квартира на улице Лёни Голикова, 7 в Санкт-Петербурге:
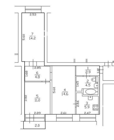
Основные характеристики:
- Площадь: общая 57,9 м², жилая 25,2 м², кухня 5,9 м²
- 2 этаж 9-этажного кирпичного дома (1969 г.)
- Высота потолков 2,5 м
- Окна на улицу и во двор
Капитальный ремонт по проекту строителя и дизайнера А. Земского:
- Полная перепланировка с демонтажем старых конструкций
- Дезинсекция и герметизация всех стыков
- Звукоизоляция пола, скрытая проводка в стяжке
- Кварц-виниловый ламинат без стыков и порожков долговечное покрытие
- Теплый пол в прихожей и санузле с цельным керамогранитом без швов невероятно упрощает уборку
- Перегородки из газоблоков с цементной штукатуркой для идеального микроклимата
- Тканевое потолочное покрытие для звукоизоляции
- Усиленные с повышенной шумоизоляцией входная дверь и окна со скрытыми петлями
- Современная вентиляция: бризеры с фильтрами, независимые воздуховоды в кухне и санузле
- Бесшумные магнитные замки межкомнатных дверей
- Видеонаблюдение
- Видеодомофон
Мебель и техника в комплекте:
- Кухонный гарнитур Смарт Мебель с посудомоечной машиной Schaub Lorenz
- Мойка OMOIKIRI Omi из вороненой стали
- Измельчитель отходов Bort Alligator Plus
- Вытяжка IKEA UNDERVERK (80 см) с подсветкой
- Полутораспальный раскладной диван
- Двуспальная кровать из массива сосны с ортопедическим основанием и новым матрасом
- Подвесные прикроватные тумбы из массива сосны
- Шкаф IKEA Pax и два больших платяных шкафа
- Хозяйственные шкафы в коридоре и санузле
- Обувница с мягким верхом для сидения в прихожей
Развитая инфраструктура района:
- СПбГМТУ для будущих студентов
- Школы и детские сады для ваших детей
- Спортивная инфраструктура: каток, площадки, центр единоборств
- Магазины, кафе и парки в пешей доступности
- Романтичный пруд — идеальное место для семейных прогулок и отдыха
- 18 минут пешком до м. "Проспект Ветеранов"
- Всегда есть место для парковки!
Преимущества окружения:
- Интеллигентные дружелюбные соседи
- Бывшая заведующая де
Особенности
Другие 3-х комнатные квартиры
Последние добавленные апартаменты
1-комнатная квартира: Санкт-Петербург, проспект Обуховской Обороны, 36 (34 м²)
1-комнатная квартира: Санкт-Петербург, Белоостровская улица, 28 (45 м²)
1-комнатная квартира: Санкт-Петербург, проспект Авиаконструкторов, 63 (39 м²)
О нас говорят
Хорошая услуга «Личный помощник». За вами закрепляют менеджера, который подбирает для вас варианты, помогает с подписанием договора и проверкой квартиры. Константин оперативно отвечал на наши вопросы и подстраивался под возникающие в ходе поиска требования.
Ins Fairy
Нашел себе отличную квартиру в Мск на Локалс. В этот раз пользовался услугой Личный помощник; Каждый день мне присылали варианты и по моим ответам уточняли мои критерии. В итоге выбрали прямо то, что мне было надо!
Ilya Malov
Отличный сервис! Нужный вариант подобрали уже на следующий день после обращения. Документы с арендодателем я подписала в конце той же недели и сразу переехала. Квартира после ремонта, все новое, я — первый арендатор, до метро 15 минут пешком. Это потрясающе!
Maria Levkina
Поиски квартиры заняли ровно неделю, Андрей проверял все варианты и составлял подробное описание. Так же оказал помощь при подписании договора. И вот теперь, я снимаю квартиру без комиссии, от собственника, с хорошим ремонтом, в новом доме по приемлемой цене.
Dmitry Kovtun
Клиентоориентированность — на высшем уровне. И форма связи любая.. мне было удобно общаться через почту — не проблема: в будни и даже в выходные, и днем и ночью — постоянно на связи) В какой-то момент даже подумала, что личный помощник никогда не отдыхает))
Teresa Olehnovich
Услуга «Личный помощник» — это не только дешевле, чем платить деньги каким-то непонятным посредникам или риэлторам, но и гарантированная ежедневная консультация от грамотного специалиста. Одним словом, всё очень понравилось.
Алина Василевская
Моя оценка 5! Нашли с личным помощником то, что нужно!! Удобно и безопасно. Отличный, проверенный сайт! Спасибо, Локалс!
Еленка Потапова
Искал с помощью услуги «Личный помощник». Сервис справился с поставленной перед ним задачей — найти мне жильё в короткие сроки (дедлайн 1,5 недели). Спасибо!
Dimas
У меня только положительные впечатления остались. Мне присылал варианты каждый день, иногда даже дважды. Всегда оперативно реагировал на мои пожелания. В итоге, так и сняли одну из предложенных квартир и очень довольны.
Любовь












