















2-комнатная квартира: Санкт-Петербург, улица Щербакова, 3к1 (50.9 м²)
ID: 394298
Сдается уютная двухкомнатная квартира в Приморском районе СПб — ул. Щербакова, 3к1 (район Коломяги).
Ближайшее метро «Удельная» — можно дойти за 20 минут, удобно добираться также до ст. м. «Озерки», «Пионерская» и «Комендантский проспект». Для автомобилистов — прямые выезды на пр. Энгельса, Выборгское шоссе и КАД по ул. Парашютной.
Квартира на 5 этаже 10-этажного дома 1996 года постройки. Дом ЖСК, хорошая парадная, новый лифт (заменен в 2025 г.), домофон, интеллигентные соседи.
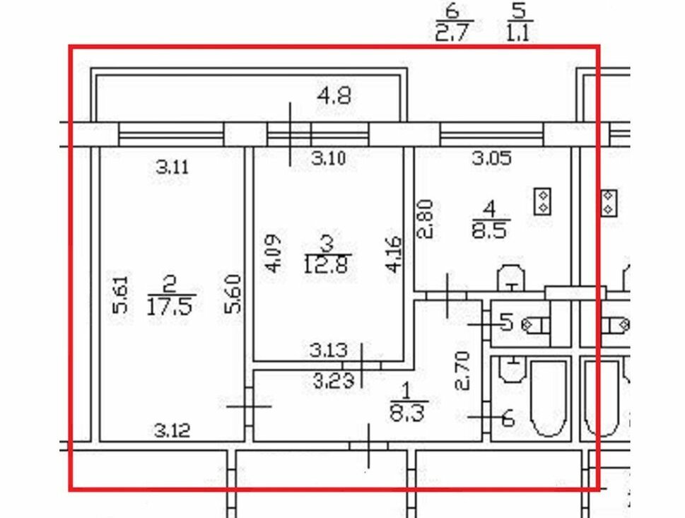
Общая площадь квартиры 50,9 м?: просторные комнаты (17,5 и 12,8 м?), кухня 8,5 м? + большой застекленный балкон 4,8 м? для отдыха или сушки белья. Три спальных места — подойдет для пары или семьи с ребенком.
Выполнен качественный евроремонт, новая мебель в комнатах и на кухне. Оснащение: холодильник, стиральная и посудомоечная машины, электрическая плита, микроволновка. В спальне кровать, в гостиной большой удобный раскладной диван. Достаточно мест для хранения - шкаф в спальне, вместительный шкаф-купе в прихожей.
Квартира очень уютная, теплая и светлая и готова к проживанию без дополнительных вложений.
Район спокойный и благоустроенный с развитой инфраструктурой: школы, детские сады, магазины, детская и взрослая поликлиники, бассейн — всё в пешей доступности. Недалеко Удельный парк, Парк Усадьбы Орловых-Денисовых, Суздальские озера.
Звоните и приезжайте на просмотр.
Удобства
Балкон
Посудомоечная машина
Холодильник
Стиральная машина
Телевизор
Нагреватель воды
Кондиционер
Особенности
Можно курить
Подходит для мероприятий
Можно с животными
Подходит для семьи с детьми
Другие 2-х комнатные квартиры
2-комнатная квартира: посёлок Парголово, Тихоокеанская улица, 10к1 (80 м²)
Последние добавленные апартаменты
1-к кв. Санкт-Петербург пос. Парголово, ул. Федора Абрамова, 8 (40.0 м²)
О нас говорят
Хорошая услуга «Личный помощник». За вами закрепляют менеджера, который подбирает для вас варианты, помогает с подписанием договора и проверкой квартиры. Константин оперативно отвечал на наши вопросы и подстраивался под возникающие в ходе поиска требования.
Ins Fairy
Нашел себе отличную квартиру в Мск на Локалс. В этот раз пользовался услугой Личный помощник; Каждый день мне присылали варианты и по моим ответам уточняли мои критерии. В итоге выбрали прямо то, что мне было надо!
Ilya Malov
Отличный сервис! Нужный вариант подобрали уже на следующий день после обращения. Документы с арендодателем я подписала в конце той же недели и сразу переехала. Квартира после ремонта, все новое, я — первый арендатор, до метро 15 минут пешком. Это потрясающе!
Maria Levkina
Поиски квартиры заняли ровно неделю, Андрей проверял все варианты и составлял подробное описание. Так же оказал помощь при подписании договора. И вот теперь, я снимаю квартиру без комиссии, от собственника, с хорошим ремонтом, в новом доме по приемлемой цене.
Dmitry Kovtun
Клиентоориентированность — на высшем уровне. И форма связи любая.. мне было удобно общаться через почту — не проблема: в будни и даже в выходные, и днем и ночью — постоянно на связи) В какой-то момент даже подумала, что личный помощник никогда не отдыхает))
Teresa Olehnovich
Услуга «Личный помощник» — это не только дешевле, чем платить деньги каким-то непонятным посредникам или риэлторам, но и гарантированная ежедневная консультация от грамотного специалиста. Одним словом, всё очень понравилось.
Алина Василевская
Моя оценка 5! Нашли с личным помощником то, что нужно!! Удобно и безопасно. Отличный, проверенный сайт! Спасибо, Локалс!
Еленка Потапова
Искал с помощью услуги «Личный помощник». Сервис справился с поставленной перед ним задачей — найти мне жильё в короткие сроки (дедлайн 1,5 недели). Спасибо!
Dimas
У меня только положительные впечатления остались. Мне присылал варианты каждый день, иногда даже дважды. Всегда оперативно реагировал на мои пожелания. В итоге, так и сняли одну из предложенных квартир и очень довольны.
Любовь












