2-комнатная квартира: Санкт-Петербург, Фермское шоссе, 36к7 (59.8 м²)
Комфортная и светлая 2-х комнатная квартира 59,8 кв.м (северо-запад)
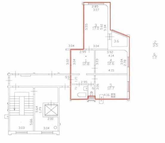
комнаты - 17 кв.м и 12,6 кв.м
кухня - 12,7 кв.м
холл - 12,8 кв.м
санузел раздельный - 3,5 кв.м и 1,2 кв.м
лоджия застекленная (утепленная) - 3,6 кв.м
РЕМОНТ:
в комнатах на полу кварц-винил 34 класс;
в холле, кухне, санузле и на лоджии керамогранит;
окна трехкамерный стеклопакет Veka, стеклянный блок с аргоном;
радиаторы биметаллические (Италия);
электрика заменена;
сантехника заменена, система фильтрации воды, Распределительная гребенка (коллекторная группа)
МЕБЕЛЬ и ТЕХНИКА:
Квартира продается с мебелью (кроме ТВ, торшера, кровати).
В комнате остается гарнитур (угловой шкаф, навесные комоды, тумбочки) производства «Эльба мебель».
В холле и на лоджии встроенные шкафы.
В санузле навесной шкафчик и тумба ИКЕА, стиральная машинка Samsung.
Кухонный гарнитур производства ИКЕА, встроенный холодильник Samsung, вытяжка Kupersberg, посудомоечная машина, духовой шкаф с пиролизом и варочная панель Electrolux.
ДОКУМЕНТЫ:
⁃ один совершеннолетний собственник, будет присутствовать на сделке
⁃ прямая продажа
⁃ полная стоимость в договоре
⁃ без обременений
⁃ в собственности более 10 лет
МЕТРО и Ж/Д Станция УДЕЛЬНАЯ:
До метро 5 минут пешком
До Ж/Д 3 минуты пешком
ДОМ, РАСПОЛОЖЕНИЕ и ИНФРАСТРУКТУРА:
Закрытая территория, видеонаблюдение, наземная парковка, своя газовая котельная.
Окна смотрят на парк, видно только кроны деревьев.
Оборудованная детская площадка, зеленый двор.
Вокруг дома есть вся необходимая инфраструктура: школы, детские сады, футбольная школа Зенит, поликлиники, больницы (центр им. В.А. Алмазова), пункты выдачи, магазины, салоны красоты, пекарни.
В непосредственной близости расположен Удельный парк (5-7 минут пешком), чуть дальше парк Сосновка (15- 20 минут пешком), Суздальские озера с оборудованными местами для отдыха (20-25 минут пешком).
Продажу квартиры сопровождает мой риелтор. С покупателями, у которых есть свой агент, к сотрудничеству готовы.
Особенности
Другие 2-х комнатные квартиры
2-комнатная квартира: Санкт-Петербург, территория Шувалово, Береговая улица, 12 (67.5 м²)
Последние добавленные апартаменты
1-комнатная квартира: посёлок Парголово, улица Михаила Дудина, 23к1 (37 м²)
1-комнатная квартира: Санкт-Петербург, Октябрьская набережная, 40 (41 м²)
1-комнатная квартира: посёлок Парголово, Михайловская дорога, 16к3 (37 м²)
2-комнатная квартира: Санкт-Петербург, Аптекарский проспект, 18 (49 м²)
О нас говорят
Хорошая услуга «Личный помощник». За вами закрепляют менеджера, который подбирает для вас варианты, помогает с подписанием договора и проверкой квартиры. Константин оперативно отвечал на наши вопросы и подстраивался под возникающие в ходе поиска требования.
Ins Fairy
Нашел себе отличную квартиру в Мск на Локалс. В этот раз пользовался услугой Личный помощник; Каждый день мне присылали варианты и по моим ответам уточняли мои критерии. В итоге выбрали прямо то, что мне было надо!
Ilya Malov
Отличный сервис! Нужный вариант подобрали уже на следующий день после обращения. Документы с арендодателем я подписала в конце той же недели и сразу переехала. Квартира после ремонта, все новое, я — первый арендатор, до метро 15 минут пешком. Это потрясающе!
Maria Levkina
Поиски квартиры заняли ровно неделю, Андрей проверял все варианты и составлял подробное описание. Так же оказал помощь при подписании договора. И вот теперь, я снимаю квартиру без комиссии, от собственника, с хорошим ремонтом, в новом доме по приемлемой цене.
Dmitry Kovtun
Клиентоориентированность — на высшем уровне. И форма связи любая.. мне было удобно общаться через почту — не проблема: в будни и даже в выходные, и днем и ночью — постоянно на связи) В какой-то момент даже подумала, что личный помощник никогда не отдыхает))
Teresa Olehnovich
Услуга «Личный помощник» — это не только дешевле, чем платить деньги каким-то непонятным посредникам или риэлторам, но и гарантированная ежедневная консультация от грамотного специалиста. Одним словом, всё очень понравилось.
Алина Василевская
Моя оценка 5! Нашли с личным помощником то, что нужно!! Удобно и безопасно. Отличный, проверенный сайт! Спасибо, Локалс!
Еленка Потапова
Искал с помощью услуги «Личный помощник». Сервис справился с поставленной перед ним задачей — найти мне жильё в короткие сроки (дедлайн 1,5 недели). Спасибо!
Dimas
У меня только положительные впечатления остались. Мне присылал варианты каждый день, иногда даже дважды. Всегда оперативно реагировал на мои пожелания. В итоге, так и сняли одну из предложенных квартир и очень довольны.
Любовь












