Студия Санкт-Петербург Парашютная ул., 36к1 (25.6 м²)
Предлагается к продаже квартира-студия правильной формы с двумя окнами в современном ЖК UP-квартал Комендантский.
ОТЛИЧИТЕЛЬНЫЕ ОСОБЕННОСТИ ОБЪЕКТА НЕДЖВИЖИМОСТИ:
- Квартира в новом доме (2019 г.п.), дизайнерская отделка холлов и высокие потолки (4,5 метра), два бесшумных лифта Kone, в холле на первом этаже есть место для велосипедов и колясок, также колясочная есть на этаже около лифтового холла (см. фото), в доме установлены камеры видеонаблюдения.
- Фасады ЖК UP-квартал Комендантский в отличии от других соседних домов выполнены по системе навесного вентилируемого фасада (керамогранит), что обеспечивает долговечное сохранение внешнего вида ЖК и правильный микроклимат.
- Квартира с современным ремонтом, можно заезжать и жить. Поверены счетчики ГВС и ХВС (весна 2024 г.);
- Покупателю остается вся мебель (кухня с варочной панелью, два просторных шкафа-купе, СВЧ-печь, стол, два стула, диван, ТВ-тумба, холодильник и стиральная машина, всё в исправном состоянии).
- Закрытый двор (доступ по магнитному ключу), два входа в парадную (со стороны закрытого двора и улицы).
- Есть наземный и подземный паркинг, всегда имеется место для парковки по периметру дома (см. фото).
- В 200-х метрах есть большая территория для выгула домашних питомцев.
ОТЛИЧНАЯ ЛОКАЦИЯ:
- Современный район с полностью развитой инфраструктурой (торговые центры, кафе и рестораны, гипермаркеты, салоны красоты, медицинские центры, МФЦ и т.п.).
- В 5-10 минутах находятся три шикарные зеленые зоны: Мартыновский сквер с прудом, парк Озеро Долгое и Долгоозерный сквер.
ХОРОШАЯ ТРАНСПОРТНАЯ ДОСТУПНОСТЬ:
- 10 минут транспортом до метро Комендантский пр., 15-20 минут до метро Пионерская. В перспективе (2028 г.) открытие метро "Каменка"/"Шуваловский пр." (в 10 минутах пешком от дома) на пересечении Комендантского пр. и Шуваловского пр. На июнь 2024 г. идет разработка проектной документации на строительство данной станции.
- В шаговой доступности от дома остановки общественного транспорта.
- Рядом выезд на ЗСД и КАД.
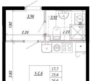
УДАЧНАЯ ПЛАНИРОВКА:
- Комната правильной квадратной формы, что позволяет разнообразно зонировать помещение;
- Площадь квартиры 25,6 кв. м., вместе с балконом с коэффициентом 0,3 - общая площадь 26,7 кв. м. Площадь балкона 3,19 кв. м.
- Два окна;
- Широкий балкон;
- Просторный санузел;
- Просторная прихожая квадратной формы.
Квартира без обременений, один взрослый собственник, в собственности более 5 лет, никто не проживает и никто не прописан. Подходит под ипотеку, быстрый выход на сделку, просмотры по предварительной договоренности. Просьба агентам обращаться только при наличии реального покупателя.
Особенности
Другие однокомнатные квартиры
Последние добавленные апартаменты
2-к кв. Санкт-Петербург 19-я Васильевского острова линия, 22к2 (55.0 м²)
1-к кв. Санкт-Петербург пос. Парголово, дор. Михайловская, 14к1 (35.0 м²)
О нас говорят
Хорошая услуга «Личный помощник». За вами закрепляют менеджера, который подбирает для вас варианты, помогает с подписанием договора и проверкой квартиры. Константин оперативно отвечал на наши вопросы и подстраивался под возникающие в ходе поиска требования.
Ins Fairy
Нашел себе отличную квартиру в Мск на Локалс. В этот раз пользовался услугой Личный помощник; Каждый день мне присылали варианты и по моим ответам уточняли мои критерии. В итоге выбрали прямо то, что мне было надо!
Ilya Malov
Отличный сервис! Нужный вариант подобрали уже на следующий день после обращения. Документы с арендодателем я подписала в конце той же недели и сразу переехала. Квартира после ремонта, все новое, я — первый арендатор, до метро 15 минут пешком. Это потрясающе!
Maria Levkina
Поиски квартиры заняли ровно неделю, Андрей проверял все варианты и составлял подробное описание. Так же оказал помощь при подписании договора. И вот теперь, я снимаю квартиру без комиссии, от собственника, с хорошим ремонтом, в новом доме по приемлемой цене.
Dmitry Kovtun
Клиентоориентированность — на высшем уровне. И форма связи любая.. мне было удобно общаться через почту — не проблема: в будни и даже в выходные, и днем и ночью — постоянно на связи) В какой-то момент даже подумала, что личный помощник никогда не отдыхает))
Teresa Olehnovich
Услуга «Личный помощник» — это не только дешевле, чем платить деньги каким-то непонятным посредникам или риэлторам, но и гарантированная ежедневная консультация от грамотного специалиста. Одним словом, всё очень понравилось.
Алина Василевская
Моя оценка 5! Нашли с личным помощником то, что нужно!! Удобно и безопасно. Отличный, проверенный сайт! Спасибо, Локалс!
Еленка Потапова
Искал с помощью услуги «Личный помощник». Сервис справился с поставленной перед ним задачей — найти мне жильё в короткие сроки (дедлайн 1,5 недели). Спасибо!
Dimas
У меня только положительные впечатления остались. Мне присылал варианты каждый день, иногда даже дважды. Всегда оперативно реагировал на мои пожелания. В итоге, так и сняли одну из предложенных квартир и очень довольны.
Любовь












