

































4-к кв. Санкт-Петербург Ораниенбаумская ул., 21 (180.0 м²)
Предлагаем вашему вниманию исключительный объект для жизни — просторную резиденцию 180 м² с новым коллекционным ремонтом без амортизации, в самом сердце исторического центра. Камерный дом 2000 года, построенный по проекту петербургских архитекторов Н. И. и Ф. Н. Апостол, расположенный на тихой Ораниенбаумской улице.
Главное преимущество: квартира находится в уже обжитом современном клубном доме всего на 27 квартир, с однородной социальной средой. Здесь полностью отсутствует строительный шум и суета, характерные для новостроек — вы въезжаете в атмосферу тишины и приватности.
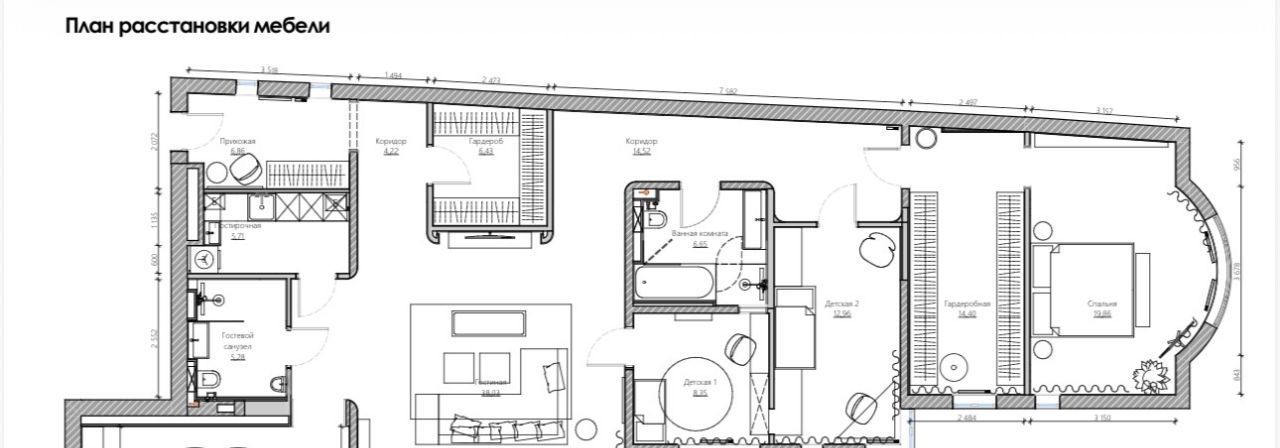
Интерьер выполнен в спокойных, светлых тонах, создающих ощущение уюта и комфорта. Площадь грамотно зонирована для жизни большой семьи:
• Сердце дома: гостиная (47 м²) и смежная с ней кухня-столовая (32 м²) — идеальный ансамбль для приемов гостей и уютных семейных вечеров.
• Приватный блок: спальня с индивидуальной гардеробной с окном, две светлые детские (одну из которых при необходимости легко трансформировать в кабинет).
• Сервис-зона: просторный холл с большой гардеробной, отдельная постирочная, два санузла (с ванной и душевой).
В квартире произведен новый дизайнерский ремонт. Использованы сложные архитектурные решения и дорогостоящие материалы:
• Радиусные (закругленные) углы стен, создающие мягкую геометрию. Эффект парящих стен за счет теневых профилей и скрытых плинтусов.
• Натуральный паркет елочка в общих зонах, инженерная доска в спальне, керамогранит, изящные латунные вставки в отделке стен.
• В общих зонах установлены invisible-двери скрытого монтажа высотой 3 метра (в потолок).
• Мультизональная система Fujitsu и приточно-вытяжная вентиляция с рекуперацией. Установлены бесшумные канальные вентиляторы Soler & Palau для мощной и тихой вытяжки в санузлах и на кухне. Система электрокарнизов в жилых зонах.
• Полный комплект премиальной бытовой техники: Miele, Liebherr, AEG. Сантехнические изделия ведущих брендов - Villeroy & Boch, Laufen, Paffoni.
• Произведена полная замена всех инженерных сетей, смонтированы фильтры очистки воды, датчики протечек, мастер-выключатель. Предусмотрено множество световых сценариев. Установлены двухкамерные энергосберегающие окна Rehau премиальной линейки.
Важная деталь:
Квартира подготовлена как идеальный архитектурный холст. Финальные штрихи в виде подбора штор, картин, журнальных столиков, прикроватных тумб и т.д. намеренно оставлены будущим владельцам. Эти приятные хлопоты позволят новой хозяйке придать интерьеру индивидуальность и характер семьи, минуя при этом все тяготы капитального ремонта.
О доме и локации:
Всего 2 квартиры на этаже. В парадной находится консьерж. В доме имеется подземный паркинг. В 5 минутах пешком — м. Чкаловская. В пешей доступности лучшие городские гимназии, детские сады, рестораны и кинотеатры.
Юридическая информация:
• Прямая продажа.
• Собственность более 5 лет.
• Полная стоимость в договоре.
• Два совершеннолетних собственника
Особенности
Другие 4-х комнатные квартиры
Последние добавленные апартаменты
1-комнатная квартира: Санкт-Петербург, проспект Луначарского, 11к1 (46.5 м²)
2-комнатная квартира: Санкт-Петербург, проспект Энергетиков, 9к3 (59 м²)
О нас говорят
Хорошая услуга «Личный помощник». За вами закрепляют менеджера, который подбирает для вас варианты, помогает с подписанием договора и проверкой квартиры. Константин оперативно отвечал на наши вопросы и подстраивался под возникающие в ходе поиска требования.
Ins Fairy
Нашел себе отличную квартиру в Мск на Локалс. В этот раз пользовался услугой Личный помощник; Каждый день мне присылали варианты и по моим ответам уточняли мои критерии. В итоге выбрали прямо то, что мне было надо!
Ilya Malov
Отличный сервис! Нужный вариант подобрали уже на следующий день после обращения. Документы с арендодателем я подписала в конце той же недели и сразу переехала. Квартира после ремонта, все новое, я — первый арендатор, до метро 15 минут пешком. Это потрясающе!
Maria Levkina
Поиски квартиры заняли ровно неделю, Андрей проверял все варианты и составлял подробное описание. Так же оказал помощь при подписании договора. И вот теперь, я снимаю квартиру без комиссии, от собственника, с хорошим ремонтом, в новом доме по приемлемой цене.
Dmitry Kovtun
Клиентоориентированность — на высшем уровне. И форма связи любая.. мне было удобно общаться через почту — не проблема: в будни и даже в выходные, и днем и ночью — постоянно на связи) В какой-то момент даже подумала, что личный помощник никогда не отдыхает))
Teresa Olehnovich
Услуга «Личный помощник» — это не только дешевле, чем платить деньги каким-то непонятным посредникам или риэлторам, но и гарантированная ежедневная консультация от грамотного специалиста. Одним словом, всё очень понравилось.
Алина Василевская
Моя оценка 5! Нашли с личным помощником то, что нужно!! Удобно и безопасно. Отличный, проверенный сайт! Спасибо, Локалс!
Еленка Потапова
Искал с помощью услуги «Личный помощник». Сервис справился с поставленной перед ним задачей — найти мне жильё в короткие сроки (дедлайн 1,5 недели). Спасибо!
Dimas
У меня только положительные впечатления остались. Мне присылал варианты каждый день, иногда даже дважды. Всегда оперативно реагировал на мои пожелания. В итоге, так и сняли одну из предложенных квартир и очень довольны.
Любовь












