4-к кв. Санкт-Петербург наб. Реки Мойки, 82 (133.0 м²)
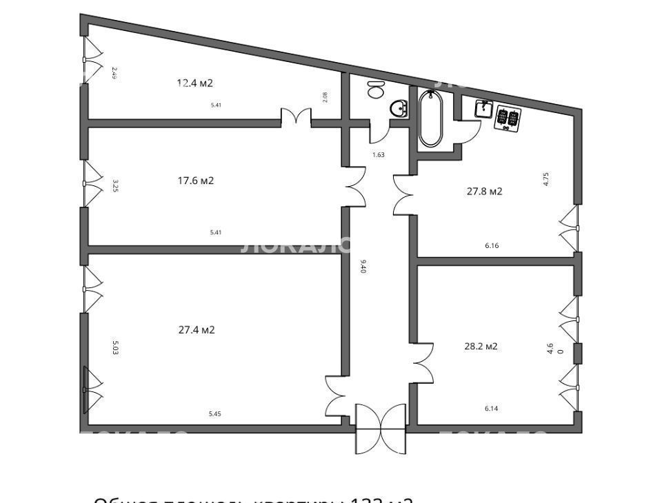
Предлагаю к продаже просторную квартиру с премиальный локацией на первом этаже трёхэтажного жилого дома. Квартира находится в историческом центре города, в бывшем доходном доме купца Воронина, в южном крыле дома, выходящем на переулок Пирогова, как раз между Исаакиевской и Театральной площадями, в пяти минутах ходьбы от каждой. До ближайших станций метро "Сенная" и "Адмиралтейская" добираться немного дольше - 15 минут. Но уже скоро будет достроена станция "Театральная" в тех же пяти минутах пешком. Мариинский театр, Консерватория, дворец Юсуповых и комплекс Новая Голландия - всё здесь и рядом. До Невы и Медного Всадника тоже рукой подать.
Квартира - бывшая коммунальная - расположена в недавно отремонтированном доме, в котором частично заменены коммуникации - канализация и газопровод, - отремонтирована крыша, обновлены фасады, приведены в порядок чердаки и подвалы. В отличие от многих других коммуналок, эта квартира имеет вполне удобную планировку, широкий и не очень длинный коридор. Также обращу ваше внимание на большую, почти в 30 квадратов кухню.
Четыре окна в жилых комнатах выходят в переулок, как и вход в подъезд, а остальные смотрят во двор. Высота потолков 3.15 м. Все окна располагаются на высоте 2.5 м над поверхностью земли. Как и полагается в домах старой постройки, в стенах проложены дымоходы, что позволяет при желании установить печи или камины и наслаждаться теплом и игрой живого огня. На дверях домофон.
Во дворе находится закрытый паркинг. И, кстати, здесь же располагаются знаменитые Воронцовские, а уже в советское время Фонарные бани также недавно отреставрированные и обновленные.
Я - единственный собственник квартиры, и если у вас есть вопросы, или вы собираетесь на просмотр, пожалуйста звоните или оставляйте сообщение в чате.
Особенности
Другие 4-х комнатные квартиры
4-комнатная квартира: Санкт-Петербург, набережная реки Мойки, 82 (133 м²)
Последние добавленные апартаменты
1-комнатная квартира: Санкт-Петербург, набережная Макарова, 60 (40 м²)
Квартира-студия: Санкт-Петербург, Большой Сампсониевский проспект, 74к2 (16 м²)
1-комнатная квартира: Санкт-Петербург, Комендантский проспект, 59к2 (38 м²)
О нас говорят
Хорошая услуга «Личный помощник». За вами закрепляют менеджера, который подбирает для вас варианты, помогает с подписанием договора и проверкой квартиры. Константин оперативно отвечал на наши вопросы и подстраивался под возникающие в ходе поиска требования.
Ins Fairy
Нашел себе отличную квартиру в Мск на Локалс. В этот раз пользовался услугой Личный помощник; Каждый день мне присылали варианты и по моим ответам уточняли мои критерии. В итоге выбрали прямо то, что мне было надо!
Ilya Malov
Отличный сервис! Нужный вариант подобрали уже на следующий день после обращения. Документы с арендодателем я подписала в конце той же недели и сразу переехала. Квартира после ремонта, все новое, я — первый арендатор, до метро 15 минут пешком. Это потрясающе!
Maria Levkina
Поиски квартиры заняли ровно неделю, Андрей проверял все варианты и составлял подробное описание. Так же оказал помощь при подписании договора. И вот теперь, я снимаю квартиру без комиссии, от собственника, с хорошим ремонтом, в новом доме по приемлемой цене.
Dmitry Kovtun
Клиентоориентированность — на высшем уровне. И форма связи любая.. мне было удобно общаться через почту — не проблема: в будни и даже в выходные, и днем и ночью — постоянно на связи) В какой-то момент даже подумала, что личный помощник никогда не отдыхает))
Teresa Olehnovich
Услуга «Личный помощник» — это не только дешевле, чем платить деньги каким-то непонятным посредникам или риэлторам, но и гарантированная ежедневная консультация от грамотного специалиста. Одним словом, всё очень понравилось.
Алина Василевская
Моя оценка 5! Нашли с личным помощником то, что нужно!! Удобно и безопасно. Отличный, проверенный сайт! Спасибо, Локалс!
Еленка Потапова
Искал с помощью услуги «Личный помощник». Сервис справился с поставленной перед ним задачей — найти мне жильё в короткие сроки (дедлайн 1,5 недели). Спасибо!
Dimas
У меня только положительные впечатления остались. Мне присылал варианты каждый день, иногда даже дважды. Всегда оперативно реагировал на мои пожелания. В итоге, так и сняли одну из предложенных квартир и очень довольны.
Любовь












