3-комнатная квартира: Санкт-Петербург, Ушаковская набережная, 3к2 (104.2 м²)
Арт. 123621091
Видовая дизайнерская е3. Riverside с 11.11.
Предлагается в аренду на длительный срок дизайнерская трехкомнатная квартира европейской планировки в ЖК высокого класса "Riverside" в Приморском районе, напротив Каменного острова по адресу: Ушаковская набережная, дом 3, корпус 2 в 10 минутах ходьбы от ст. метро Черная речка. Уникальное местоположение - из окон квартир открываются восхитительные виды на р. Большую Невку, Елагин остров и Лахта центр.
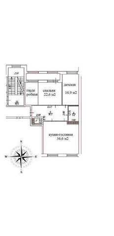
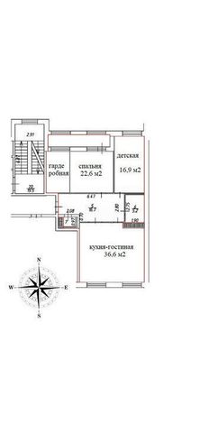
В квартире выполнен качественный евроремонт (делали для себя) по дизайн-проекту с использованием дорогих отделочных материалов. Планировка - спальная комната с выходом на застекленную лоджию, детская, просторная гостиная с оборудованной кухней (посуд. машина, винный шкаф), вместительная гардеробная комната, санузел (ванна+душевая), прачечная (стиральная и сушильная машины). Комфортабельная мебель, современная техника. Теплый пол. Приточно-вытяжная система вентиляции.
В каждом жилом корпусе установлена современная механическая система очистки холодной воды. На закрытой и охраняемой территории комплекса расположены детские игровые комплексы и спортивные площадки, благоустроенные пешеходные зоны с газонами, деревьями и кустарниками. Есть возможность снять машиноместо в подземном паркинге дома за доп. стоимость. С детьми - по согласованию. На срок от 11 месяцев. Коммунальные услуги оплачиваются дополнительно.
Удобства
Балкон
Посудомоечная машина
Холодильник
Стиральная машина
Телевизор
Нагреватель воды
Кондиционер
Особенности
Можно курить
Подходит для мероприятий
Можно с животными
Подходит для семьи с детьми
Другие 3-х комнатные квартиры
Последние добавленные апартаменты
1-комнатная квартира: Санкт-Петербург, Лиговский проспект, 123 (50 м²)
2-комнатная квартира: Санкт-Петербург, проспект Обуховской Обороны, 195 (47 м²)
О нас говорят
Хорошая услуга «Личный помощник». За вами закрепляют менеджера, который подбирает для вас варианты, помогает с подписанием договора и проверкой квартиры. Константин оперативно отвечал на наши вопросы и подстраивался под возникающие в ходе поиска требования.
Ins Fairy
Нашел себе отличную квартиру в Мск на Локалс. В этот раз пользовался услугой Личный помощник; Каждый день мне присылали варианты и по моим ответам уточняли мои критерии. В итоге выбрали прямо то, что мне было надо!
Ilya Malov
Отличный сервис! Нужный вариант подобрали уже на следующий день после обращения. Документы с арендодателем я подписала в конце той же недели и сразу переехала. Квартира после ремонта, все новое, я — первый арендатор, до метро 15 минут пешком. Это потрясающе!
Maria Levkina
Поиски квартиры заняли ровно неделю, Андрей проверял все варианты и составлял подробное описание. Так же оказал помощь при подписании договора. И вот теперь, я снимаю квартиру без комиссии, от собственника, с хорошим ремонтом, в новом доме по приемлемой цене.
Dmitry Kovtun
Клиентоориентированность — на высшем уровне. И форма связи любая.. мне было удобно общаться через почту — не проблема: в будни и даже в выходные, и днем и ночью — постоянно на связи) В какой-то момент даже подумала, что личный помощник никогда не отдыхает))
Teresa Olehnovich
Услуга «Личный помощник» — это не только дешевле, чем платить деньги каким-то непонятным посредникам или риэлторам, но и гарантированная ежедневная консультация от грамотного специалиста. Одним словом, всё очень понравилось.
Алина Василевская
Моя оценка 5! Нашли с личным помощником то, что нужно!! Удобно и безопасно. Отличный, проверенный сайт! Спасибо, Локалс!
Еленка Потапова
Искал с помощью услуги «Личный помощник». Сервис справился с поставленной перед ним задачей — найти мне жильё в короткие сроки (дедлайн 1,5 недели). Спасибо!
Dimas
У меня только положительные впечатления остались. Мне присылал варианты каждый день, иногда даже дважды. Всегда оперативно реагировал на мои пожелания. В итоге, так и сняли одну из предложенных квартир и очень довольны.
Любовь












