
















3-комнатная квартира: Санкт-Петербург, Товарищеский проспект, 32к2 (65.6 м²)
Представляем вашему вниманию светлую и уютную трёхкомнатную квартиру — идеальное место для комфортной жизни! Квартира расположена на 12-м этаже 12-этажного панельного дома. Общая площадь составляет 65,6
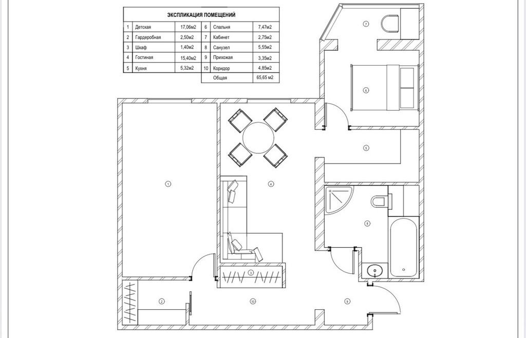
кв. м, из которых 60,3 кв. м — жилая площадь, а 5,3 кв. м - кухня.
Один взрослый собственник, квартира без обременений. Находится в собственности более 5 лет.
В шаговой доступности находятся гимназия, школа и детский сад — это особенно важно для семей с детьми. Дом находится под управлением ТСЖ, планируется косметический ремонт входной группы и парадных холлов.
Квартира обладает уникальным неповторимым интерьером, удобной планировкой и достаточным пространством.
В гостиной есть камин для уюта и настроения.
Кухня небольшая, но в ней продумано все до мелочей. Фурнитура кухни европейского производства (BLUMOTION Австрия), прослужит вам верой и правдой еще много лет. (Фасады кухни, по желанию, собственник готов поменять в подарок на новые).
Стены в квартире-штукатурка, частично натуральные обои из растительных материалов. В детской полы и стены ламинат, имитация яхты.
Полы в квартире паркетная доска и дизайнерская плитка. Теплый пол: прихожая, ванная, кабинет, кухня. В ванной комнате душевая кабина Jacuzzi c гидромассажем и парогенератором. Ванная с двумя мощными моторами для гидромассажа размером 2*1.2 метра.
В квартире есть гардеробная и встроенный шкаф в прихожеи.
Много различных видов освещения в разных зонах комнат, гостиной и кухни, что позволяет создавать атмосферу дополнительного уюта и приватности.
Квартира находится на 12 этаже двенадцатиэтажного дома. Окна выходят на речку, что обеспечивает прекрасный вид, а расположение на последнем этаже обеспечит вам полную тишину и уверенность в том, что соседи сверху вас никогда не побеспокоят.
СРОЧНАЯ ПРОДАЖА! ЕСТЬ ВСТРЕЧКА!
Особенности
Другие 3-х комнатные квартиры
3-комнатная квартира: Санкт-Петербург, Октябрьская набережная, 126к3 (85.8 м²)
Последние добавленные апартаменты
2-комнатная квартира: Санкт-Петербург, улица Маршала Захарова, 8 (67 м²)
3-комнатная квартира: Санкт-Петербург, улица Ленсовета, 69к1 (111 м²)
О нас говорят
Хорошая услуга «Личный помощник». За вами закрепляют менеджера, который подбирает для вас варианты, помогает с подписанием договора и проверкой квартиры. Константин оперативно отвечал на наши вопросы и подстраивался под возникающие в ходе поиска требования.
Ins Fairy
Нашел себе отличную квартиру в Мск на Локалс. В этот раз пользовался услугой Личный помощник; Каждый день мне присылали варианты и по моим ответам уточняли мои критерии. В итоге выбрали прямо то, что мне было надо!
Ilya Malov
Отличный сервис! Нужный вариант подобрали уже на следующий день после обращения. Документы с арендодателем я подписала в конце той же недели и сразу переехала. Квартира после ремонта, все новое, я — первый арендатор, до метро 15 минут пешком. Это потрясающе!
Maria Levkina
Поиски квартиры заняли ровно неделю, Андрей проверял все варианты и составлял подробное описание. Так же оказал помощь при подписании договора. И вот теперь, я снимаю квартиру без комиссии, от собственника, с хорошим ремонтом, в новом доме по приемлемой цене.
Dmitry Kovtun
Клиентоориентированность — на высшем уровне. И форма связи любая.. мне было удобно общаться через почту — не проблема: в будни и даже в выходные, и днем и ночью — постоянно на связи) В какой-то момент даже подумала, что личный помощник никогда не отдыхает))
Teresa Olehnovich
Услуга «Личный помощник» — это не только дешевле, чем платить деньги каким-то непонятным посредникам или риэлторам, но и гарантированная ежедневная консультация от грамотного специалиста. Одним словом, всё очень понравилось.
Алина Василевская
Моя оценка 5! Нашли с личным помощником то, что нужно!! Удобно и безопасно. Отличный, проверенный сайт! Спасибо, Локалс!
Еленка Потапова
Искал с помощью услуги «Личный помощник». Сервис справился с поставленной перед ним задачей — найти мне жильё в короткие сроки (дедлайн 1,5 недели). Спасибо!
Dimas
У меня только положительные впечатления остались. Мне присылал варианты каждый день, иногда даже дважды. Всегда оперативно реагировал на мои пожелания. В итоге, так и сняли одну из предложенных квартир и очень довольны.
Любовь












