











3-комнатная квартира: Санкт-Петербург, проспект Энгельса, 55 (63.3 м²)
Светлая 3-комнатная квартира в кирпичном сталинском доме на пр. Энгельса, 55
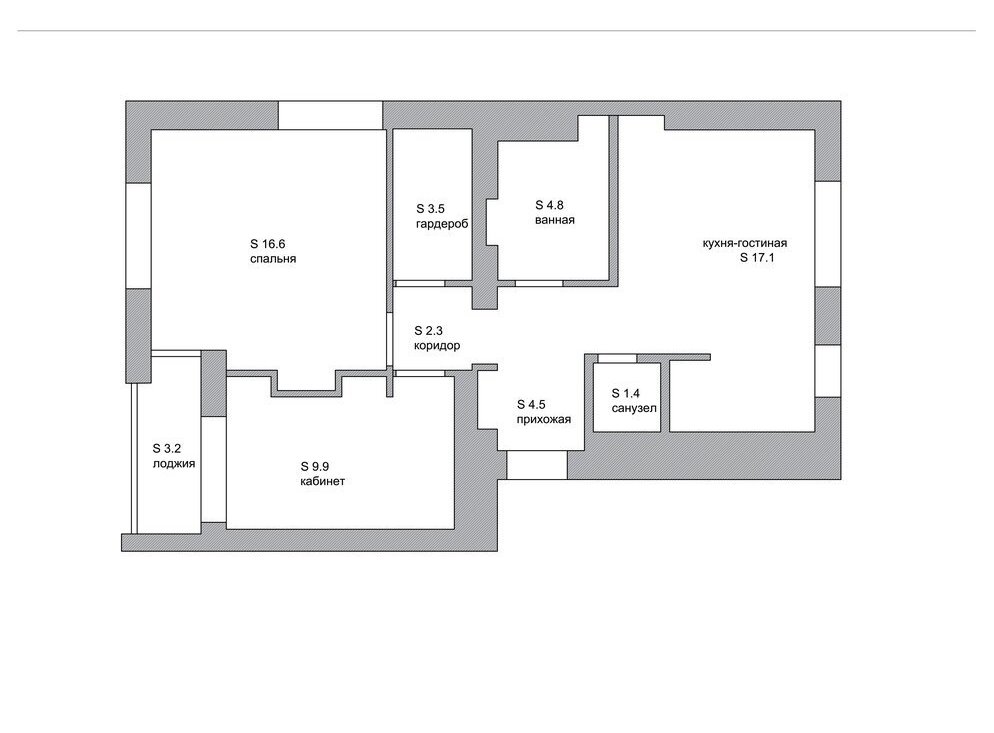
Квартира расположена в доме-объекте культурного наследия, в добротной кирпичной сталинке с толщиной стен до 1 метра. Планировка "распашонка", окна выходят на три стороны, в спальне два окна и лоджия. Хорошее освещение в разное время суток. За счет высоких 3 м потолков и хороших пропорций пространства квартира ощущается действительно объемной и светлой.
Ремонт завершен в 2022 году. Установлены высокие двери ProfilDoors 2.5 м, итальянская фурнитура Morelli с магнитными замками. Полностью оборудованный кабинет: угловой стол из массива выполнен на заказ точно по размеру стен, книжные полки из массива - до потолка. Санузел раздельный с инсталляцией Grohe, просторная ванная комната, 4.8 кв. м. В спальне установлена приточная вентиляция Airnanny с тремя фильтрами очистки и подогревом воздуха. Кухня сделана на фурнитуре Blum, фасады покрыты акриловым пластиком, горячая вода - центральная, без газовой колонки. Есть гардеробная комната со стеллажами до потолка по двум стенам.
Локация очень удобная для жизни: в пешей доступности (10 мин пешком) сразу два больших парка - Сосновка и Удельный. Прямо напротив дома разные магазины, в т.ч. ВкусВилл, аптеки, овощные лавки и т.п. Рядом рестораны Mama Roma и First House Burger, во дворе дома центр детского творчества. Детский сад, художественная школа, гимназия тоже в пешей доступности (5-10 мин пешком). Вокруг очень много зелени и малоэтажная застройка. Всегда свободные места для парковки во дворе.
Особенности
Другие 3-х комнатные квартиры
Последние добавленные апартаменты
Квартира-студия: Санкт-Петербург, Малый проспект Петроградской стороны, 1/3 (27 м²)
О нас говорят
Хорошая услуга «Личный помощник». За вами закрепляют менеджера, который подбирает для вас варианты, помогает с подписанием договора и проверкой квартиры. Константин оперативно отвечал на наши вопросы и подстраивался под возникающие в ходе поиска требования.
Ins Fairy
Нашел себе отличную квартиру в Мск на Локалс. В этот раз пользовался услугой Личный помощник; Каждый день мне присылали варианты и по моим ответам уточняли мои критерии. В итоге выбрали прямо то, что мне было надо!
Ilya Malov
Отличный сервис! Нужный вариант подобрали уже на следующий день после обращения. Документы с арендодателем я подписала в конце той же недели и сразу переехала. Квартира после ремонта, все новое, я — первый арендатор, до метро 15 минут пешком. Это потрясающе!
Maria Levkina
Поиски квартиры заняли ровно неделю, Андрей проверял все варианты и составлял подробное описание. Так же оказал помощь при подписании договора. И вот теперь, я снимаю квартиру без комиссии, от собственника, с хорошим ремонтом, в новом доме по приемлемой цене.
Dmitry Kovtun
Клиентоориентированность — на высшем уровне. И форма связи любая.. мне было удобно общаться через почту — не проблема: в будни и даже в выходные, и днем и ночью — постоянно на связи) В какой-то момент даже подумала, что личный помощник никогда не отдыхает))
Teresa Olehnovich
Услуга «Личный помощник» — это не только дешевле, чем платить деньги каким-то непонятным посредникам или риэлторам, но и гарантированная ежедневная консультация от грамотного специалиста. Одним словом, всё очень понравилось.
Алина Василевская
Моя оценка 5! Нашли с личным помощником то, что нужно!! Удобно и безопасно. Отличный, проверенный сайт! Спасибо, Локалс!
Еленка Потапова
Искал с помощью услуги «Личный помощник». Сервис справился с поставленной перед ним задачей — найти мне жильё в короткие сроки (дедлайн 1,5 недели). Спасибо!
Dimas
У меня только положительные впечатления остались. Мне присылал варианты каждый день, иногда даже дважды. Всегда оперативно реагировал на мои пожелания. В итоге, так и сняли одну из предложенных квартир и очень довольны.
Любовь












