




































3-к кв. Санкт-Петербург ул. Седова, 72 (65.0 м²)
Большая 3-комнатная квартира в 7 минутах ПЕШКОМ от м. Ломоносовская. При покупке в ипотеку можно внести маткапитал/субсидию. Отличная транспортная доступность - 25 мин. до аэропорта , в 3 мин ходьбы до остановок автобуса в соседние районы города. Дом расположен в историческом индустриальном районе Петербурга, в 5 мин ходьбы располагается Ивановский карьер с современными детскими и спортивными площадками, живописный парк Куракина дача на берегу Невы в 15 мин ходьбы, в 7 мин ходьбы расположен парк им. Бабушкина с футбольным и пейнтбольным клубом, аттракционами и кафе.
О доме: 5-этажный кирпичный дом расположен в тихом и благоустроенном дворе, окружен домами небольшой высотности. В доме всего 100 квартир, по 2 квартиры на этаже. Во дворе детский сад, детская площадка. Поблизости несколько детских садов и школ, поликлиники и кабинеты врачей общей практики, большое количество продуктовых магазинов, OZON, WB и торговый центр. Есть своя небольшая ПАРКОВКА у дома.
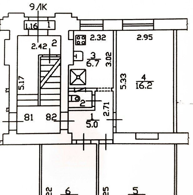
О квартире: квартира с 3-мя изолированными комнатами расположена на 1 этаже, окна выходят во двор и на улицу на 2 стороны. Входных дверей две - одна металлическая, вторая из дерева для дополнительной шумо- и теплоизоляции. Прихожая широкая, ведущий на кухню, и в коридор к трем отдельным комнатам. В коридоре есть место для гардероба. Санузел раздельный, Установлена душевая кабина на кухне - СОГЛАСОВАНА и есть на плане.
КОМНАТЫ 16,2 + 14,8 + 21,3 кв м, КУХНЯ 6,7 кв м.
В квартире сделан косметический ремонт - на полу ламинат, полностью заменены стеклопакеты, в комнатах поклеены обои, на кухне и в коридоре настенные панели, натяжные потолки в комнатах, на кухне и в санузле потолки со съемными панелями. На кухне установлен глянцевый гарнитур в светлых оттенках, газовая 4-конфорочная плита, посудомоечная машина, холодильник и стиральная машина.Вся мебель и техника, кроме стиральной машины остается в квартире и ВКЛЮЧЕНА В СТОИМОСТЬ. Комнаты большие, можно поместить любую мебель с комфортом для себя. В большой гостиной шкафы и диван остаются покупателю и ВКЛЮЧЕНЫ В СТОИМОСТЬ. Есть дополнительное место для хранения - антресоль наверху под потолком. Никакой перепланировки в квартире нет, 3 взрослых собственника, более 10 лет владения, маткапитал/субсидии не использовались. Доступна покупка в ипотеку, документы готовы, возможен срочный выход на сделку.
Агентов просьба НЕ БЕСПОКОИТЬ!!!
Разумный торг уместен.
Приобретая эту недвижимость, вы выбираете спокойствие жилого района, проверенное временем жилье и комфортное пространство для жизни. Приглашаем вас оценить все преимущества данной квартиры лично!
Особенности
Другие 3-х комнатные квартиры
3-комнатная квартира: Санкт-Петербург, проспект Маршала Жукова, 33к3 (61.4 м²)
Последние добавленные апартаменты
3-комнатная квартира: Санкт-Петербург, Будапештская улица, 104к1 (62 м²)
2-комнатная квартира: Санкт-Петербург, Коломяжский проспект, 20 (68 м²)
О нас говорят
Хорошая услуга «Личный помощник». За вами закрепляют менеджера, который подбирает для вас варианты, помогает с подписанием договора и проверкой квартиры. Константин оперативно отвечал на наши вопросы и подстраивался под возникающие в ходе поиска требования.
Ins Fairy
Нашел себе отличную квартиру в Мск на Локалс. В этот раз пользовался услугой Личный помощник; Каждый день мне присылали варианты и по моим ответам уточняли мои критерии. В итоге выбрали прямо то, что мне было надо!
Ilya Malov
Отличный сервис! Нужный вариант подобрали уже на следующий день после обращения. Документы с арендодателем я подписала в конце той же недели и сразу переехала. Квартира после ремонта, все новое, я — первый арендатор, до метро 15 минут пешком. Это потрясающе!
Maria Levkina
Поиски квартиры заняли ровно неделю, Андрей проверял все варианты и составлял подробное описание. Так же оказал помощь при подписании договора. И вот теперь, я снимаю квартиру без комиссии, от собственника, с хорошим ремонтом, в новом доме по приемлемой цене.
Dmitry Kovtun
Клиентоориентированность — на высшем уровне. И форма связи любая.. мне было удобно общаться через почту — не проблема: в будни и даже в выходные, и днем и ночью — постоянно на связи) В какой-то момент даже подумала, что личный помощник никогда не отдыхает))
Teresa Olehnovich
Услуга «Личный помощник» — это не только дешевле, чем платить деньги каким-то непонятным посредникам или риэлторам, но и гарантированная ежедневная консультация от грамотного специалиста. Одним словом, всё очень понравилось.
Алина Василевская
Моя оценка 5! Нашли с личным помощником то, что нужно!! Удобно и безопасно. Отличный, проверенный сайт! Спасибо, Локалс!
Еленка Потапова
Искал с помощью услуги «Личный помощник». Сервис справился с поставленной перед ним задачей — найти мне жильё в короткие сроки (дедлайн 1,5 недели). Спасибо!
Dimas
У меня только положительные впечатления остались. Мне присылал варианты каждый день, иногда даже дважды. Всегда оперативно реагировал на мои пожелания. В итоге, так и сняли одну из предложенных квартир и очень довольны.
Любовь












