





















3-к кв. Санкт-Петербург просп. Космонавтов, 61к1 (105.1 м²)
Продается просторная 3х-комнатная квартира в доме комфорт-класса.
Закрытая территория с детской площадкой. Подземный паркинг.
Видеонаблюдение. Консьерж.
Во дворе новая школа с бассейном.
В соседних домах 4 государственных детских сада.
Выезд на Кад и Зсд.
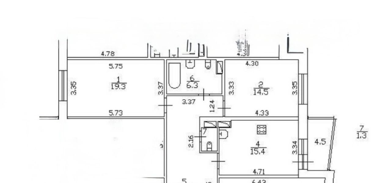
Квартира на две стороны (окна во двор, и на улицу), светлая, все комнаты изолированные.
Во всех комнатах установлены бризеры с дистанционным управлением.
Все трубы и стояки заменены.
Два сан. узла
Лоджия застекленная.
Кухня укомплектована бытовой техникой Bosch, Siemens, AEG, Liebherr.
Один взрослый собственник, обременений нет, вся сумма в договоре.
Особенности
Другие 3-х комнатные квартиры
Последние добавленные апартаменты
2-комнатная квартира: Санкт-Петербург, проспект Косыгина, 31к3 (48 м²)
О нас говорят
Хорошая услуга «Личный помощник». За вами закрепляют менеджера, который подбирает для вас варианты, помогает с подписанием договора и проверкой квартиры. Константин оперативно отвечал на наши вопросы и подстраивался под возникающие в ходе поиска требования.
Ins Fairy
Нашел себе отличную квартиру в Мск на Локалс. В этот раз пользовался услугой Личный помощник; Каждый день мне присылали варианты и по моим ответам уточняли мои критерии. В итоге выбрали прямо то, что мне было надо!
Ilya Malov
Отличный сервис! Нужный вариант подобрали уже на следующий день после обращения. Документы с арендодателем я подписала в конце той же недели и сразу переехала. Квартира после ремонта, все новое, я — первый арендатор, до метро 15 минут пешком. Это потрясающе!
Maria Levkina
Поиски квартиры заняли ровно неделю, Андрей проверял все варианты и составлял подробное описание. Так же оказал помощь при подписании договора. И вот теперь, я снимаю квартиру без комиссии, от собственника, с хорошим ремонтом, в новом доме по приемлемой цене.
Dmitry Kovtun
Клиентоориентированность — на высшем уровне. И форма связи любая.. мне было удобно общаться через почту — не проблема: в будни и даже в выходные, и днем и ночью — постоянно на связи) В какой-то момент даже подумала, что личный помощник никогда не отдыхает))
Teresa Olehnovich
Услуга «Личный помощник» — это не только дешевле, чем платить деньги каким-то непонятным посредникам или риэлторам, но и гарантированная ежедневная консультация от грамотного специалиста. Одним словом, всё очень понравилось.
Алина Василевская
Моя оценка 5! Нашли с личным помощником то, что нужно!! Удобно и безопасно. Отличный, проверенный сайт! Спасибо, Локалс!
Еленка Потапова
Искал с помощью услуги «Личный помощник». Сервис справился с поставленной перед ним задачей — найти мне жильё в короткие сроки (дедлайн 1,5 недели). Спасибо!
Dimas
У меня только положительные впечатления остались. Мне присылал варианты каждый день, иногда даже дважды. Всегда оперативно реагировал на мои пожелания. В итоге, так и сняли одну из предложенных квартир и очень довольны.
Любовь












