



























3-к кв. Санкт-Петербург пос. Парголово, Заречная ул., 45к2 (76.4 м²)
Продаётся теплая и уютная 3-х комнатная квартира. Квартира двухсторонняя.
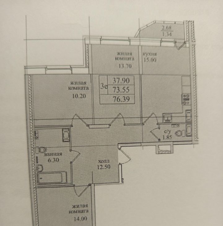
Общая площадь 76.4 кв. м.
Жилая площадь 37.9 кв. м. (13.7, 10.2, 14.0+ лоджия)
Кухня 15.0+лоджия, разделена на зоны кухни и гостиной
2 санузла.
В квартире произведен качественный ремонт:
- оштукатурены стены по маякам
- заменена электропроводка и автоматы (АВВ)
- заменены подоконники от застройщика, утеплены оконные проемы и откосы
- во всех помещениях установлены натяжные потолки
- в жилых комнатах - тканевые
- напольные покрытия - ламинат
- санузлы и кухня - плитка (полы и стены)
- в санузлах электрические теплые полы
- на лоджиях также произведён ремонт (подняты полы, уложен ламинат, подшиты потолки, встроенные шкафы для хранения)
- в коридоре имеется закрытая ниша для хранения верхней одежды и обуви
- в ванной комнате имеется закрытая техническа ниша
- кухня со встроенной техникой.
Развитая инфраструктура:
- 20 минут пешком до станции метро Парнас.
- во дворе новые школа, стадион и 2 детских сада
- детские игровые площадки
- удобный выезд на КАД
- развитый общественный транспорт
-10 минут пешком до новой детской и взрослой поликлиники
- в ближайших домах сетевые магазины, кафе, рестораны, фитнес-клубы, маркет плэйсы, аптеки.
Особенности
Другие 3-х комнатные квартиры
3-комнатная квартира: Санкт-Петербург, улица Лидии Зверевой, 9к1 (84.9 м²)
Последние добавленные апартаменты
2-комнатная квартира: посёлок Парголово, улица Михаила Дудина, 25к1 (67 м²)
Квартира-студия: Санкт-Петербург, Большой Сампсониевский проспект, 77/7 (30 м²)
О нас говорят
Хорошая услуга «Личный помощник». За вами закрепляют менеджера, который подбирает для вас варианты, помогает с подписанием договора и проверкой квартиры. Константин оперативно отвечал на наши вопросы и подстраивался под возникающие в ходе поиска требования.
Ins Fairy
Нашел себе отличную квартиру в Мск на Локалс. В этот раз пользовался услугой Личный помощник; Каждый день мне присылали варианты и по моим ответам уточняли мои критерии. В итоге выбрали прямо то, что мне было надо!
Ilya Malov
Отличный сервис! Нужный вариант подобрали уже на следующий день после обращения. Документы с арендодателем я подписала в конце той же недели и сразу переехала. Квартира после ремонта, все новое, я — первый арендатор, до метро 15 минут пешком. Это потрясающе!
Maria Levkina
Поиски квартиры заняли ровно неделю, Андрей проверял все варианты и составлял подробное описание. Так же оказал помощь при подписании договора. И вот теперь, я снимаю квартиру без комиссии, от собственника, с хорошим ремонтом, в новом доме по приемлемой цене.
Dmitry Kovtun
Клиентоориентированность — на высшем уровне. И форма связи любая.. мне было удобно общаться через почту — не проблема: в будни и даже в выходные, и днем и ночью — постоянно на связи) В какой-то момент даже подумала, что личный помощник никогда не отдыхает))
Teresa Olehnovich
Услуга «Личный помощник» — это не только дешевле, чем платить деньги каким-то непонятным посредникам или риэлторам, но и гарантированная ежедневная консультация от грамотного специалиста. Одним словом, всё очень понравилось.
Алина Василевская
Моя оценка 5! Нашли с личным помощником то, что нужно!! Удобно и безопасно. Отличный, проверенный сайт! Спасибо, Локалс!
Еленка Потапова
Искал с помощью услуги «Личный помощник». Сервис справился с поставленной перед ним задачей — найти мне жильё в короткие сроки (дедлайн 1,5 недели). Спасибо!
Dimas
У меня только положительные впечатления остались. Мне присылал варианты каждый день, иногда даже дважды. Всегда оперативно реагировал на мои пожелания. В итоге, так и сняли одну из предложенных квартир и очень довольны.
Любовь












