

























3-к кв. Санкт-Петербург пос. Парголово, Заречная ул., 13к1 (61.0 м²)
Квартира с огромным потенциалом для семьи с детьми. Произведена законная перепланировка, все документы на руках. Квартира двухсторонняя, детская и взрослая зоны в разных концах помещения. Квартира торцевая - минимум соседей. Новый детский сад и школа в 100 метрах от подъезда. Отдельного внимания стоит вид из окон, с одной стороны на Шуваловский парк и бескрайний горизонт. Летом солнце садится прямо напротив окон. Красота неописуемая. С другой стороны просторный вид на город и школу.
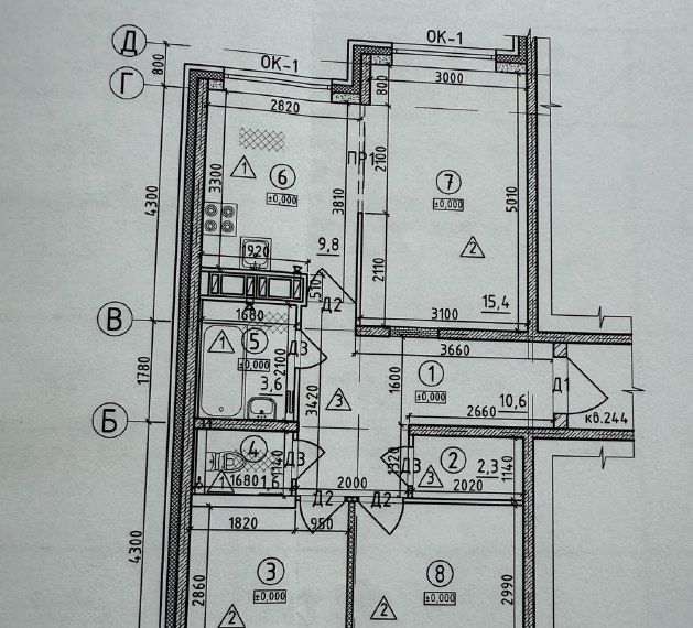
В квартире есть кладовка. Бонусом идет небольшой дизайн-проект с размерами помещений и мебели. Вам будет удобно делать ремонт и обставлять квартиру, когда под рукой всегда есть размеры стен/мебели.
Удачное расположение дома - до метро пешком 20 мин, рядом выезд на Выборгское шоссе, так же недалеко выезд на КАД.
Район уже обжит - вокруг полно магазинов, в том числе и больших, аптек, кафешек, ПВЗ всех маркетплейсов, салонов красоты и прочих удобностей.
Особенности
Другие 3-х комнатные квартиры
3-комнатная квартира: Санкт-Петербург, улица Жени Егоровой, 5к1 (60.1 м²)
3-комнатная квартира: Санкт-Петербург, проспект Энгельса, 115к1 (63.6 м²)
Последние добавленные апартаменты
2-комнатная квартира: Санкт-Петербург, Каменноостровский проспект, 13/2 (54 м²)
1-комнатная квартира: Санкт-Петербург, Пискарёвский проспект, 25к2 (44 м²)
О нас говорят
Хорошая услуга «Личный помощник». За вами закрепляют менеджера, который подбирает для вас варианты, помогает с подписанием договора и проверкой квартиры. Константин оперативно отвечал на наши вопросы и подстраивался под возникающие в ходе поиска требования.
Ins Fairy
Нашел себе отличную квартиру в Мск на Локалс. В этот раз пользовался услугой Личный помощник; Каждый день мне присылали варианты и по моим ответам уточняли мои критерии. В итоге выбрали прямо то, что мне было надо!
Ilya Malov
Отличный сервис! Нужный вариант подобрали уже на следующий день после обращения. Документы с арендодателем я подписала в конце той же недели и сразу переехала. Квартира после ремонта, все новое, я — первый арендатор, до метро 15 минут пешком. Это потрясающе!
Maria Levkina
Поиски квартиры заняли ровно неделю, Андрей проверял все варианты и составлял подробное описание. Так же оказал помощь при подписании договора. И вот теперь, я снимаю квартиру без комиссии, от собственника, с хорошим ремонтом, в новом доме по приемлемой цене.
Dmitry Kovtun
Клиентоориентированность — на высшем уровне. И форма связи любая.. мне было удобно общаться через почту — не проблема: в будни и даже в выходные, и днем и ночью — постоянно на связи) В какой-то момент даже подумала, что личный помощник никогда не отдыхает))
Teresa Olehnovich
Услуга «Личный помощник» — это не только дешевле, чем платить деньги каким-то непонятным посредникам или риэлторам, но и гарантированная ежедневная консультация от грамотного специалиста. Одним словом, всё очень понравилось.
Алина Василевская
Моя оценка 5! Нашли с личным помощником то, что нужно!! Удобно и безопасно. Отличный, проверенный сайт! Спасибо, Локалс!
Еленка Потапова
Искал с помощью услуги «Личный помощник». Сервис справился с поставленной перед ним задачей — найти мне жильё в короткие сроки (дедлайн 1,5 недели). Спасибо!
Dimas
У меня только положительные впечатления остались. Мне присылал варианты каждый день, иногда даже дважды. Всегда оперативно реагировал на мои пожелания. В итоге, так и сняли одну из предложенных квартир и очень довольны.
Любовь












