

















3-к кв. Санкт-Петербург пер. Каховского, 3 (77.7 м²)
- капитальный ремонт
- железобетонные перекрытия
- согласованная перепланировка
- огромные окна и двери после реставрации
- двусторонняя планировка
- последний этаж
- две квартиры на этаже
- место для хранения в подвале
- парковка
- достойные соседи и окружение
- абсолютная тишина
- транспортная доступность: зсд, метро, центр
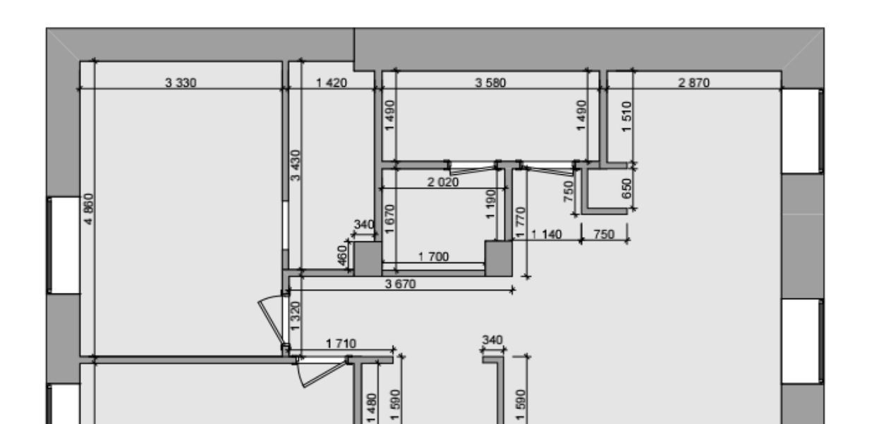
"Дом работников народного комиссариата текстильной промышленности" построен в 1934-1937 гг. Пятый этаж надстроен в 1955 г. Перекрытия межэтажные и чердачные- железобетон. Красивый и основательно построенный дом с толстыми кирпичными стенами. Квартира двусторонняя. Из окон квартиры открывается вид на деревья и небо. Две квартиры на этаже. Высокие потолки: 3,20 м. В квартире реализована максимально функциональная планировка в соответствии с проектом (согласование). Произведена полная замена систем отопления, водоснабжения, канализации, вентиляции и электроснабжения. Получены ТУ и увеличена электрическая мощность на квартиру. Произведена замена полов и перегородок внутри квартиры. Сохранены и отреставрированы огромные деревянные окна. Ремонт делали для себя специалистами высокого класса с использованием качественных материалов.
#сталинка #сталинкасремонтом #капитальныйремонт #железобетонные перекрытия
Особенности
Другие 3-х комнатные квартиры
3-комнатная квартира: Санкт-Петербург, Коломяжский проспект, 13к2 (90 м²)
3-комнатная квартира: Санкт-Петербург, территория Лахта, Новая улица, 51к55 (69.2 м²)
3-комнатная квартира: Санкт-Петербург, территория Лахта, Новая улица, 51к12 (66 м²)
3-комнатная квартира: Санкт-Петербург, территория Лахта, Новая улица, 51к12 (66 м²)
Последние добавленные апартаменты
1-комнатная квартира: Санкт-Петербург, проспект Обуховской Обороны, 36 (34 м²)
1-комнатная квартира: Санкт-Петербург, Белоостровская улица, 28 (45 м²)
1-комнатная квартира: Санкт-Петербург, проспект Авиаконструкторов, 63 (39 м²)
О нас говорят
Хорошая услуга «Личный помощник». За вами закрепляют менеджера, который подбирает для вас варианты, помогает с подписанием договора и проверкой квартиры. Константин оперативно отвечал на наши вопросы и подстраивался под возникающие в ходе поиска требования.
Ins Fairy
Нашел себе отличную квартиру в Мск на Локалс. В этот раз пользовался услугой Личный помощник; Каждый день мне присылали варианты и по моим ответам уточняли мои критерии. В итоге выбрали прямо то, что мне было надо!
Ilya Malov
Отличный сервис! Нужный вариант подобрали уже на следующий день после обращения. Документы с арендодателем я подписала в конце той же недели и сразу переехала. Квартира после ремонта, все новое, я — первый арендатор, до метро 15 минут пешком. Это потрясающе!
Maria Levkina
Поиски квартиры заняли ровно неделю, Андрей проверял все варианты и составлял подробное описание. Так же оказал помощь при подписании договора. И вот теперь, я снимаю квартиру без комиссии, от собственника, с хорошим ремонтом, в новом доме по приемлемой цене.
Dmitry Kovtun
Клиентоориентированность — на высшем уровне. И форма связи любая.. мне было удобно общаться через почту — не проблема: в будни и даже в выходные, и днем и ночью — постоянно на связи) В какой-то момент даже подумала, что личный помощник никогда не отдыхает))
Teresa Olehnovich
Услуга «Личный помощник» — это не только дешевле, чем платить деньги каким-то непонятным посредникам или риэлторам, но и гарантированная ежедневная консультация от грамотного специалиста. Одним словом, всё очень понравилось.
Алина Василевская
Моя оценка 5! Нашли с личным помощником то, что нужно!! Удобно и безопасно. Отличный, проверенный сайт! Спасибо, Локалс!
Еленка Потапова
Искал с помощью услуги «Личный помощник». Сервис справился с поставленной перед ним задачей — найти мне жильё в короткие сроки (дедлайн 1,5 недели). Спасибо!
Dimas
У меня только положительные впечатления остались. Мне присылал варианты каждый день, иногда даже дважды. Всегда оперативно реагировал на мои пожелания. В итоге, так и сняли одну из предложенных квартир и очень довольны.
Любовь












