






























3-к кв. Санкт-Петербург 2-я Березовая аллея, 13-15В (136.0 м²)
Предлагается вашему вниманию уникальная квартира в элитном ЖК на Какменном острове прямо в сердце парковой зоны с видом на озеро.
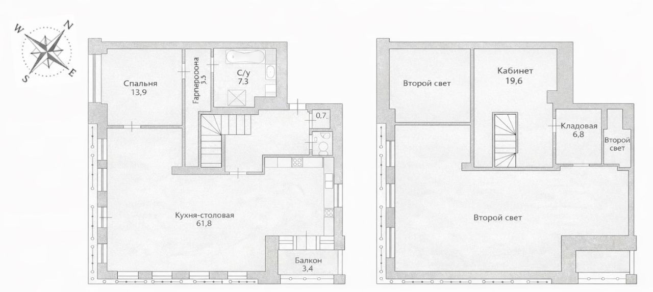
В вашем распоряжении:
- просторная и светлая гостиная объединенная с кухней в которой установлен настоящий камин на дровах, а большое количество окон с видом зелень окружающего парка и озеро создают неповторимую атмосферу уюта и загородной жизни,
- спальня с атмосферной стеной из оникса и встроенной подсветкой, из спальни вход в вместительную гардеробную комнату и санузел с гидромассажной ванной и душевой на два человека,
- на втором этаже кабинет и кладовая,
- гостевой санузел в прихожей.
В подземном паркинге с доступом на лифте предоставим удобное парковочное место, которое уже включено в стоимость.
Полное техническое оснащение квартиры: установлена система умный дом, встроенная акустическая система, подогрев полов, фильтры очистки воды в квартире и собственная котельная в доме.
Инфраструктура жилого комплекса соответствующая самым высоким стандартам: в вашем распоряжении большая и тихая внутренная зона комплекса для неспешных прогулок вдоль канала и спуск к воде.
Вашу безопасность обеспечивает профессиональная служба круглосуточной охраны по всему периметру комплекса с полным контролем доступа.
Однородное окружение в комплексе, и все прелести расположения: тишина, свежий воздух окружающих парков, живописные виды, зелень Каменного острова и близкое расположение к центру города.
Позвоните нам, мы с радостью ответим на ваши вопросы и организуем просмотр в удобное для вас время.
Удобства
Балкон
Посудомоечная машина
Холодильник
Стиральная машина
Телевизор
Нагреватель воды
Кондиционер
Особенности
Можно курить
Подходит для мероприятий
Можно с животными
Подходит для семьи с детьми
Другие 3-х комнатные квартиры
Последние добавленные апартаменты
1-комнатная квартира: Санкт-Петербург, проспект Авиаконструкторов, 20к1 (37 м²)
О нас говорят
Хорошая услуга «Личный помощник». За вами закрепляют менеджера, который подбирает для вас варианты, помогает с подписанием договора и проверкой квартиры. Константин оперативно отвечал на наши вопросы и подстраивался под возникающие в ходе поиска требования.
Ins Fairy
Нашел себе отличную квартиру в Мск на Локалс. В этот раз пользовался услугой Личный помощник; Каждый день мне присылали варианты и по моим ответам уточняли мои критерии. В итоге выбрали прямо то, что мне было надо!
Ilya Malov
Отличный сервис! Нужный вариант подобрали уже на следующий день после обращения. Документы с арендодателем я подписала в конце той же недели и сразу переехала. Квартира после ремонта, все новое, я — первый арендатор, до метро 15 минут пешком. Это потрясающе!
Maria Levkina
Поиски квартиры заняли ровно неделю, Андрей проверял все варианты и составлял подробное описание. Так же оказал помощь при подписании договора. И вот теперь, я снимаю квартиру без комиссии, от собственника, с хорошим ремонтом, в новом доме по приемлемой цене.
Dmitry Kovtun
Клиентоориентированность — на высшем уровне. И форма связи любая.. мне было удобно общаться через почту — не проблема: в будни и даже в выходные, и днем и ночью — постоянно на связи) В какой-то момент даже подумала, что личный помощник никогда не отдыхает))
Teresa Olehnovich
Услуга «Личный помощник» — это не только дешевле, чем платить деньги каким-то непонятным посредникам или риэлторам, но и гарантированная ежедневная консультация от грамотного специалиста. Одним словом, всё очень понравилось.
Алина Василевская
Моя оценка 5! Нашли с личным помощником то, что нужно!! Удобно и безопасно. Отличный, проверенный сайт! Спасибо, Локалс!
Еленка Потапова
Искал с помощью услуги «Личный помощник». Сервис справился с поставленной перед ним задачей — найти мне жильё в короткие сроки (дедлайн 1,5 недели). Спасибо!
Dimas
У меня только положительные впечатления остались. Мне присылал варианты каждый день, иногда даже дважды. Всегда оперативно реагировал на мои пожелания. В итоге, так и сняли одну из предложенных квартир и очень довольны.
Любовь












