2-комнатная квартира: Санкт-Петербург, Железнодорожный проспект, 14к1 (47.1 м²)
Продается просторная евро-трешка.
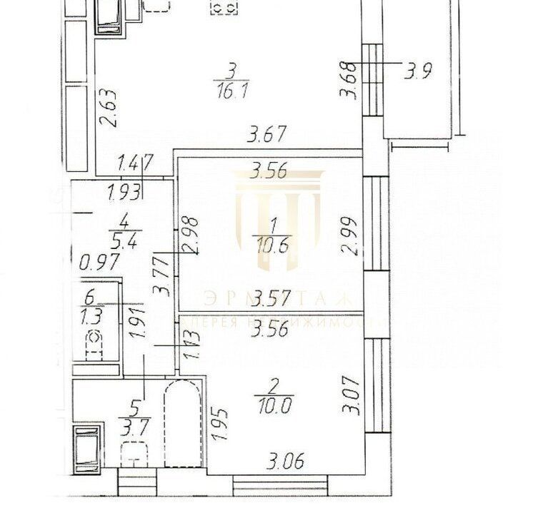
Площадь кухни-гостиной 16,1 кв.м,
Общая площадь 47,1+лоджия 3,9 кв.м.
Высота потолка 2,75 м.
Квартира расположена на 14 этаже корпуса 1.
Окна выходят на Восток.
Отделка от застройщика `Шоколад`.
Ламинат 33-го класса прочности.
В санузле кафельная плитка и система `тёплый пол` с цифровым терморегулятором.
Установлены счётчики горячего и холодного водоснабжения, кроме того предусмотрен индивидуальный учёт тепловой энергии.
ЖК Стрижи в Невском с закрытой территорией и контролем доступа. Во дворе расположены спортплощадки и зелёные зоны отдыха. Пространство дворов свободно от машин: есть подземный паркинг и открытые гостевые парковки. Особенностью проекта являются парящие дворы, что однозначно выделяет квартал из окружающей застройки. На территории детский сад. Жилой комплекс находится в Невском районе Санкт-Петербурга. 7 минут пешком до метро `Ломоносовская`, одна минута пешком до Парка сказок имени Бабушкина, 10 минут до набережной Невы с прогулочной зоной. В пешей доступности работают магазины, банки, школьные и дошкольные образовательные учреждения. Дом сдан.
Особенности
Другие 2-х комнатные квартиры
Последние добавленные апартаменты
1-комнатная квартира: Санкт-Петербург, Планерная улица, 87к1 (39.2 м²)
1-комнатная квартира: Санкт-Петербург, Пискарёвский проспект, 165к1 (38 м²)
О нас говорят
Хорошая услуга «Личный помощник». За вами закрепляют менеджера, который подбирает для вас варианты, помогает с подписанием договора и проверкой квартиры. Константин оперативно отвечал на наши вопросы и подстраивался под возникающие в ходе поиска требования.
Ins Fairy
Нашел себе отличную квартиру в Мск на Локалс. В этот раз пользовался услугой Личный помощник; Каждый день мне присылали варианты и по моим ответам уточняли мои критерии. В итоге выбрали прямо то, что мне было надо!
Ilya Malov
Отличный сервис! Нужный вариант подобрали уже на следующий день после обращения. Документы с арендодателем я подписала в конце той же недели и сразу переехала. Квартира после ремонта, все новое, я — первый арендатор, до метро 15 минут пешком. Это потрясающе!
Maria Levkina
Поиски квартиры заняли ровно неделю, Андрей проверял все варианты и составлял подробное описание. Так же оказал помощь при подписании договора. И вот теперь, я снимаю квартиру без комиссии, от собственника, с хорошим ремонтом, в новом доме по приемлемой цене.
Dmitry Kovtun
Клиентоориентированность — на высшем уровне. И форма связи любая.. мне было удобно общаться через почту — не проблема: в будни и даже в выходные, и днем и ночью — постоянно на связи) В какой-то момент даже подумала, что личный помощник никогда не отдыхает))
Teresa Olehnovich
Услуга «Личный помощник» — это не только дешевле, чем платить деньги каким-то непонятным посредникам или риэлторам, но и гарантированная ежедневная консультация от грамотного специалиста. Одним словом, всё очень понравилось.
Алина Василевская
Моя оценка 5! Нашли с личным помощником то, что нужно!! Удобно и безопасно. Отличный, проверенный сайт! Спасибо, Локалс!
Еленка Потапова
Искал с помощью услуги «Личный помощник». Сервис справился с поставленной перед ним задачей — найти мне жильё в короткие сроки (дедлайн 1,5 недели). Спасибо!
Dimas
У меня только положительные впечатления остались. Мне присылал варианты каждый день, иногда даже дважды. Всегда оперативно реагировал на мои пожелания. В итоге, так и сняли одну из предложенных квартир и очень довольны.
Любовь












