2-комнатная квартира: Санкт-Петербург, Яхтенная улица, 6к1 (52.6 м²)
Продается 2-комнатная квартира в 6 минутах ходьбы от метро Беговая.
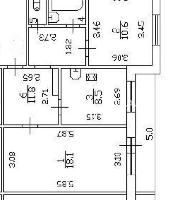
Общая площадь 52.6 кв. м. Две раздельные комнаты 18.10 кв.м. + 10.60 кв.м., кухня - 8.5 кв. м. Выход на балкон из комнаты. Балкон 5 кв.м. застеклен.
Квартира без отделки, подготовлена к ремонту, стояки ГВС и ХВС заменены. Планировка квартиры удобная, большая прихожая, есть место для гардероба. Санузел раздельный. Дом находится в ухоженном состоянии, с одним пассажирским и одним грузовым лифтом. На территории есть наземная парковка, что решает вопросы с местом для автомобиля.
Локация с развитой инфраструктурой, рядом остановки общественного транспорта, метро, выезд на ЗСД. Расположение квартиры позволяет быстро добраться до любой точки города.
Рядом :детские сады, школы, гипермаркеты, Зенит Арена, парк 300-летия СПБ (через дорогу), общественно-деловой комплекс Лахта-Центр, Приморский Парк Победы, ЦПКиО, АКВАПАРК (ТРК Питерленд), магазины, торговые центры и прочая инфраструктура.
Квартира без обременений, один взрослый собственник, свободная продажа, документы готовы. Подходит для покупки в ипотеку.
Особенности
Другие 2-х комнатные квартиры
2-комнатная квартира: Санкт-Петербург, улица Вадима Шефнера, 14к1 (32 м²)
Последние добавленные апартаменты
Квартира-студия: Санкт-Петербург, 24-я линия Васильевского острова, 25 (30 м²)
2-комнатная квартира: Санкт-Петербург, 8-я Советская улица, 37-39 (70 м²)
2-комнатная квартира: Санкт-Петербург, 11-я Красноармейская улица, 1 (71 м²)
О нас говорят
Хорошая услуга «Личный помощник». За вами закрепляют менеджера, который подбирает для вас варианты, помогает с подписанием договора и проверкой квартиры. Константин оперативно отвечал на наши вопросы и подстраивался под возникающие в ходе поиска требования.
Ins Fairy
Нашел себе отличную квартиру в Мск на Локалс. В этот раз пользовался услугой Личный помощник; Каждый день мне присылали варианты и по моим ответам уточняли мои критерии. В итоге выбрали прямо то, что мне было надо!
Ilya Malov
Отличный сервис! Нужный вариант подобрали уже на следующий день после обращения. Документы с арендодателем я подписала в конце той же недели и сразу переехала. Квартира после ремонта, все новое, я — первый арендатор, до метро 15 минут пешком. Это потрясающе!
Maria Levkina
Поиски квартиры заняли ровно неделю, Андрей проверял все варианты и составлял подробное описание. Так же оказал помощь при подписании договора. И вот теперь, я снимаю квартиру без комиссии, от собственника, с хорошим ремонтом, в новом доме по приемлемой цене.
Dmitry Kovtun
Клиентоориентированность — на высшем уровне. И форма связи любая.. мне было удобно общаться через почту — не проблема: в будни и даже в выходные, и днем и ночью — постоянно на связи) В какой-то момент даже подумала, что личный помощник никогда не отдыхает))
Teresa Olehnovich
Услуга «Личный помощник» — это не только дешевле, чем платить деньги каким-то непонятным посредникам или риэлторам, но и гарантированная ежедневная консультация от грамотного специалиста. Одним словом, всё очень понравилось.
Алина Василевская
Моя оценка 5! Нашли с личным помощником то, что нужно!! Удобно и безопасно. Отличный, проверенный сайт! Спасибо, Локалс!
Еленка Потапова
Искал с помощью услуги «Личный помощник». Сервис справился с поставленной перед ним задачей — найти мне жильё в короткие сроки (дедлайн 1,5 недели). Спасибо!
Dimas
У меня только положительные впечатления остались. Мне присылал варианты каждый день, иногда даже дважды. Всегда оперативно реагировал на мои пожелания. В итоге, так и сняли одну из предложенных квартир и очень довольны.
Любовь












