


























2-комнатная квартира: Санкт-Петербург, Варшавская улица, 26 (55.3 м²)
Продается очень уютная двухкомнатная квартира с балконом в зеленом Московском районе с современным ремонтом.
Два взрослых собственника, без обременений, без мат.капитала.
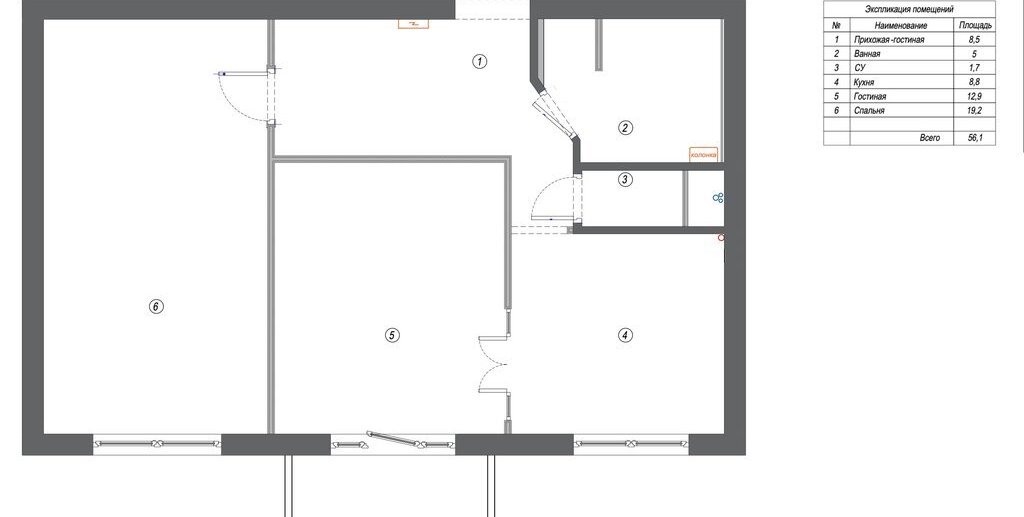
В квартире удачная планировка:
- площадь 55,3 м2
- две изолированные комнаты 19 и 13 м2
- кухня 9м2
- изолированные ванная и туалет
Высота потолков 3 м, большие окна, ж\б перекрытия, толстые несущие стены. Дом кирпичный, 4 из 5 этажей.
В 2022 году выполнен капитальный ремонт квартиры с использование качественных строительных и отделочных материалов - сантехника AM.PM., Roca, Lemark, замена проводки, электрика Schneider Electric, плитка Italon, краска Tikkurila, двери ProfilDoors, кухня IKEA с техникой Electrolux, Gorenje, Haier.
Стены оформлены под покраску, на полу надежное и прочное покрытие из кварцвинила. В спальне отреставрирован родной паркет из дуба.
В ванной теплый пол и теплая стена, как замена полотенцесушителя.
Квартира оснащена газовой колонкой Bosch, что обеспечивает бесперебойную подачу горячей воды.
Установлен кондиционер в спальне.
На балконе выполнен ремонт, сделано панорамное остекление, теплый пол и освещение.
Квартира выходит окнами на зеленый двор школы, все жилые дома расположены вдали.
В 2024 году произведен капитальный ремонт системы ХВС и отопления во всем доме.
Чистый подъезд, максимально приятные и соседи, зеленый район с прекрасной инфраструктурой. До метро Электросила 10 минут пешком. До центра 15 минут на машине, столько же - до аэропорта.
Особенности
Другие 2-х комнатные квартиры
2-комнатная квартира: Санкт-Петербург, проспект Народного Ополчения, 10 (71.9 м²)
Последние добавленные апартаменты
1-комнатная квартира: Санкт-Петербург, проспект Луначарского, 11к1 (46.5 м²)
2-комнатная квартира: Санкт-Петербург, проспект Энергетиков, 9к3 (59 м²)
О нас говорят
Хорошая услуга «Личный помощник». За вами закрепляют менеджера, который подбирает для вас варианты, помогает с подписанием договора и проверкой квартиры. Константин оперативно отвечал на наши вопросы и подстраивался под возникающие в ходе поиска требования.
Ins Fairy
Нашел себе отличную квартиру в Мск на Локалс. В этот раз пользовался услугой Личный помощник; Каждый день мне присылали варианты и по моим ответам уточняли мои критерии. В итоге выбрали прямо то, что мне было надо!
Ilya Malov
Отличный сервис! Нужный вариант подобрали уже на следующий день после обращения. Документы с арендодателем я подписала в конце той же недели и сразу переехала. Квартира после ремонта, все новое, я — первый арендатор, до метро 15 минут пешком. Это потрясающе!
Maria Levkina
Поиски квартиры заняли ровно неделю, Андрей проверял все варианты и составлял подробное описание. Так же оказал помощь при подписании договора. И вот теперь, я снимаю квартиру без комиссии, от собственника, с хорошим ремонтом, в новом доме по приемлемой цене.
Dmitry Kovtun
Клиентоориентированность — на высшем уровне. И форма связи любая.. мне было удобно общаться через почту — не проблема: в будни и даже в выходные, и днем и ночью — постоянно на связи) В какой-то момент даже подумала, что личный помощник никогда не отдыхает))
Teresa Olehnovich
Услуга «Личный помощник» — это не только дешевле, чем платить деньги каким-то непонятным посредникам или риэлторам, но и гарантированная ежедневная консультация от грамотного специалиста. Одним словом, всё очень понравилось.
Алина Василевская
Моя оценка 5! Нашли с личным помощником то, что нужно!! Удобно и безопасно. Отличный, проверенный сайт! Спасибо, Локалс!
Еленка Потапова
Искал с помощью услуги «Личный помощник». Сервис справился с поставленной перед ним задачей — найти мне жильё в короткие сроки (дедлайн 1,5 недели). Спасибо!
Dimas
У меня только положительные впечатления остались. Мне присылал варианты каждый день, иногда даже дважды. Всегда оперативно реагировал на мои пожелания. В итоге, так и сняли одну из предложенных квартир и очень довольны.
Любовь












