2-комнатная квартира: Санкт-Петербург, проспект Пятилеток, 15к3 (50.8 м²)
Светлая и просторная двухкомнатная квартира в спальном районе общей площадью 50.8 кв.м.
Идеальный вариант для небольшой семьи или для тех, кто ищет выгодное вложение средств.
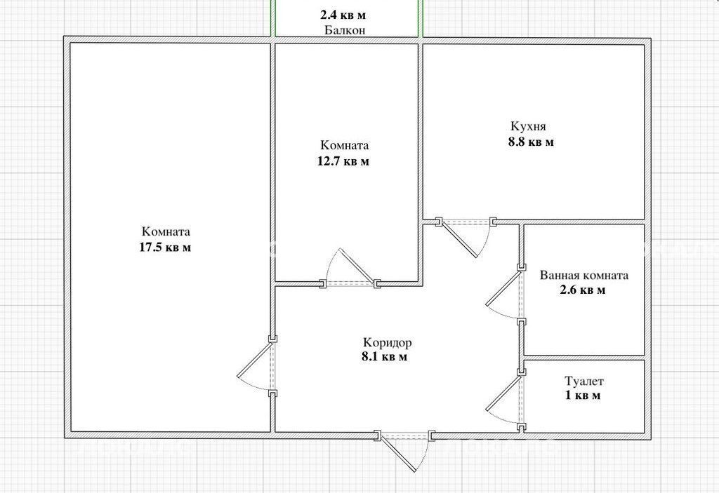
Две изолированные комнаты площадью 17.5 кв.м и 12.7 кв.м позволяют организовать пространство по вашему вкусу. Кухня 8.8 кв.м станет любимым местом для семейных обедов и дружеских посиделок.
Застекленный балкон площадью 2,4 кв.м — дополнительное место для хранения вещей.
Удобное расположение квартиры в озелененном районе:
* 12 минут пешком до станции метро «Проспект Большевиков» и 4 минуты ходьбы до остановки общественного транспорта
* Развитая инфраструктура района - в пешей доступности (магазины, аптеки, школы, садики, парки, детские площадки)
* Наличие парковочных мест
* Окна выходят на тихий двор - прекрасный вид на благоустроенную территорию(без машин)
Квартира готова к проживанию - выполнен классический ремонт с использованием надежных материалов:
* Ламинат на полу
* Исправная сантехника
* Тёплые стены и окна (стеклопакеты)
* Надежная входная дверь обеспечивает безопасность и шумоизоляцию
* Центральное отопление гарантирует комфортную температуру в холодное время года
* Раздельный санузел — дополнительное удобство для всей семьи
Один взрослый собственник с 2005 года. Без обременений. Прямая продажа. Квартира готова к сделке.
Ответим на все интересующие вопросы и организуем показ в удобное для вас время.
Особенности
Другие 2-х комнатные квартиры
2-комнатная квартира: Санкт-Петербург, проспект Наставников, 9к1 (49 м²)
2-комнатная квартира: Санкт-Петербург, улица Ворошилова, 27к1 (62.3 м²)
Последние добавленные апартаменты
3-комнатная квартира: Санкт-Петербург, переулок Каховского, 5Б (71 м²)
2-комнатная квартира: Санкт-Петербург, улица Сантьяго-де-Куба, 10к1 (71 м²)
2-комнатная квартира: Санкт-Петербург, Богатырский проспект, 55к1 (54 м²)
О нас говорят
Хорошая услуга «Личный помощник». За вами закрепляют менеджера, который подбирает для вас варианты, помогает с подписанием договора и проверкой квартиры. Константин оперативно отвечал на наши вопросы и подстраивался под возникающие в ходе поиска требования.
Ins Fairy
Нашел себе отличную квартиру в Мск на Локалс. В этот раз пользовался услугой Личный помощник; Каждый день мне присылали варианты и по моим ответам уточняли мои критерии. В итоге выбрали прямо то, что мне было надо!
Ilya Malov
Отличный сервис! Нужный вариант подобрали уже на следующий день после обращения. Документы с арендодателем я подписала в конце той же недели и сразу переехала. Квартира после ремонта, все новое, я — первый арендатор, до метро 15 минут пешком. Это потрясающе!
Maria Levkina
Поиски квартиры заняли ровно неделю, Андрей проверял все варианты и составлял подробное описание. Так же оказал помощь при подписании договора. И вот теперь, я снимаю квартиру без комиссии, от собственника, с хорошим ремонтом, в новом доме по приемлемой цене.
Dmitry Kovtun
Клиентоориентированность — на высшем уровне. И форма связи любая.. мне было удобно общаться через почту — не проблема: в будни и даже в выходные, и днем и ночью — постоянно на связи) В какой-то момент даже подумала, что личный помощник никогда не отдыхает))
Teresa Olehnovich
Услуга «Личный помощник» — это не только дешевле, чем платить деньги каким-то непонятным посредникам или риэлторам, но и гарантированная ежедневная консультация от грамотного специалиста. Одним словом, всё очень понравилось.
Алина Василевская
Моя оценка 5! Нашли с личным помощником то, что нужно!! Удобно и безопасно. Отличный, проверенный сайт! Спасибо, Локалс!
Еленка Потапова
Искал с помощью услуги «Личный помощник». Сервис справился с поставленной перед ним задачей — найти мне жильё в короткие сроки (дедлайн 1,5 недели). Спасибо!
Dimas
У меня только положительные впечатления остались. Мне присылал варианты каждый день, иногда даже дважды. Всегда оперативно реагировал на мои пожелания. В итоге, так и сняли одну из предложенных квартир и очень довольны.
Любовь












