




























2-комнатная квартира: Санкт-Петербург, Петровский проспект, 9к2 (69 м²)
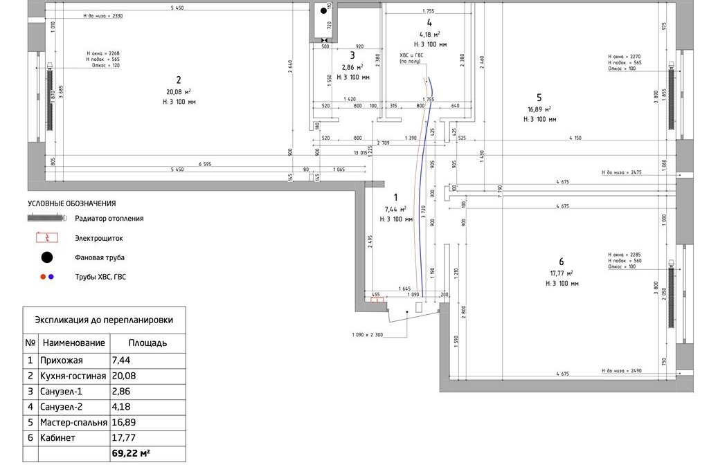
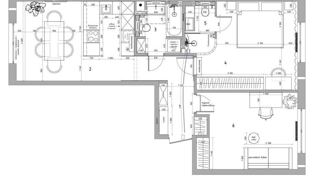
Продаётся 2комнатная квартира на 4 этаже 9этажного дома в современном жилом комплексе на острове. Планировка свободная: внутри нет несущих стен, поэтому пространство можно зонировать под ваши задачи и проект любой сложности (гостинаякухня, мастерспальня, кабинет и т.д.).
Дом выделяется качественными материалами и инженерией: фасады с клинкерной облицовкой, подсветка территории и архитектуры, высокие потолки 3 м. В квартире — дубовые окна, выходят на две стороны.
Территория проекта закрытая и охраняемая, предусмотрен подземный паркинг. Для семей с детьми всё рядом: детские площадки по возрастам, современные школа и детские сады, а также прогулочная набережная для ежедневных маршрутов.
По транспортной доступности: до исторического центра — порядка 510 минут, до Крестовского острова — около 15 минут пешком. Удобные выезд на ЗСД, а вся инфраструктура Петроградской стороны — в пешей доступности.
Дизайн проект со всей документацией и чертежами.
Квартира без отделки, на фотографиях представлена часть визуализаций дизайн-проекта.
Один собственник. Агентам просьба не звонить. Показ по договорённости — пишите/звоните, отвечу на вопросы и договоримся на просмотр.
Особенности
Последние добавленные апартаменты
1-комнатная квартира: Санкт-Петербург, проспект Луначарского, 11к1 (46.5 м²)
2-комнатная квартира: Санкт-Петербург, проспект Энергетиков, 9к3 (59 м²)
О нас говорят
Хорошая услуга «Личный помощник». За вами закрепляют менеджера, который подбирает для вас варианты, помогает с подписанием договора и проверкой квартиры. Константин оперативно отвечал на наши вопросы и подстраивался под возникающие в ходе поиска требования.
Ins Fairy
Нашел себе отличную квартиру в Мск на Локалс. В этот раз пользовался услугой Личный помощник; Каждый день мне присылали варианты и по моим ответам уточняли мои критерии. В итоге выбрали прямо то, что мне было надо!
Ilya Malov
Отличный сервис! Нужный вариант подобрали уже на следующий день после обращения. Документы с арендодателем я подписала в конце той же недели и сразу переехала. Квартира после ремонта, все новое, я — первый арендатор, до метро 15 минут пешком. Это потрясающе!
Maria Levkina
Поиски квартиры заняли ровно неделю, Андрей проверял все варианты и составлял подробное описание. Так же оказал помощь при подписании договора. И вот теперь, я снимаю квартиру без комиссии, от собственника, с хорошим ремонтом, в новом доме по приемлемой цене.
Dmitry Kovtun
Клиентоориентированность — на высшем уровне. И форма связи любая.. мне было удобно общаться через почту — не проблема: в будни и даже в выходные, и днем и ночью — постоянно на связи) В какой-то момент даже подумала, что личный помощник никогда не отдыхает))
Teresa Olehnovich
Услуга «Личный помощник» — это не только дешевле, чем платить деньги каким-то непонятным посредникам или риэлторам, но и гарантированная ежедневная консультация от грамотного специалиста. Одним словом, всё очень понравилось.
Алина Василевская
Моя оценка 5! Нашли с личным помощником то, что нужно!! Удобно и безопасно. Отличный, проверенный сайт! Спасибо, Локалс!
Еленка Потапова
Искал с помощью услуги «Личный помощник». Сервис справился с поставленной перед ним задачей — найти мне жильё в короткие сроки (дедлайн 1,5 недели). Спасибо!
Dimas
У меня только положительные впечатления остались. Мне присылал варианты каждый день, иногда даже дважды. Всегда оперативно реагировал на мои пожелания. В итоге, так и сняли одну из предложенных квартир и очень довольны.
Любовь












