



















2-комнатная квартира: Санкт-Петербург, Можайская улица, 24-26 (59.6 м²)
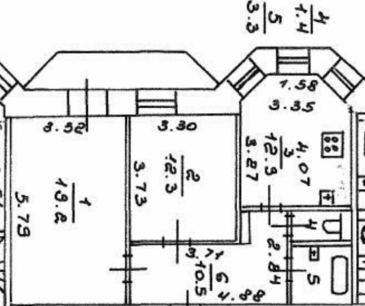
Забота начинается с порога.Ваш будущий дом в центре Петербурга-это современный комфорт на месте с историей и уникальными характеристиками,кухня 12,3 кв.м. с тремя панорамными окнами под куполом высота 5,8 метров.
Такой архитектурной детали нет больше в округе.
Дом и локация думают о Вас ,2003 года постройки.Тихий,современный дом,от проверенного застройщика "Петербургстрой Skanka" с закрытой территорией и ухоженным фасадом в стиле модерн ,что придаёт шарма. В парадной-лифт,видеонаблюдение,чистота и порядок.
Собственное ТСЖ обеспечивает низкие коммунальные платежи (до 7 тыс,рублей в зимний период).
Добросовестные соседи.Это бесценно в центре Мегаполиса.
Дом построен на историческом месте.Вы станете частью продолжения истории доходного дома купца Кононова.
Это редкий случай,когда современный комфорт встречается с духом Петербурга.
Здесь все создано для спокойной,счастливой жизни.
Ваше личное пространство с характером.
Сердце квартиры-кухня под куполом.
Высота 5,8 метра и три окна наполняют ее светом и ощущением простора.
Здесь встречают рассвет и провожают закат.
Открываются неповторимые виды на крыши Петербурга,Исаакиевский собор,Троицкий собор,Адмиралтейство.
Разумная планировка:две изолированные комнаты 19,2+12,9 кв,м.,кухня 12,3 кв,м(что редко для площади 60 кв,м,)коридор 10,5 кв,м -удобное пространство для хранения.
Балкон(3,8 метра)в комнате 19,2 кв,м станет Вашей личной смотровой площадкой для встреч с городом.
Идеально для семьи с ребенком или для обустройства кабинета.
Вложение в качество жизни и надежный актив.
Покупая эту квартиру,Вы вкладываетесь в качество жизни каждый день.
Это ещё и защищённый актив: виды,купол,история и уникальная локация,лучшая транспортная доступность 5-10 минут ходьбы,до станций метро:"Пушкинская"."Звенигородская"."Технологический институт".
Рядом Сад -ТЮЗа,Багратионовский сквер.
Весь исторический центр,достопримечательности,театра,рестораны,оберегают его ценность
Особенности
Другие 2-х комнатные квартиры
2-комнатная квартира: Санкт-Петербург, Богатырский проспект, 60к1 (69 м²)
Последние добавленные апартаменты
1-комнатная квартира: Санкт-Петербург, проспект Ветеранов, 71к5 (35 м²)
1-комнатная квартира: Санкт-Петербург, проспект Обуховской Обороны, 36 (36 м²)
1-комнатная квартира: Санкт-Петербург, Лиговский проспект, 242 (38 м²)
О нас говорят
Хорошая услуга «Личный помощник». За вами закрепляют менеджера, который подбирает для вас варианты, помогает с подписанием договора и проверкой квартиры. Константин оперативно отвечал на наши вопросы и подстраивался под возникающие в ходе поиска требования.
Ins Fairy
Нашел себе отличную квартиру в Мск на Локалс. В этот раз пользовался услугой Личный помощник; Каждый день мне присылали варианты и по моим ответам уточняли мои критерии. В итоге выбрали прямо то, что мне было надо!
Ilya Malov
Отличный сервис! Нужный вариант подобрали уже на следующий день после обращения. Документы с арендодателем я подписала в конце той же недели и сразу переехала. Квартира после ремонта, все новое, я — первый арендатор, до метро 15 минут пешком. Это потрясающе!
Maria Levkina
Поиски квартиры заняли ровно неделю, Андрей проверял все варианты и составлял подробное описание. Так же оказал помощь при подписании договора. И вот теперь, я снимаю квартиру без комиссии, от собственника, с хорошим ремонтом, в новом доме по приемлемой цене.
Dmitry Kovtun
Клиентоориентированность — на высшем уровне. И форма связи любая.. мне было удобно общаться через почту — не проблема: в будни и даже в выходные, и днем и ночью — постоянно на связи) В какой-то момент даже подумала, что личный помощник никогда не отдыхает))
Teresa Olehnovich
Услуга «Личный помощник» — это не только дешевле, чем платить деньги каким-то непонятным посредникам или риэлторам, но и гарантированная ежедневная консультация от грамотного специалиста. Одним словом, всё очень понравилось.
Алина Василевская
Моя оценка 5! Нашли с личным помощником то, что нужно!! Удобно и безопасно. Отличный, проверенный сайт! Спасибо, Локалс!
Еленка Потапова
Искал с помощью услуги «Личный помощник». Сервис справился с поставленной перед ним задачей — найти мне жильё в короткие сроки (дедлайн 1,5 недели). Спасибо!
Dimas
У меня только положительные впечатления остались. Мне присылал варианты каждый день, иногда даже дважды. Всегда оперативно реагировал на мои пожелания. В итоге, так и сняли одну из предложенных квартир и очень довольны.
Любовь












