2-комнатная квартира: Санкт-Петербург, Киевская улица, 3 (64.17 м²)

ID: 388910
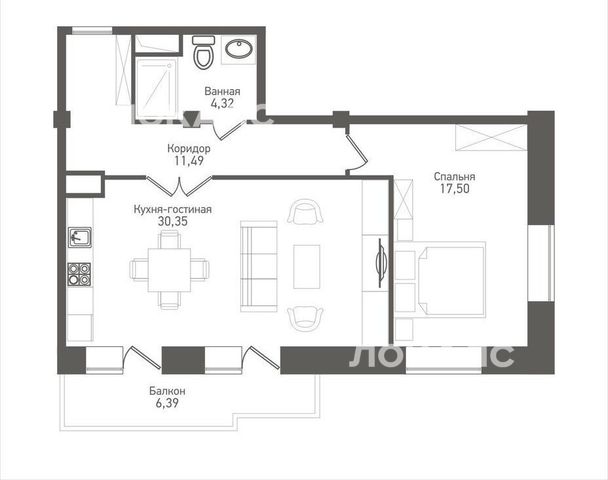
с 20 октября сдается на долгий срок видовая двухкомнатная квартира со свежим дорогим дизайнерским ремонтом. Квартира хороша для проживания одного человека или пары без детей и животных. Общая площадь квартиры 64,17 кв. м (+ лоджия 6,39 кв. м). Планировкой предусмотрены кухня-гостиная (30,35 кв. м), спальня (17,5 кв. м), ванная комната с просторной встроенной душевой кабиной, туалетом и раковиной, с электрическим подогревом полов (4,83 кв. м). Кухня-гостиная визуально разделена на 2 зоны - гостиную и кухню-столовую. Гостиная оборудована раскладным диваном. Кухня оснащена варочной поверхностью, вытяжкой, большим двухкамерным холодильником Samsung, встроенной стиральной машиной, микроволновой печью. Есть электрический чайник, кастрюли, сковородки и столовая посуда, столовые приборы. Установлен кондиционер. На полу паркетная доска. Из гостиной есть выход на просторную остекленную лоджию с панорамными видами на панораму города и златокупольный собор, в лоджии установлены блокирующие свет роллы и москитная сетка, окна в лоджии открываются. В комфортной спальне есть кондиционер, двуспальная кровать, шкафы для хранения вещей и два больших окна, из которых открываются прекрасные виды на златокупольный собор и панораму города, а также во двор. В прихожей оборудован большой вместительный шкаф. ЖК «Империал» имеет большую закрытую охраняемую территорию с бесплатной парковкой во дворе без выделенного места. На первых этажах располагаются магазины, аптеки, банкоматы, кафе, пекарни, парикмахерские, напротив дома находится большой фитнес-центр.
Удобства
Балкон
Посудомоечная машина
Холодильник
Стиральная машина
Телевизор
Нагреватель воды
Кондиционер
Особенности
Можно курить
Подходит для мероприятий
Можно с животными
Подходит для семьи с детьми
Другие 2-х комнатные квартиры
2-комнатная квартира: Санкт-Петербург, Киевская улица, 3к2Ж (72.3 м²)
Последние добавленные апартаменты
2-комнатная квартира: Санкт-Петербург, набережная реки Мойки, 91 (68 м²)
О нас говорят
Хорошая услуга «Личный помощник». За вами закрепляют менеджера, который подбирает для вас варианты, помогает с подписанием договора и проверкой квартиры. Константин оперативно отвечал на наши вопросы и подстраивался под возникающие в ходе поиска требования.
Ins Fairy
Нашел себе отличную квартиру в Мск на Локалс. В этот раз пользовался услугой Личный помощник; Каждый день мне присылали варианты и по моим ответам уточняли мои критерии. В итоге выбрали прямо то, что мне было надо!
Ilya Malov
Отличный сервис! Нужный вариант подобрали уже на следующий день после обращения. Документы с арендодателем я подписала в конце той же недели и сразу переехала. Квартира после ремонта, все новое, я — первый арендатор, до метро 15 минут пешком. Это потрясающе!
Maria Levkina
Поиски квартиры заняли ровно неделю, Андрей проверял все варианты и составлял подробное описание. Так же оказал помощь при подписании договора. И вот теперь, я снимаю квартиру без комиссии, от собственника, с хорошим ремонтом, в новом доме по приемлемой цене.
Dmitry Kovtun
Клиентоориентированность — на высшем уровне. И форма связи любая.. мне было удобно общаться через почту — не проблема: в будни и даже в выходные, и днем и ночью — постоянно на связи) В какой-то момент даже подумала, что личный помощник никогда не отдыхает))
Teresa Olehnovich
Услуга «Личный помощник» — это не только дешевле, чем платить деньги каким-то непонятным посредникам или риэлторам, но и гарантированная ежедневная консультация от грамотного специалиста. Одним словом, всё очень понравилось.
Алина Василевская
Моя оценка 5! Нашли с личным помощником то, что нужно!! Удобно и безопасно. Отличный, проверенный сайт! Спасибо, Локалс!
Еленка Потапова
Искал с помощью услуги «Личный помощник». Сервис справился с поставленной перед ним задачей — найти мне жильё в короткие сроки (дедлайн 1,5 недели). Спасибо!
Dimas
У меня только положительные впечатления остались. Мне присылал варианты каждый день, иногда даже дважды. Всегда оперативно реагировал на мои пожелания. В итоге, так и сняли одну из предложенных квартир и очень довольны.
Любовь