
































2-к кв. Санкт-Петербург ул. Седова, 17К1 (54.2 м²)
Я собственник, агентам просьба обращаться только с покупателями, спасибо!
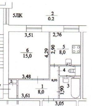
Продается двухкомнатная квартира в сталинском доме, потолки 3м, ЖБ перекрытия. Пять лет назад выполнен полный капитальный ремонт, возведены ГКЛ перегородки, новый пирог стяжки с единым уровнем, электрика, инженерные системы. Кирпичные стены под покраску выровнены по маякам, потолок штукатурка, без навесного. Уложен клеевой кварцвинил единым контуром. Удобное хранение: два встроенных шкафа 150x60, 150x40, и кладовая комната с полками 2м². Санузел объединен, при этом лёгкий доступ к стоякам. Все стояки (ХВС, водоотведение, отопление) заменены. Счётчики на всё.
Остаётся встроенная кухня ИКЕА, встроенный холодильник, посудомоечная машина, духовка. На южной стороне новый кондиционер. Спальня, граничащая с кухней, имеет распашные двери, пространство может быть объеденено в общую гостевую зону при необходимости.
О парадной. Широкая лестница, нет проблем подняться с коляской или велосипедом. Недавно выполнен косметической ремонт, заменены стеклопакеты, чисто. Соседей не слышно.
Самый комфортный этаж, не под крышей, но достаточно высоко, открывается отличный вид на закат летом!
Метро в пешей доступности 800м, остановки транспорта у дома, в радиусе 400м: школа, поликлиника взрослая и детская, два детских сада, почта. Палевский сад для прогулок и пробежек.
Владение 6,5 лет. Обременении нет, два взрослых собственника, сейчас прописаны трое, но под сделку будет один взрослый.
Особенности
Другие 2-х комнатные квартиры
2-комнатная квартира: Санкт-Петербург, Дальневосточный проспект, 12к2 (44.6 м²)
Последние добавленные апартаменты
2-комнатная квартира: Санкт-Петербург, проспект Луначарского, 80к2 (47 м²)
О нас говорят
Хорошая услуга «Личный помощник». За вами закрепляют менеджера, который подбирает для вас варианты, помогает с подписанием договора и проверкой квартиры. Константин оперативно отвечал на наши вопросы и подстраивался под возникающие в ходе поиска требования.
Ins Fairy
Нашел себе отличную квартиру в Мск на Локалс. В этот раз пользовался услугой Личный помощник; Каждый день мне присылали варианты и по моим ответам уточняли мои критерии. В итоге выбрали прямо то, что мне было надо!
Ilya Malov
Отличный сервис! Нужный вариант подобрали уже на следующий день после обращения. Документы с арендодателем я подписала в конце той же недели и сразу переехала. Квартира после ремонта, все новое, я — первый арендатор, до метро 15 минут пешком. Это потрясающе!
Maria Levkina
Поиски квартиры заняли ровно неделю, Андрей проверял все варианты и составлял подробное описание. Так же оказал помощь при подписании договора. И вот теперь, я снимаю квартиру без комиссии, от собственника, с хорошим ремонтом, в новом доме по приемлемой цене.
Dmitry Kovtun
Клиентоориентированность — на высшем уровне. И форма связи любая.. мне было удобно общаться через почту — не проблема: в будни и даже в выходные, и днем и ночью — постоянно на связи) В какой-то момент даже подумала, что личный помощник никогда не отдыхает))
Teresa Olehnovich
Услуга «Личный помощник» — это не только дешевле, чем платить деньги каким-то непонятным посредникам или риэлторам, но и гарантированная ежедневная консультация от грамотного специалиста. Одним словом, всё очень понравилось.
Алина Василевская
Моя оценка 5! Нашли с личным помощником то, что нужно!! Удобно и безопасно. Отличный, проверенный сайт! Спасибо, Локалс!
Еленка Потапова
Искал с помощью услуги «Личный помощник». Сервис справился с поставленной перед ним задачей — найти мне жильё в короткие сроки (дедлайн 1,5 недели). Спасибо!
Dimas
У меня только положительные впечатления остались. Мне присылал варианты каждый день, иногда даже дважды. Всегда оперативно реагировал на мои пожелания. В итоге, так и сняли одну из предложенных квартир и очень довольны.
Любовь












