
























2-к кв. Санкт-Петербург ул. Кораблестроителей, 40К1 (61.6 м²)
Продам светлую, просторную, ухоженную квартиру в престижном и хорошо развитом Василеостровском районе. На данный момент одно из лучших предложений по цене и идеальной планировке.
Квартира юридически наичистейшая, свободна от каких-либо обременений и долгов, два взрослых собственника, в собственности более 15 лет, мат. капитал никогда не использовался, полная стоимость в договоре, все документы готовы для выхода на сделку.
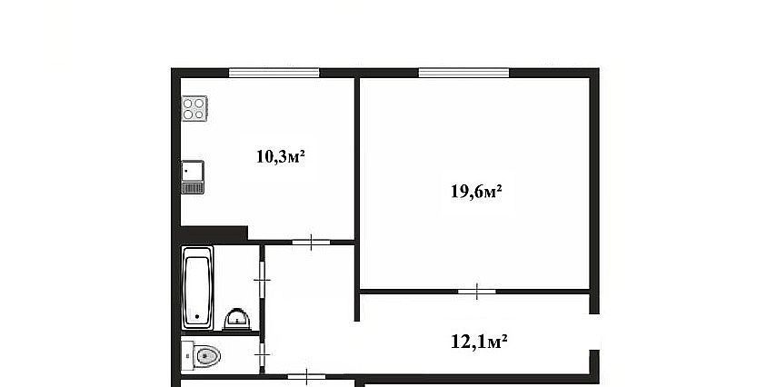
По планировке: квартира двусторонняя и очень просторная, все окна выходят в солнечные тихие зелёные дворы, две большие раздельные комнаты 20м² и 16м² правильной квадратной формы, кухня большая 10,3м² - также квадратная, благодаря большому коридору можно легко организовать много мест для хранения, санузел раздельный. Электроплита. Потолки высокие 2,7м. Первый высокий этаж.
По инфраструктуре: дом удачно расположен, рядом есть все необходимые соц. учреждения (детские сады, школы, поликлиника, образовательные кружки, секции и др.), много продуктовых гипермаркетов, рядом с домом ЗСД, автобусные остановки в 3 мин. ходьбы, метро - 15 мин. пешком. Вы легко сможете добраться до любого района города. Есть очень много парковочных бесплатных мест во дворе и рядом с домом.
Находится в районе, утопающем в зелёных садах, парках, рядом пляж, залив, очень много прогулочных мест и мест для отдыха. Район очень комфортный для жизни, тихий и спокойный.
Идеальна для семей с детьми, а также для ценителей простора и комфорта.
Особенности
Другие 2-х комнатные квартиры
2-комнатная квартира: Санкт-Петербург, Комендантский проспект, 66к5 (55 м²)
2-комнатная квартира: Санкт-Петербург, Кушелевская дорога, 7к3 (49.7 м²)
Последние добавленные апартаменты
1-комнатная квартира: Санкт-Петербург, Новоколомяжский проспект, 12к3 (40 м²)
О нас говорят
Хорошая услуга «Личный помощник». За вами закрепляют менеджера, который подбирает для вас варианты, помогает с подписанием договора и проверкой квартиры. Константин оперативно отвечал на наши вопросы и подстраивался под возникающие в ходе поиска требования.
Ins Fairy
Нашел себе отличную квартиру в Мск на Локалс. В этот раз пользовался услугой Личный помощник; Каждый день мне присылали варианты и по моим ответам уточняли мои критерии. В итоге выбрали прямо то, что мне было надо!
Ilya Malov
Отличный сервис! Нужный вариант подобрали уже на следующий день после обращения. Документы с арендодателем я подписала в конце той же недели и сразу переехала. Квартира после ремонта, все новое, я — первый арендатор, до метро 15 минут пешком. Это потрясающе!
Maria Levkina
Поиски квартиры заняли ровно неделю, Андрей проверял все варианты и составлял подробное описание. Так же оказал помощь при подписании договора. И вот теперь, я снимаю квартиру без комиссии, от собственника, с хорошим ремонтом, в новом доме по приемлемой цене.
Dmitry Kovtun
Клиентоориентированность — на высшем уровне. И форма связи любая.. мне было удобно общаться через почту — не проблема: в будни и даже в выходные, и днем и ночью — постоянно на связи) В какой-то момент даже подумала, что личный помощник никогда не отдыхает))
Teresa Olehnovich
Услуга «Личный помощник» — это не только дешевле, чем платить деньги каким-то непонятным посредникам или риэлторам, но и гарантированная ежедневная консультация от грамотного специалиста. Одним словом, всё очень понравилось.
Алина Василевская
Моя оценка 5! Нашли с личным помощником то, что нужно!! Удобно и безопасно. Отличный, проверенный сайт! Спасибо, Локалс!
Еленка Потапова
Искал с помощью услуги «Личный помощник». Сервис справился с поставленной перед ним задачей — найти мне жильё в короткие сроки (дедлайн 1,5 недели). Спасибо!
Dimas
У меня только положительные впечатления остались. Мне присылал варианты каждый день, иногда даже дважды. Всегда оперативно реагировал на мои пожелания. В итоге, так и сняли одну из предложенных квартир и очень довольны.
Любовь












