





















2-к кв. Санкт-Петербург ул. Декабристов, 11 (57.3 м²)
СРОЧНАЯ продажа — переезжаю, поэтому цена ниже рынка! От собственника напрямую, без посредников!
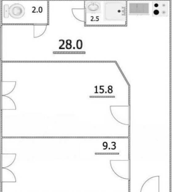
По документам — 2-комнатная, по факту — полноценные 3 изолированные комнаты (перепланировок нет, всё законно и чисто).
Общая площадь 57,3 м² + огромная кухня 15,8 м² + жилая 25 м². Места хватит семье, гостям и даже под бизнес!
Почему это золотая жила именно сейчас?
1 этаж тёплого кирпичного дома 1840 г. (5 этажей) — тихо, уютно, окна во двор (никакого шума с улицы!) Глубокий, сухой, тёплый подвал, капремонт год назад.
Закрытый двор + место для парковки — в центре СПб это почти невозможно найти!
1115 мин пешком до 4 станций метро: Садовая, Спасская, Сенная, Театральная
Напротив — Мариинский театр, консерватория — туристы, студенты, творческая публика круглый год!
Всё рядом: кафе, магазины, школы, вузы — жить или зарабатывать одно удовольствие
Как вы можете заработать на этой квартире сразу после покупки:
Семейная жизнь — комфорт и тишина в историческом центре
Посуточно — реально 200+ тыс. руб./мес. (туристы у Мариинки не кончаются!)
Репетиторская / студия йоги / небольшой офис — спрос бешеный рядом с театрами
Флиппинг: делаете евро-трёшку — +3050% к цене за год легко
Продаю чисто и быстро:
Собственник один, взрослый. В собственности >5 лет.
Без маткапитала, полная сумма в ДКП. Подходит под любую ипотеку.
Сделка за 12 недели! Торг адекватным покупателям с живыми деньгами — обсуждаем на просмотре!)Важно для риелторов и покупателей: Риелторам без реального покупателя — не беспокоить!
Просмотр только с покупателем (живым, готовым к сделке).
Время показов: будни с 20:00 до 23:00 (или по договорённости), выходные с 11:00 до полуночи.
Бонус риелторам с живым покупателем — щедрый, обсуждается лично и приятно (:
Пишите только в чат Авито, на звонок могу не ответить — оперативно перезвоню, отвечу на все вопросы и назначу просмотр в удобное время.
Не упустите — такие варианты в центре улетают за дни!
Это ваш шанс купить выгодно в самом сердце Питера!
Жду сообщения!
Особенности
Другие 2-х комнатные квартиры
2-комнатная квартира: Санкт-Петербург, Саблинская улица, 5/21 (43.9 м²)
2-комнатная квартира: Санкт-Петербург, улица Демьяна Бедного, 26к3 (48.1 м²)
Последние добавленные апартаменты
1-комнатная квартира: Санкт-Петербург, проспект Луначарского, 11к1 (46.5 м²)
2-комнатная квартира: Санкт-Петербург, проспект Энергетиков, 9к3 (59 м²)
О нас говорят
Хорошая услуга «Личный помощник». За вами закрепляют менеджера, который подбирает для вас варианты, помогает с подписанием договора и проверкой квартиры. Константин оперативно отвечал на наши вопросы и подстраивался под возникающие в ходе поиска требования.
Ins Fairy
Нашел себе отличную квартиру в Мск на Локалс. В этот раз пользовался услугой Личный помощник; Каждый день мне присылали варианты и по моим ответам уточняли мои критерии. В итоге выбрали прямо то, что мне было надо!
Ilya Malov
Отличный сервис! Нужный вариант подобрали уже на следующий день после обращения. Документы с арендодателем я подписала в конце той же недели и сразу переехала. Квартира после ремонта, все новое, я — первый арендатор, до метро 15 минут пешком. Это потрясающе!
Maria Levkina
Поиски квартиры заняли ровно неделю, Андрей проверял все варианты и составлял подробное описание. Так же оказал помощь при подписании договора. И вот теперь, я снимаю квартиру без комиссии, от собственника, с хорошим ремонтом, в новом доме по приемлемой цене.
Dmitry Kovtun
Клиентоориентированность — на высшем уровне. И форма связи любая.. мне было удобно общаться через почту — не проблема: в будни и даже в выходные, и днем и ночью — постоянно на связи) В какой-то момент даже подумала, что личный помощник никогда не отдыхает))
Teresa Olehnovich
Услуга «Личный помощник» — это не только дешевле, чем платить деньги каким-то непонятным посредникам или риэлторам, но и гарантированная ежедневная консультация от грамотного специалиста. Одним словом, всё очень понравилось.
Алина Василевская
Моя оценка 5! Нашли с личным помощником то, что нужно!! Удобно и безопасно. Отличный, проверенный сайт! Спасибо, Локалс!
Еленка Потапова
Искал с помощью услуги «Личный помощник». Сервис справился с поставленной перед ним задачей — найти мне жильё в короткие сроки (дедлайн 1,5 недели). Спасибо!
Dimas
У меня только положительные впечатления остались. Мне присылал варианты каждый день, иногда даже дважды. Всегда оперативно реагировал на мои пожелания. В итоге, так и сняли одну из предложенных квартир и очень довольны.
Любовь












