2-к кв. Санкт-Петербург просп. Обуховской обороны, 70к4 (72.2 м²)
Продаётся уютная евро-трехкомнатная квартира в ЖК Эталон на Неве!
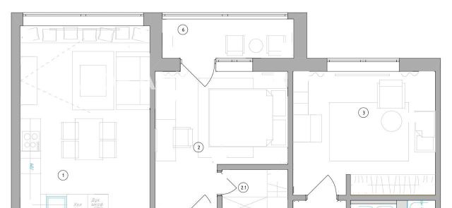
Общая площадь 73 квадратных метра на шестом этаже. Высота потолков 3 метра.
Современная, светлая кухня с удобной планировкой общей площадью 21 кв метра.
Оснащена всей необходимой техникой: встроенная плита, духовой шкаф, холодильник, вытяжка, посудомоечная машина, микроволновая печь, винный шкаф, кондиционер, теплый пол. Просторные шкафы и вместительные ящики позволяют легко разместить посуду и продукты. Столешница из кварцевого агломерата. В кухне есть большое окно, откуда открывается панорамный вид на Неву.
В квартире два раздельных санузла. Один из них оснащен ванной, другой — душевой кабиной. В каждом из них предусмотрен теплый пол.
Уютная спальня 16 кв метров с хорошим естественным освещением благодаря большому окну. В комнате достаточно места для двуспальной кровати, двух рабочих зон и гардеробной. Зеркала, разнообразные дизайны освещения и настенный радиатор. Удобный выход на лоджию.
Детская комната выполнена в нейтральных тонах, подойдет как для девочек так и для мальчиков. Установлен вместительный шкаф для вещей.
В коридоре запроектирована большая система хранения с выводами для стиральной и сушильной машины.
Для жителей дома предусмотрена удобная подземная парковка и закрытая территория, обеспечивающая дополнительный комфорт и безопасность. Покупателю можем передать договор аренды парковочного места до июля 2026 года.
Расположение дома позволяет быстро добраться до станций метро Елизаровская всего за 7 минут пешком. До Невского проспекта 15 минут на автомобиле.
Про документы: два взрослых собственника, материнский капитал не использовался. Причина продажи-переезд в другой город.
Записывайтесь на просмотр!
Особенности
Другие 2-х комнатные квартиры
2-комнатная квартира: Санкт-Петербург, Лиговский проспект, 232 (62 м²)
2-комнатная квартира: Санкт-Петербург, Малая Морская улица, 6 (83.1 м²)
Последние добавленные апартаменты
1-комнатная квартира: Санкт-Петербург, проспект Луначарского, 11к1 (46.5 м²)
2-комнатная квартира: Санкт-Петербург, проспект Энергетиков, 9к3 (59 м²)
О нас говорят
Хорошая услуга «Личный помощник». За вами закрепляют менеджера, который подбирает для вас варианты, помогает с подписанием договора и проверкой квартиры. Константин оперативно отвечал на наши вопросы и подстраивался под возникающие в ходе поиска требования.
Ins Fairy
Нашел себе отличную квартиру в Мск на Локалс. В этот раз пользовался услугой Личный помощник; Каждый день мне присылали варианты и по моим ответам уточняли мои критерии. В итоге выбрали прямо то, что мне было надо!
Ilya Malov
Отличный сервис! Нужный вариант подобрали уже на следующий день после обращения. Документы с арендодателем я подписала в конце той же недели и сразу переехала. Квартира после ремонта, все новое, я — первый арендатор, до метро 15 минут пешком. Это потрясающе!
Maria Levkina
Поиски квартиры заняли ровно неделю, Андрей проверял все варианты и составлял подробное описание. Так же оказал помощь при подписании договора. И вот теперь, я снимаю квартиру без комиссии, от собственника, с хорошим ремонтом, в новом доме по приемлемой цене.
Dmitry Kovtun
Клиентоориентированность — на высшем уровне. И форма связи любая.. мне было удобно общаться через почту — не проблема: в будни и даже в выходные, и днем и ночью — постоянно на связи) В какой-то момент даже подумала, что личный помощник никогда не отдыхает))
Teresa Olehnovich
Услуга «Личный помощник» — это не только дешевле, чем платить деньги каким-то непонятным посредникам или риэлторам, но и гарантированная ежедневная консультация от грамотного специалиста. Одним словом, всё очень понравилось.
Алина Василевская
Моя оценка 5! Нашли с личным помощником то, что нужно!! Удобно и безопасно. Отличный, проверенный сайт! Спасибо, Локалс!
Еленка Потапова
Искал с помощью услуги «Личный помощник». Сервис справился с поставленной перед ним задачей — найти мне жильё в короткие сроки (дедлайн 1,5 недели). Спасибо!
Dimas
У меня только положительные впечатления остались. Мне присылал варианты каждый день, иногда даже дважды. Всегда оперативно реагировал на мои пожелания. В итоге, так и сняли одну из предложенных квартир и очень довольны.
Любовь












