





































2-к кв. Санкт-Петербург просп. Большевиков, 7к3 (71.8 м²)
В квартире в 2018 году закончен капитальный ремонт. Полностью заменены трубы, проводка, сантехника, полы, все двери и оборудование, люстры. Установлены 2 шкафа встроенных - в комнатах (один, малый шкаф, требует дверей). Остальные шкафы - в максимально удобных местах.
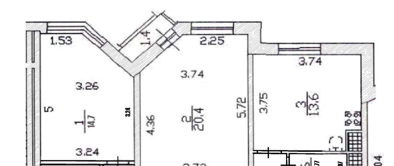
Дизайн продуман под максимальный функционал и минимум усилий по уборке. Полы - на одном уровне. Трубы отопления врезаны в стену, не в пол (под радиаторами пусто). Отопление центральное.
Вентиляция в квартире великолепная.
Все помещения раздельные.
Во встроенном большом шкафу организовано место под хранение по типу кладовой.
Два унитаза и два умывальника в обоих санузлах.
Никаких проблем с отоплением, окнами.
Гардеробная свободная, на фото - как мини помещение с диваном.
Балкон - максимально расширен, защищен металлическими штангами.
Подземный паркинг.
НЕТ СОСЕДЕЙ по обоим бокам. Сверху и снизу - идеально тихие люди - такая культура дома.
Есть домовые чаты. Управление: Управляющая компания ООО "ВНЕШСТРОЙ"
С директором управляющей компании - в непосредственном контакте.
Главное преимущество дома - расположение.
Это дом - один из самых лучших вариантов в городе для практичной жизни и точно самый лучший вариант в районе.
Дом стал центром притяжения всех возможных объектов - супермаркеты, средняя школа, несколько детских садов (есть и частные), детская клиника и детские лечебные кабинеты. Поликлиника Андромед - во дворе дома. Тут же огромный "Fitness house" с бассейном (являюсь абонентом, также в 1.3 км от дома есть еще один - "Молот", Невский ТЦК), сети ресторанов, огромное количество магазинов от "О'кей" до десятков мелких торговых точек в соседних домах.
В этом же квартальном блоке - горполиклиника N100, Почта России, стоматологи и лаборатории анализов.
В вашем дворе также - "Лента", "Верный", студии всевозможных услуг. Парковки - везде. Помимо вашего двора - много смежных дворов и проездов в одном квартальном блоке - всегда есть сотни мест, кроме подземного паркинга. Каршеринг - всегда есть машины внутри блока, проверьте.
МФЦ - через дорогу (пр. Большевиков), один светофорный переход.
Все пункты приема маркетплейсов - в вашем дворе.
В 1.5 км от дома - Лондом Молл и Lemаna PRO / Леруа Мерлен.
Детская площадка - под вашим личным визуальным контролем, кроме того везде камеры, включая лифты.
Есть также еще одна общественная площадка снаружи домовой территории (первое фото).
Транспортная развязка - великолепная. 820 честных метров до метро - см. фото. Троллейбусы, автобусы, трамваи. Удобно личным авто выезжать - со всех сторон квартала широкие проезжие части, быстро добираетесь до КАДа.
Парки - ближайший - парк Строителей, великолепное место для семейной физкультуры, бега, велосипеда.
Также рядом - парк Есенина.
Мусорница у дома - под замком, только для жильцов.
Воздух в районе всегда свежий - хорошая продуваемость.
Квартира не под обременением, один собственник. Никаких долгов по платежам. Без посредников.
Всех выписываем сразу же, как только будет конструктивный диалог.
Особенности
Другие 2-х комнатные квартиры
2-комнатная квартира: Санкт-Петербург, проспект Большевиков, 7к3 (71.8 м²)
Последние добавленные апартаменты
Квартира-студия: Санкт-Петербург, проспект Обуховской Обороны, 36 (26 м²)
1-комнатная квартира: Санкт-Петербург, Пахомовская улица, 12к1 (34 м²)
О нас говорят
Хорошая услуга «Личный помощник». За вами закрепляют менеджера, который подбирает для вас варианты, помогает с подписанием договора и проверкой квартиры. Константин оперативно отвечал на наши вопросы и подстраивался под возникающие в ходе поиска требования.
Ins Fairy
Нашел себе отличную квартиру в Мск на Локалс. В этот раз пользовался услугой Личный помощник; Каждый день мне присылали варианты и по моим ответам уточняли мои критерии. В итоге выбрали прямо то, что мне было надо!
Ilya Malov
Отличный сервис! Нужный вариант подобрали уже на следующий день после обращения. Документы с арендодателем я подписала в конце той же недели и сразу переехала. Квартира после ремонта, все новое, я — первый арендатор, до метро 15 минут пешком. Это потрясающе!
Maria Levkina
Поиски квартиры заняли ровно неделю, Андрей проверял все варианты и составлял подробное описание. Так же оказал помощь при подписании договора. И вот теперь, я снимаю квартиру без комиссии, от собственника, с хорошим ремонтом, в новом доме по приемлемой цене.
Dmitry Kovtun
Клиентоориентированность — на высшем уровне. И форма связи любая.. мне было удобно общаться через почту — не проблема: в будни и даже в выходные, и днем и ночью — постоянно на связи) В какой-то момент даже подумала, что личный помощник никогда не отдыхает))
Teresa Olehnovich
Услуга «Личный помощник» — это не только дешевле, чем платить деньги каким-то непонятным посредникам или риэлторам, но и гарантированная ежедневная консультация от грамотного специалиста. Одним словом, всё очень понравилось.
Алина Василевская
Моя оценка 5! Нашли с личным помощником то, что нужно!! Удобно и безопасно. Отличный, проверенный сайт! Спасибо, Локалс!
Еленка Потапова
Искал с помощью услуги «Личный помощник». Сервис справился с поставленной перед ним задачей — найти мне жильё в короткие сроки (дедлайн 1,5 недели). Спасибо!
Dimas
У меня только положительные впечатления остались. Мне присылал варианты каждый день, иногда даже дважды. Всегда оперативно реагировал на мои пожелания. В итоге, так и сняли одну из предложенных квартир и очень довольны.
Любовь












