












2-к кв. Санкт-Петербург Малая Охта тер., ул. Казанская, 4 (41.4 м²)
Продаётся светлая 2-комнатная квартира в обжитом районе Малая Охта, в пешей доступности от метро Новочеркасская.
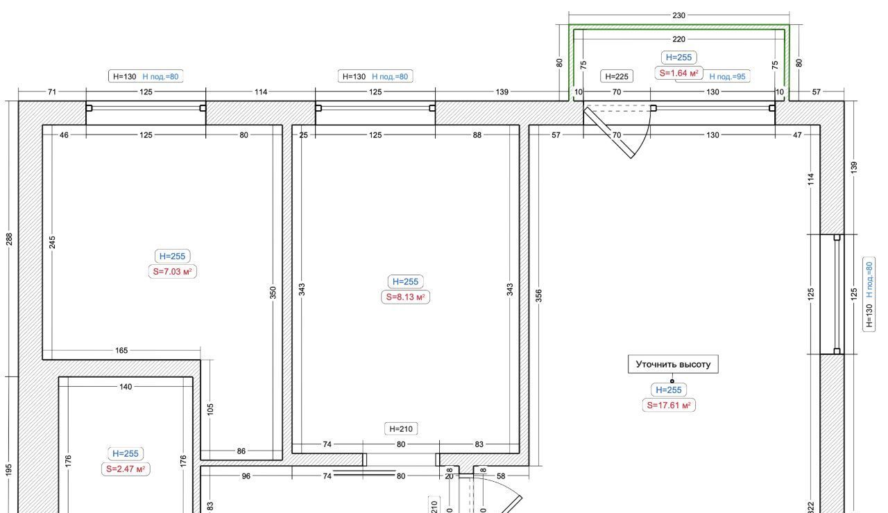
Общая площадь — 41,4 м², удобная планировка:
- две изолированные комнаты (редкое предложение в данном районе)
- кухня 7 м²
- совмещённый санузел
- балкон
- окна выходят во двор, без шума с современной детской площадкой
- удачное расположение квартиры с угла дома, что делает гостиную очень светлой за счет двух окон
Квартира с мебелью и техникой — всё остаётся, можно заехать и жить сразу.
В одной комнате начат обновлённый ремонт
В остальных помещениях — аккуратное, жилое состояние
Квартира ухоженная, жили сами, не сдавалась
Большой плюс:
У квартиры есть готовый дизайн-проект с 3D-визуализацией, рабочими чертежами, расчетами и даже подборкой компаний по меблировке. Все передаётся заинтересованному покупателю при покупке. Также возможно продолжение ремонта с проверенной бригадой, уже знакомой с проектом — без потери времени на поиски и рисков.
Отличный вариант для тех, кто хочет:
- заехать сразу
- довести квартиру до современного уровня под себя, без ошибок и переделок
Юридическая информация:
1 собственник
Свободная продажа
Без обременений
Быстрый выход на сделку
Зарегистрированных, перепланировок и обременений нет
Информация для риелторов: звоните только если есть реально заинтересованный покупатель, который хочет посмотреть квартиру. Не тратье ваше и мое время.
Особенности
Другие 2-х комнатные квартиры
Последние добавленные апартаменты
1-комнатная квартира: Санкт-Петербург, проспект Художников, 13к3 (39 м²)
Квартира-студия: Санкт-Петербург, проспект Обуховской Обороны, 36 (25 м²)
1-комнатная квартира: Санкт-Петербург, проспект Крузенштерна, 2 (34 м²)
О нас говорят
Хорошая услуга «Личный помощник». За вами закрепляют менеджера, который подбирает для вас варианты, помогает с подписанием договора и проверкой квартиры. Константин оперативно отвечал на наши вопросы и подстраивался под возникающие в ходе поиска требования.
Ins Fairy
Нашел себе отличную квартиру в Мск на Локалс. В этот раз пользовался услугой Личный помощник; Каждый день мне присылали варианты и по моим ответам уточняли мои критерии. В итоге выбрали прямо то, что мне было надо!
Ilya Malov
Отличный сервис! Нужный вариант подобрали уже на следующий день после обращения. Документы с арендодателем я подписала в конце той же недели и сразу переехала. Квартира после ремонта, все новое, я — первый арендатор, до метро 15 минут пешком. Это потрясающе!
Maria Levkina
Поиски квартиры заняли ровно неделю, Андрей проверял все варианты и составлял подробное описание. Так же оказал помощь при подписании договора. И вот теперь, я снимаю квартиру без комиссии, от собственника, с хорошим ремонтом, в новом доме по приемлемой цене.
Dmitry Kovtun
Клиентоориентированность — на высшем уровне. И форма связи любая.. мне было удобно общаться через почту — не проблема: в будни и даже в выходные, и днем и ночью — постоянно на связи) В какой-то момент даже подумала, что личный помощник никогда не отдыхает))
Teresa Olehnovich
Услуга «Личный помощник» — это не только дешевле, чем платить деньги каким-то непонятным посредникам или риэлторам, но и гарантированная ежедневная консультация от грамотного специалиста. Одним словом, всё очень понравилось.
Алина Василевская
Моя оценка 5! Нашли с личным помощником то, что нужно!! Удобно и безопасно. Отличный, проверенный сайт! Спасибо, Локалс!
Еленка Потапова
Искал с помощью услуги «Личный помощник». Сервис справился с поставленной перед ним задачей — найти мне жильё в короткие сроки (дедлайн 1,5 недели). Спасибо!
Dimas
У меня только положительные впечатления остались. Мне присылал варианты каждый день, иногда даже дважды. Всегда оперативно реагировал на мои пожелания. В итоге, так и сняли одну из предложенных квартир и очень довольны.
Любовь












