
















































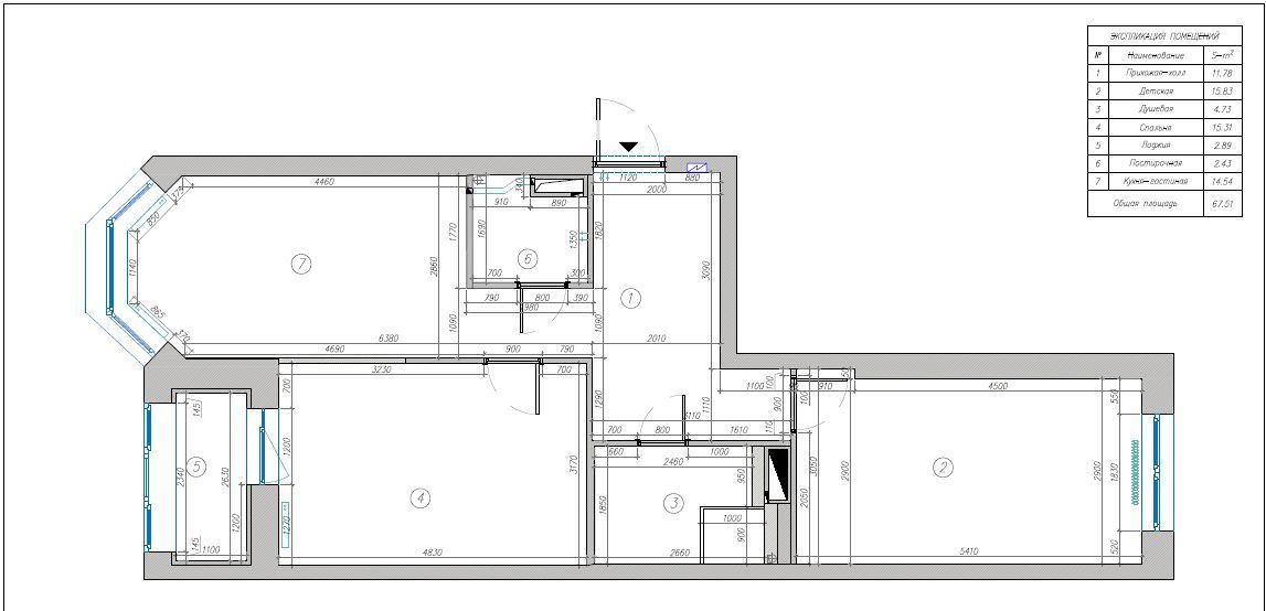
2-к кв. Санкт-Петербург Малая Бухарестская ул., 12 (67.5 м²)
ЖК "Новое Купчино", застройщик "Строительный трест". Территория ЖК закрытая, двор бе машин. Рядом с ЖК парки, метро, детские сад, школа.
В квартире выполнен ремонт по дизайн проекту с соблюдением всех технологий под строгим личным контролем с использованием качественных материалов (делали для себя). Не сделали только двери и плинтуса.
Пол: керамогранит ITALON, ламинат Quick-Step, в прихожей, в санузлах, на лоджии сделан тёплый электрический пол Thermo (Швеция).
Стены: на стенах гипсовые панели, дизайнерская премиум краска Lanors Mons. В детской дизайнерские обои.
Потолок: тканевые натяжные потолки.
Сантехника: Roca, AM-PM, система защиты от протечек.
Освещение: в кухне магнитная трековая система, в детскую куплены светильники.
Полностью новая электропроводка. Электроустановочные изделия Schneider Electric.
Система умный дом: освещение, теплые полы, водонагреватель, система защиты от протечек.
Кондиционеры: заложены все коммуникации для установки кондиционеров во все помещения (проект согласован), необходимо только установить внешние и внутренние блоки.
Интернет оптоволокно, Ростелеком.
Мебель: Для производства кухни подготовлена конструкторская документация и закуплено сырье (фасадные полотна пластик Slotex, столешница HPL Compact Slotex, корпус ЛДСП Extravert, необходимо только отправить заказ на распил, кромкование и присадку подрядчику (помогу с этим) и потом собрать.
Стол в кухню из HPL Compact Slotex (столешница готова, необходимо купить опору).
По заказу кухни и другой корпусной мебели передам всю конструкторскую документацию и, если нужно, помогу с закупкой материалов по оптовым ценам и распилом по проекту. Мебель обойдется вам дешевле чем в салонах в 2 раза.
Один собственник. Ипотека. Быстрый выход на сделку.
Продаю сам. Агентам беспокоить только с живым покупателем!
Особенности
Другие 2-х комнатные квартиры
2-комнатная квартира: Санкт-Петербург, Кременчугская улица, 21к3 (77.3 м²)
2-комнатная квартира: Санкт-Петербург, Социалистическая улица, 21 (46.8 м²)
Последние добавленные апартаменты
Квартира-студия: Санкт-Петербург, Большой Сампсониевский проспект, 74к2 (16 м²)
1-комнатная квартира: Санкт-Петербург, Комендантский проспект, 59к2 (38 м²)
О нас говорят
Хорошая услуга «Личный помощник». За вами закрепляют менеджера, который подбирает для вас варианты, помогает с подписанием договора и проверкой квартиры. Константин оперативно отвечал на наши вопросы и подстраивался под возникающие в ходе поиска требования.
Ins Fairy
Нашел себе отличную квартиру в Мск на Локалс. В этот раз пользовался услугой Личный помощник; Каждый день мне присылали варианты и по моим ответам уточняли мои критерии. В итоге выбрали прямо то, что мне было надо!
Ilya Malov
Отличный сервис! Нужный вариант подобрали уже на следующий день после обращения. Документы с арендодателем я подписала в конце той же недели и сразу переехала. Квартира после ремонта, все новое, я — первый арендатор, до метро 15 минут пешком. Это потрясающе!
Maria Levkina
Поиски квартиры заняли ровно неделю, Андрей проверял все варианты и составлял подробное описание. Так же оказал помощь при подписании договора. И вот теперь, я снимаю квартиру без комиссии, от собственника, с хорошим ремонтом, в новом доме по приемлемой цене.
Dmitry Kovtun
Клиентоориентированность — на высшем уровне. И форма связи любая.. мне было удобно общаться через почту — не проблема: в будни и даже в выходные, и днем и ночью — постоянно на связи) В какой-то момент даже подумала, что личный помощник никогда не отдыхает))
Teresa Olehnovich
Услуга «Личный помощник» — это не только дешевле, чем платить деньги каким-то непонятным посредникам или риэлторам, но и гарантированная ежедневная консультация от грамотного специалиста. Одним словом, всё очень понравилось.
Алина Василевская
Моя оценка 5! Нашли с личным помощником то, что нужно!! Удобно и безопасно. Отличный, проверенный сайт! Спасибо, Локалс!
Еленка Потапова
Искал с помощью услуги «Личный помощник». Сервис справился с поставленной перед ним задачей — найти мне жильё в короткие сроки (дедлайн 1,5 недели). Спасибо!
Dimas
У меня только положительные впечатления остались. Мне присылал варианты каждый день, иногда даже дважды. Всегда оперативно реагировал на мои пожелания. В итоге, так и сняли одну из предложенных квартир и очень довольны.
Любовь












