2-к кв. Санкт-Петербург Лиговский просп., 271 (72.76 м²)
Отличная евро-трешка, чтобы приезжать в Питер и отдыхать. Работал над проектом с подрядом Андрей Лебедев. Проект закончили недавно, т.е. будете первые. Дизайн-проект по запросу в личку. Естественно все остается, т.к. это задумка дизайнера.
Дом: Первый проект от Glorax, ЖКХ - 4-5к в месяц со счетчиками.
Инфраструктура:
Парки: Сквер под окнами, ПИК предоставит линейный парк вдоль квартала и естественно Московский парк Победы.
Транспорт: метро Обводный канал и наземный транспорт в 5 минутах ходьбы.
Развлечения: в 15 минутах езды Московский рынок.
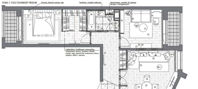
Что получилось
Инженерка: geberit, grohe, Olive'S Balear, фильтры
Техника: посудомойка, стиралка, холодильник, плита
Просторная кухня-гостиная
- распашные двери из шпона дуба и осветленное стекло с фацетом
- диван на заказ
Спальня и гардеробная
- зеркало от пола и до потолка
- ящики, полки и стены ЛДСП (Дуб)
- столики "La Redoute"
- обои "Milassa"
- пуф "Cosmorelax"
- кровать на заказ
Кабинет/детская
- стеллаж для библиотеки книг
- комод
- рабочее место YOUK
- складной диван
Холл
- встроенный шкаф для обуви и одежды
- при входе пару крючков для раздевания
- дизайн зеркал с отверстием
Особенности
Другие 2-х комнатные квартиры
2-комнатная квартира: Санкт-Петербург, Лиговский проспект, 232 (62 м²)
Последние добавленные апартаменты
Квартира-студия: Санкт-Петербург, набережная реки Каменки, 21к1 (21 м²)
2-комнатная квартира: Санкт-Петербург, Дунайский проспект, 7к7 (69.8 м²)
1-комнатная квартира: Санкт-Петербург, Московский проспект, 73к5 (40 м²)
О нас говорят
Хорошая услуга «Личный помощник». За вами закрепляют менеджера, который подбирает для вас варианты, помогает с подписанием договора и проверкой квартиры. Константин оперативно отвечал на наши вопросы и подстраивался под возникающие в ходе поиска требования.
Ins Fairy
Нашел себе отличную квартиру в Мск на Локалс. В этот раз пользовался услугой Личный помощник; Каждый день мне присылали варианты и по моим ответам уточняли мои критерии. В итоге выбрали прямо то, что мне было надо!
Ilya Malov
Отличный сервис! Нужный вариант подобрали уже на следующий день после обращения. Документы с арендодателем я подписала в конце той же недели и сразу переехала. Квартира после ремонта, все новое, я — первый арендатор, до метро 15 минут пешком. Это потрясающе!
Maria Levkina
Поиски квартиры заняли ровно неделю, Андрей проверял все варианты и составлял подробное описание. Так же оказал помощь при подписании договора. И вот теперь, я снимаю квартиру без комиссии, от собственника, с хорошим ремонтом, в новом доме по приемлемой цене.
Dmitry Kovtun
Клиентоориентированность — на высшем уровне. И форма связи любая.. мне было удобно общаться через почту — не проблема: в будни и даже в выходные, и днем и ночью — постоянно на связи) В какой-то момент даже подумала, что личный помощник никогда не отдыхает))
Teresa Olehnovich
Услуга «Личный помощник» — это не только дешевле, чем платить деньги каким-то непонятным посредникам или риэлторам, но и гарантированная ежедневная консультация от грамотного специалиста. Одним словом, всё очень понравилось.
Алина Василевская
Моя оценка 5! Нашли с личным помощником то, что нужно!! Удобно и безопасно. Отличный, проверенный сайт! Спасибо, Локалс!
Еленка Потапова
Искал с помощью услуги «Личный помощник». Сервис справился с поставленной перед ним задачей — найти мне жильё в короткие сроки (дедлайн 1,5 недели). Спасибо!
Dimas
У меня только положительные впечатления остались. Мне присылал варианты каждый день, иногда даже дважды. Всегда оперативно реагировал на мои пожелания. В итоге, так и сняли одну из предложенных квартир и очень довольны.
Любовь












