2-к кв. Санкт-Петербург Греческий просп., 25 (59.7 м²)
Продаётся двухкомнатная уютная квартира в центре города, доходный дом Сретенский, построен в 1879г. Реконструкция с заменой перекрытия на ж/б в 1989г. капремонт дома 2010г.
Парадный вход с улицы. Нет коммунальных квартир, хорошие соседи.
В доме центральное горячее водоснабжение, без газовой колонки.
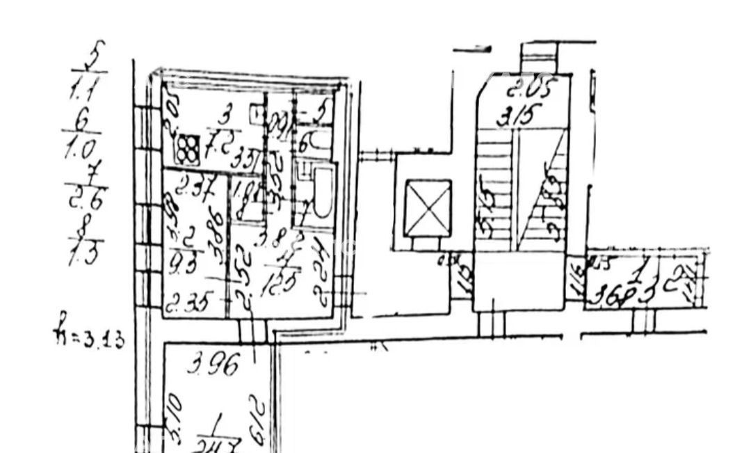
Общая площадь 59.7 квм, 2 изолированные комнаты, высокие потолки 3.13м. В квартире 6 окон, все выходят на улицу. Необычный срезанный угол с окном интересная архитектура деталь.
Под квартирой располагается Британская пекарь, никаких шумов и запахов.
Квартира требует капитального ремонта.
о локации:
Дом через дорогу от парка Некрасивая. В 10 мин пешком Таврический сад. 13 мин пешком Метро Площадь Восстания.
Один из лучших районов города, безопасный, престижный, с уютной исторической атмосферой. Рестораны, винные бары, пекарь все рядом.
Престижная гимназия 166 и детский сад удобно для семей с детьми. Закрытый двор с парковкой, ворота на пульте.
Стоимость 16 300 000р.
Показ с удобное время по договорённости.
Один собственник, в собственности более 5 лет по договору купли продажи. Без маткапитала и обременений. Подходит под ипотеку
Особенности
Другие 2-х комнатные квартиры
2-комнатная квартира: Санкт-Петербург, Греческий проспект, 25 (59.7 м²)
Последние добавленные апартаменты
1-комнатная квартира: Санкт-Петербург, проспект Луначарского, 11к1 (46.5 м²)
2-комнатная квартира: Санкт-Петербург, проспект Энергетиков, 9к3 (59 м²)
О нас говорят
Хорошая услуга «Личный помощник». За вами закрепляют менеджера, который подбирает для вас варианты, помогает с подписанием договора и проверкой квартиры. Константин оперативно отвечал на наши вопросы и подстраивался под возникающие в ходе поиска требования.
Ins Fairy
Нашел себе отличную квартиру в Мск на Локалс. В этот раз пользовался услугой Личный помощник; Каждый день мне присылали варианты и по моим ответам уточняли мои критерии. В итоге выбрали прямо то, что мне было надо!
Ilya Malov
Отличный сервис! Нужный вариант подобрали уже на следующий день после обращения. Документы с арендодателем я подписала в конце той же недели и сразу переехала. Квартира после ремонта, все новое, я — первый арендатор, до метро 15 минут пешком. Это потрясающе!
Maria Levkina
Поиски квартиры заняли ровно неделю, Андрей проверял все варианты и составлял подробное описание. Так же оказал помощь при подписании договора. И вот теперь, я снимаю квартиру без комиссии, от собственника, с хорошим ремонтом, в новом доме по приемлемой цене.
Dmitry Kovtun
Клиентоориентированность — на высшем уровне. И форма связи любая.. мне было удобно общаться через почту — не проблема: в будни и даже в выходные, и днем и ночью — постоянно на связи) В какой-то момент даже подумала, что личный помощник никогда не отдыхает))
Teresa Olehnovich
Услуга «Личный помощник» — это не только дешевле, чем платить деньги каким-то непонятным посредникам или риэлторам, но и гарантированная ежедневная консультация от грамотного специалиста. Одним словом, всё очень понравилось.
Алина Василевская
Моя оценка 5! Нашли с личным помощником то, что нужно!! Удобно и безопасно. Отличный, проверенный сайт! Спасибо, Локалс!
Еленка Потапова
Искал с помощью услуги «Личный помощник». Сервис справился с поставленной перед ним задачей — найти мне жильё в короткие сроки (дедлайн 1,5 недели). Спасибо!
Dimas
У меня только положительные впечатления остались. Мне присылал варианты каждый день, иногда даже дважды. Всегда оперативно реагировал на мои пожелания. В итоге, так и сняли одну из предложенных квартир и очень довольны.
Любовь












