2-к кв. Санкт-Петербург Благодатная ул., 50 (56.9 м²)
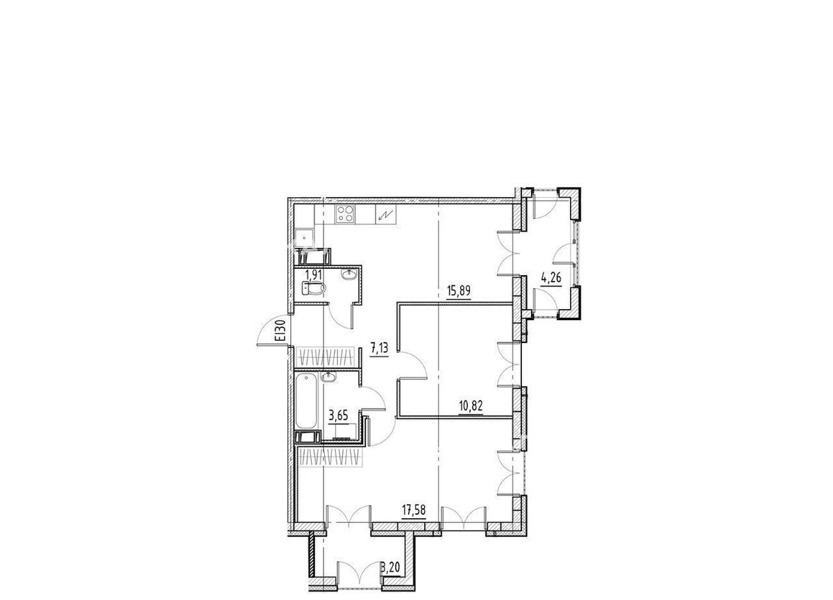
Предлагаем в аренду уютную двухкомнатную квартиру с евроремонтом. Общая площадь — 56.9 квадратных метров, из которых 28.4 квадратных метра занимают жилые комнаты. Квартира расположена на 6-м этаже 11-этажного дома. Комнаты выходят как на улицу, так и во двор, поэтому можно наслаждаться тишиной и городскими видами. Приятный бонус — две лоджии.
В квартире есть все необходимое для комфортной жизни. Просторная кухня площадью 15.89 квадратных метров оборудована современной мебелью и техникой: холодильник, посудомоечная машина и стиральная машина. В гостиной установлены телевизор и удобная мебель. Ванная комната с душевой кабиной, а также два отдельных санузла помогут избежать утренних очередей.
Дом находится в отличном состоянии, есть как пассажирский, так и грузовой лифт. Для автомобилистов предусмотрена подземная парковка, поэтому можно не беспокоиться о парковочном месте.
Рядом с домом расположены школы и магазины, что делает жизнь в этом районе особенно удобной для семей. До ближайшего метро можно дойти пешком за 17 минут. Без домашних животных. Комиссия 70%
Приглашаем вас на просмотр. Записывайтесь заранее и приходите оценить все преимущества этой квартиры лично.
Удобства
Балкон
Посудомоечная машина
Холодильник
Стиральная машина
Телевизор
Нагреватель воды
Кондиционер
Особенности
Можно курить
Подходит для мероприятий
Можно с животными
Подходит для семьи с детьми
Другие 2-х комнатные квартиры
2-комнатная квартира: Санкт-Петербург, Малая Митрофаньевская улица, 8к1 (68 м²)
Последние добавленные апартаменты
О нас говорят
Хорошая услуга «Личный помощник». За вами закрепляют менеджера, который подбирает для вас варианты, помогает с подписанием договора и проверкой квартиры. Константин оперативно отвечал на наши вопросы и подстраивался под возникающие в ходе поиска требования.
Ins Fairy
Нашел себе отличную квартиру в Мск на Локалс. В этот раз пользовался услугой Личный помощник; Каждый день мне присылали варианты и по моим ответам уточняли мои критерии. В итоге выбрали прямо то, что мне было надо!
Ilya Malov
Отличный сервис! Нужный вариант подобрали уже на следующий день после обращения. Документы с арендодателем я подписала в конце той же недели и сразу переехала. Квартира после ремонта, все новое, я — первый арендатор, до метро 15 минут пешком. Это потрясающе!
Maria Levkina
Поиски квартиры заняли ровно неделю, Андрей проверял все варианты и составлял подробное описание. Так же оказал помощь при подписании договора. И вот теперь, я снимаю квартиру без комиссии, от собственника, с хорошим ремонтом, в новом доме по приемлемой цене.
Dmitry Kovtun
Клиентоориентированность — на высшем уровне. И форма связи любая.. мне было удобно общаться через почту — не проблема: в будни и даже в выходные, и днем и ночью — постоянно на связи) В какой-то момент даже подумала, что личный помощник никогда не отдыхает))
Teresa Olehnovich
Услуга «Личный помощник» — это не только дешевле, чем платить деньги каким-то непонятным посредникам или риэлторам, но и гарантированная ежедневная консультация от грамотного специалиста. Одним словом, всё очень понравилось.
Алина Василевская
Моя оценка 5! Нашли с личным помощником то, что нужно!! Удобно и безопасно. Отличный, проверенный сайт! Спасибо, Локалс!
Еленка Потапова
Искал с помощью услуги «Личный помощник». Сервис справился с поставленной перед ним задачей — найти мне жильё в короткие сроки (дедлайн 1,5 недели). Спасибо!
Dimas
У меня только положительные впечатления остались. Мне присылал варианты каждый день, иногда даже дважды. Всегда оперативно реагировал на мои пожелания. В итоге, так и сняли одну из предложенных квартир и очень довольны.
Любовь












