
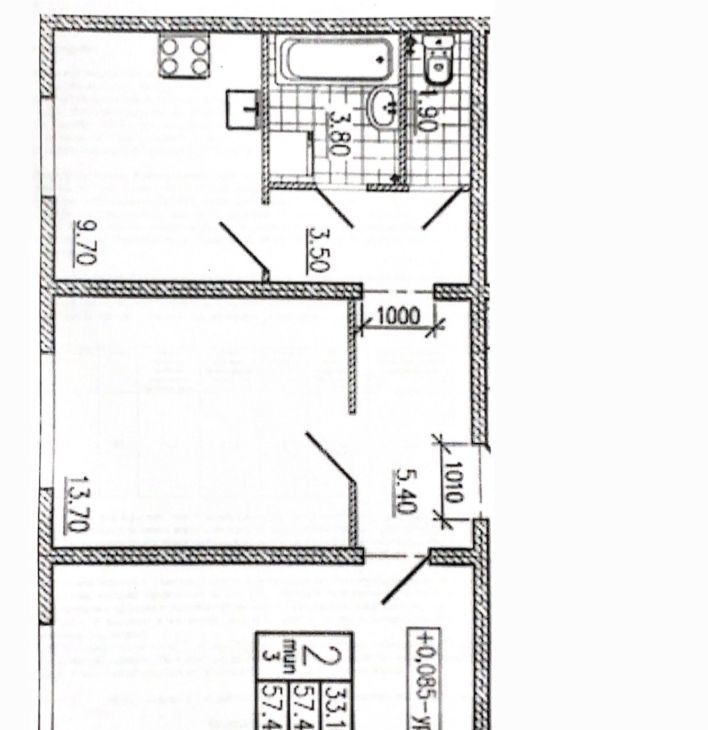
2-к кв. Санкт-Петербург Бестужевская ул., 7к1 (57.6 м²)
Продается светлая и просторная двухкомнатная квартира.
Если вы ищете комфорт современного жилья и цените личное пространство — это предложение для вас. Квартира расположена на последнем, 25-м этаже а значит — никакой лишней суеты и топота соседей сверху.
Главные преимущества:
* Идеальный этаж (25/25): Панорамный обзор, много естественного света и отсутствие эффекта колодца.
* Функциональная планировка: Общая площадь 57.6 м². Просторные изолированные комнаты, правильная геометрия которых позволяет эффективно использовать каждый метр.
* Качество ЖК Синема: Один из самых удачных проектов комфорт-класса от ЛСР. Дом сдан в 2017 году — он уже полностью дал усадку, соседи закончили ремонты, в парадных чисто и безопасно.
Инфраструктура: В пешей доступности парк Академика Сахарова и Полюстровский парк для прогулок. Прямо по соседству — кофейни, супермаркеты, фитнес-центры и всё необходимое для жизни.
Локация и транспорт:
* Адрес: ул. Бестужевская, д. 7.
* Удобный выезд на КАД и Кушелевскую дорогу.
* До метро Лесная или Площадь Мужества — 10 минут на транспорте.
Особенности
Другие 2-х комнатные квартиры
2-комнатная квартира: Санкт-Петербург, 8-я Советская улица, 33 (73.1 м²)
Последние добавленные апартаменты
1-комнатная квартира: Санкт-Петербург, набережная Макарова, 60 (40 м²)
Квартира-студия: Санкт-Петербург, Большой Сампсониевский проспект, 74к2 (16 м²)
1-комнатная квартира: Санкт-Петербург, Комендантский проспект, 59к2 (38 м²)
О нас говорят
Хорошая услуга «Личный помощник». За вами закрепляют менеджера, который подбирает для вас варианты, помогает с подписанием договора и проверкой квартиры. Константин оперативно отвечал на наши вопросы и подстраивался под возникающие в ходе поиска требования.
Ins Fairy
Нашел себе отличную квартиру в Мск на Локалс. В этот раз пользовался услугой Личный помощник; Каждый день мне присылали варианты и по моим ответам уточняли мои критерии. В итоге выбрали прямо то, что мне было надо!
Ilya Malov
Отличный сервис! Нужный вариант подобрали уже на следующий день после обращения. Документы с арендодателем я подписала в конце той же недели и сразу переехала. Квартира после ремонта, все новое, я — первый арендатор, до метро 15 минут пешком. Это потрясающе!
Maria Levkina
Поиски квартиры заняли ровно неделю, Андрей проверял все варианты и составлял подробное описание. Так же оказал помощь при подписании договора. И вот теперь, я снимаю квартиру без комиссии, от собственника, с хорошим ремонтом, в новом доме по приемлемой цене.
Dmitry Kovtun
Клиентоориентированность — на высшем уровне. И форма связи любая.. мне было удобно общаться через почту — не проблема: в будни и даже в выходные, и днем и ночью — постоянно на связи) В какой-то момент даже подумала, что личный помощник никогда не отдыхает))
Teresa Olehnovich
Услуга «Личный помощник» — это не только дешевле, чем платить деньги каким-то непонятным посредникам или риэлторам, но и гарантированная ежедневная консультация от грамотного специалиста. Одним словом, всё очень понравилось.
Алина Василевская
Моя оценка 5! Нашли с личным помощником то, что нужно!! Удобно и безопасно. Отличный, проверенный сайт! Спасибо, Локалс!
Еленка Потапова
Искал с помощью услуги «Личный помощник». Сервис справился с поставленной перед ним задачей — найти мне жильё в короткие сроки (дедлайн 1,5 недели). Спасибо!
Dimas
У меня только положительные впечатления остались. Мне присылал варианты каждый день, иногда даже дважды. Всегда оперативно реагировал на мои пожелания. В итоге, так и сняли одну из предложенных квартир и очень довольны.
Любовь












