
















2-к кв. Санкт-Петербург Алтайская ул., 41 (43.0 м²)
Двухкомнатная квартира площадью 43 кв.м. на Алтайской улице в Московском районе предлагает комфортное проживание в одном из самых востребованных локаций города.
Объект расположен на втором этаже пятиэтажного кирпичного дома, что обеспечивает удобный подъем и независимость от лифта.
Квартира выполнена после капитального ремонта с использованием качественных материалов: повсеместно уложены полы с подогревом, установлена современная сантехника в раздельном санузле, включая душевую кабину.
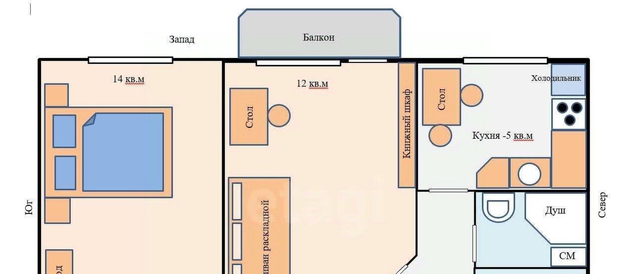
Планировка отличается практичностью: две изолированные комнаты и большой коридор, что создает комфортные условия для совместного проживания.
Застекленная лоджия увеличивает полезное пространство и может служить местом для отдыха.
Ключевым преимуществом является исключительная транспортная доступность: станция метро "Московская" находится всего в семи минутах неспешной ходьбы.
Вся необходимая инфраструктура расположена в шаговой доступности: круглосуточные гипермаркет "Лента" и магазин "Пятерочка", фермерские лавки, пекарни и аптеки.
Спокойную атмосферу гарантируют тихие соседи.
Квартира полностью укомплектована новой бытовой техникой, готовой к использованию.
Предложение ориентировано на арендаторов, ценящих сочетание выгодного местоположения, качественного ремонта и развитой городской среды.
Оплата комиссии доступна в рассрочку!
Код пользователя: 134144
Номер в базе: 9936030
Удобства
Балкон
Посудомоечная машина
Холодильник
Стиральная машина
Телевизор
Нагреватель воды
Кондиционер
Особенности
Можно курить
Подходит для мероприятий
Можно с животными
Подходит для семьи с детьми
Другие 2-х комнатные квартиры
2-комнатная квартира: Санкт-Петербург, проспект Юрия Гагарина, 26к2 (45 м²)
2-комнатная квартира: Санкт-Петербург, проспект Юрия Гагарина, 26к2 (45 м²)
Последние добавленные апартаменты
1-комнатная квартира: посёлок Парголово, Толубеевский проезд, 8к2 (25.6 м²)
2-комнатная квартира: Санкт-Петербург, Парфёновская улица, 9к2 (60 м²)
О нас говорят
Хорошая услуга «Личный помощник». За вами закрепляют менеджера, который подбирает для вас варианты, помогает с подписанием договора и проверкой квартиры. Константин оперативно отвечал на наши вопросы и подстраивался под возникающие в ходе поиска требования.
Ins Fairy
Нашел себе отличную квартиру в Мск на Локалс. В этот раз пользовался услугой Личный помощник; Каждый день мне присылали варианты и по моим ответам уточняли мои критерии. В итоге выбрали прямо то, что мне было надо!
Ilya Malov
Отличный сервис! Нужный вариант подобрали уже на следующий день после обращения. Документы с арендодателем я подписала в конце той же недели и сразу переехала. Квартира после ремонта, все новое, я — первый арендатор, до метро 15 минут пешком. Это потрясающе!
Maria Levkina
Поиски квартиры заняли ровно неделю, Андрей проверял все варианты и составлял подробное описание. Так же оказал помощь при подписании договора. И вот теперь, я снимаю квартиру без комиссии, от собственника, с хорошим ремонтом, в новом доме по приемлемой цене.
Dmitry Kovtun
Клиентоориентированность — на высшем уровне. И форма связи любая.. мне было удобно общаться через почту — не проблема: в будни и даже в выходные, и днем и ночью — постоянно на связи) В какой-то момент даже подумала, что личный помощник никогда не отдыхает))
Teresa Olehnovich
Услуга «Личный помощник» — это не только дешевле, чем платить деньги каким-то непонятным посредникам или риэлторам, но и гарантированная ежедневная консультация от грамотного специалиста. Одним словом, всё очень понравилось.
Алина Василевская
Моя оценка 5! Нашли с личным помощником то, что нужно!! Удобно и безопасно. Отличный, проверенный сайт! Спасибо, Локалс!
Еленка Потапова
Искал с помощью услуги «Личный помощник». Сервис справился с поставленной перед ним задачей — найти мне жильё в короткие сроки (дедлайн 1,5 недели). Спасибо!
Dimas
У меня только положительные впечатления остались. Мне присылал варианты каждый день, иногда даже дважды. Всегда оперативно реагировал на мои пожелания. В итоге, так и сняли одну из предложенных квартир и очень довольны.
Любовь












