




























2-к кв. Санкт-Петербург аллея Арцеуловская, 19 (42.0 м²)
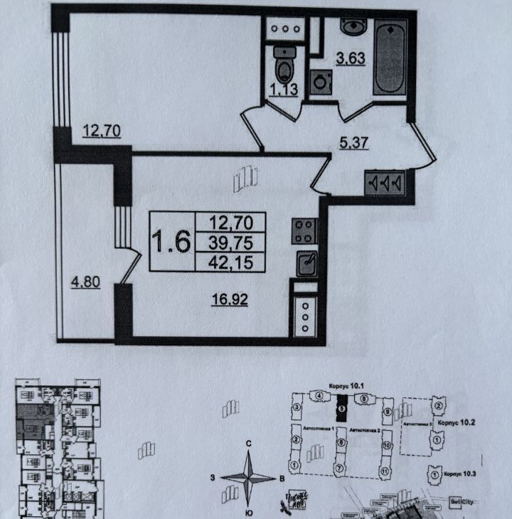
Предлагаем вашему вниманию однокомнатную, но довольно просторную квартиру: отдельная спальня (12м), просторная большая кухня (19м), раздельный санузел, большая застекленная лоджия (4,8м).
Квартира оформлена в светлых тонах с хорошим, современным ремонтом. Очень солнечная: в хорошую и ясную погоду солнце в квартире весь день. С лоджии прекрасный вид на залив, поля, в ясную погоду можно увидеть Сестрорецк.
Жильцы в доме вежливые и дружелюбные.
Дом находится на закрытой территории, с двух сторон двор с детскими площадками и подземным паркингом. В доме есть три лифта: один грузовой и два пассажирских, подъемный пандус для людей с ограничением в движении. Мусоропровод в доме отсутствует, есть обустроенные места за территорией двора. Двор огорожен забором и калитками с домофоном для входа/выхода и воротами для въезда спецтранспорта.
Рядом много магазинов, аптек, салонов красоты, медицинские центры и поликлиника. В шаговой доступности большие магазины Лента и ЛеруаМерлен. Регулярно ходит общественный транспорт. В ближайшем будущем откроется, в пешей доступности, метро Шуваловский пр/Каменка (пересечение Комендантский проспект и Шуваловский проспект).
Строятся детские сады и школы вокруг, некоторые уже готовы и действуют, есть которые откроются к сентябрю 2026г. Дороги и транспортная развязка развиваются, рядом ЗСД и КАД.
У дома есть уличная парковка надземная, бесплатная.
Также к данной квартире имеется паркинг на -1 этаже, при совместной покупке паркинг будет стоить 1млн₽.
Особенности
Другие 2-х комнатные квартиры
2-комнатная квартира: Санкт-Петербург, проспект Королёва, 71к1 (67 м²)
2-комнатная квартира: Санкт-Петербург, Комендантский проспект, 35к3 (54.7 м²)
Последние добавленные апартаменты
1-комнатная квартира: Санкт-Петербург, проспект Луначарского, 11к1 (46.5 м²)
2-комнатная квартира: Санкт-Петербург, проспект Энергетиков, 9к3 (59 м²)
О нас говорят
Хорошая услуга «Личный помощник». За вами закрепляют менеджера, который подбирает для вас варианты, помогает с подписанием договора и проверкой квартиры. Константин оперативно отвечал на наши вопросы и подстраивался под возникающие в ходе поиска требования.
Ins Fairy
Нашел себе отличную квартиру в Мск на Локалс. В этот раз пользовался услугой Личный помощник; Каждый день мне присылали варианты и по моим ответам уточняли мои критерии. В итоге выбрали прямо то, что мне было надо!
Ilya Malov
Отличный сервис! Нужный вариант подобрали уже на следующий день после обращения. Документы с арендодателем я подписала в конце той же недели и сразу переехала. Квартира после ремонта, все новое, я — первый арендатор, до метро 15 минут пешком. Это потрясающе!
Maria Levkina
Поиски квартиры заняли ровно неделю, Андрей проверял все варианты и составлял подробное описание. Так же оказал помощь при подписании договора. И вот теперь, я снимаю квартиру без комиссии, от собственника, с хорошим ремонтом, в новом доме по приемлемой цене.
Dmitry Kovtun
Клиентоориентированность — на высшем уровне. И форма связи любая.. мне было удобно общаться через почту — не проблема: в будни и даже в выходные, и днем и ночью — постоянно на связи) В какой-то момент даже подумала, что личный помощник никогда не отдыхает))
Teresa Olehnovich
Услуга «Личный помощник» — это не только дешевле, чем платить деньги каким-то непонятным посредникам или риэлторам, но и гарантированная ежедневная консультация от грамотного специалиста. Одним словом, всё очень понравилось.
Алина Василевская
Моя оценка 5! Нашли с личным помощником то, что нужно!! Удобно и безопасно. Отличный, проверенный сайт! Спасибо, Локалс!
Еленка Потапова
Искал с помощью услуги «Личный помощник». Сервис справился с поставленной перед ним задачей — найти мне жильё в короткие сроки (дедлайн 1,5 недели). Спасибо!
Dimas
У меня только положительные впечатления остались. Мне присылал варианты каждый день, иногда даже дважды. Всегда оперативно реагировал на мои пожелания. В итоге, так и сняли одну из предложенных квартир и очень довольны.
Любовь












