






1-комнатная квартира: Санкт-Петербург, улица Маршала Захарова, 60 (31.4 м²)
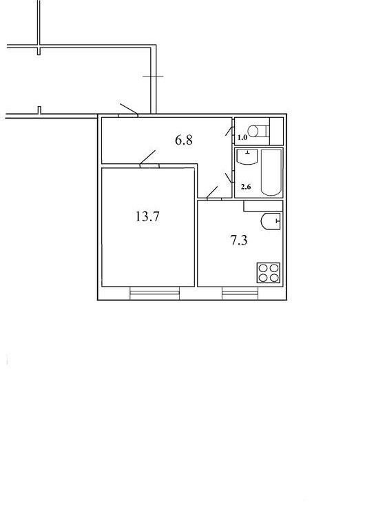
Общая площадь 31.4 кв.м. Комната - 13.7 кв.м., кухня — 7.3 кв.м. Высота потолка — 2.55 м. 3 этаж. Дом 137 серии (не "корабль"). Пассажирский и грузовой лифты, мусоропровод. До метро "Юго-Западная" 19 минут пешком.
Один собственник с 2018 года. Зарегистрированных нет. Обремений нет.
Холодильник, стиральная машина, электроплита - в рабочем состоянии.
Раздельный санузел. Туалет, ванная в прекрасном состоянии. Отличная планировка. Большая прихожая. Вместительная кухня.
Требуется косметический ремонт (необходима замена обоев). Стеклопакеты. Двери в отличном состоянии. Ламинат, напольная плитка. Потолок и пол, не требующие незамедлительного ремонта. Сантехника в порядке.
Вся мебель и кухня остаётся.
Счётчики воды поверены до 2028 года.
Долгов по ЖКУ нет.
Особенности
Другие однокомнатные квартиры
Квартира-студия: Санкт-Петербург, Октябрьская набережная, 34к4 (25.2 м²)
Последние добавленные апартаменты
2-комнатная квартира: Санкт-Петербург, Витебский проспект, 87к3 (48.8 м²)
1-комнатная квартира: посёлок Парголово, улица Валерия Гаврилина, 3к2 (39 м²)
О нас говорят
Хорошая услуга «Личный помощник». За вами закрепляют менеджера, который подбирает для вас варианты, помогает с подписанием договора и проверкой квартиры. Константин оперативно отвечал на наши вопросы и подстраивался под возникающие в ходе поиска требования.
Ins Fairy
Нашел себе отличную квартиру в Мск на Локалс. В этот раз пользовался услугой Личный помощник; Каждый день мне присылали варианты и по моим ответам уточняли мои критерии. В итоге выбрали прямо то, что мне было надо!
Ilya Malov
Отличный сервис! Нужный вариант подобрали уже на следующий день после обращения. Документы с арендодателем я подписала в конце той же недели и сразу переехала. Квартира после ремонта, все новое, я — первый арендатор, до метро 15 минут пешком. Это потрясающе!
Maria Levkina
Поиски квартиры заняли ровно неделю, Андрей проверял все варианты и составлял подробное описание. Так же оказал помощь при подписании договора. И вот теперь, я снимаю квартиру без комиссии, от собственника, с хорошим ремонтом, в новом доме по приемлемой цене.
Dmitry Kovtun
Клиентоориентированность — на высшем уровне. И форма связи любая.. мне было удобно общаться через почту — не проблема: в будни и даже в выходные, и днем и ночью — постоянно на связи) В какой-то момент даже подумала, что личный помощник никогда не отдыхает))
Teresa Olehnovich
Услуга «Личный помощник» — это не только дешевле, чем платить деньги каким-то непонятным посредникам или риэлторам, но и гарантированная ежедневная консультация от грамотного специалиста. Одним словом, всё очень понравилось.
Алина Василевская
Моя оценка 5! Нашли с личным помощником то, что нужно!! Удобно и безопасно. Отличный, проверенный сайт! Спасибо, Локалс!
Еленка Потапова
Искал с помощью услуги «Личный помощник». Сервис справился с поставленной перед ним задачей — найти мне жильё в короткие сроки (дедлайн 1,5 недели). Спасибо!
Dimas
У меня только положительные впечатления остались. Мне присылал варианты каждый день, иногда даже дважды. Всегда оперативно реагировал на мои пожелания. В итоге, так и сняли одну из предложенных квартир и очень довольны.
Любовь












