



























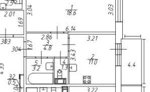
1-комнатная квартира: Санкт-Петербург, улица Александра Матросова, 3 (38.9 м²)
Продается однокомнатная квартира в ЖК «Притяжение».
ОДИН СОБСТВЕННИК. БЕЗ ОБРЕМЕНЕНИЙ.
О квартире и доме:
· Площадь: 38,9 кв.м.
· Этаж: 7 из 9 этажей
· Высота потолков 3 метра, что визуально увеличивает пространство .
· Окна выходят во двор.
· В квартире выполнен ремонт «для себя». Практически все что на фото остается новому владельцу.
Техническая лоджия позволяет установить кондиционер без порчи фасада .
· Простор и свет: Высокие потолки 3 метра , панорамные окна создают ощущение простора и воздуха .
· Планировка: продуманная планировка. На этаже всего 5 квартир — минимум соседей .
· Качество строительства: Кирпично-монолитный дом с фасадами из керамогранита. В доме установлены бесшумные лифты KONE, система очистки воды. В квартире установлен компактный приточный очиститель воздуха с эффективной фильтрацией от пыли и аллергенов, защитой от шума с улицы и управлением со смартфона.
· Отделка: ремонт осуществлялся владельцем для собственного проживания.
Территория и инфраструктура:
· Закрытый двор: Приватная охраняемая территория без машин с ландшафтным дизайном. Во дворе детские и спортивные площадки .
· Паркинг: Подземный паркинг на 692 места.
Расположение: Всего 12-15 минут пешком до м. Лесная . Рядом Выборгская набережная, Ботанический сад, парки.
· Рядом есть всё: магазины, аптеки, салоны красоты на первых этажах домов. Детский сад на территории комплекса .
Почему это выгодное предложение?
Жилой комплекс уже сдан и заселен, сформировавшийся уютный двор и развитая инфраструктура . Квартира идеально подходит как для комфортного собственного проживания, так и для престижной сдачи в аренду (востребованная локация) .
Звоните, отвечу с радостью на все вопросы.
Особенности
Другие однокомнатные квартиры
1-комнатная квартира: Санкт-Петербург, Пискарёвский проспект, 1 (37 м²)
Последние добавленные апартаменты
3-к кв. Санкт-Петербург просп. Средний Васильевского острова, 83с2 (70.0 м²)
Студия Санкт-Петербург просп. Средний Васильевского острова, 83с2 (25.0 м²)
О нас говорят
Хорошая услуга «Личный помощник». За вами закрепляют менеджера, который подбирает для вас варианты, помогает с подписанием договора и проверкой квартиры. Константин оперативно отвечал на наши вопросы и подстраивался под возникающие в ходе поиска требования.
Ins Fairy
Нашел себе отличную квартиру в Мск на Локалс. В этот раз пользовался услугой Личный помощник; Каждый день мне присылали варианты и по моим ответам уточняли мои критерии. В итоге выбрали прямо то, что мне было надо!
Ilya Malov
Отличный сервис! Нужный вариант подобрали уже на следующий день после обращения. Документы с арендодателем я подписала в конце той же недели и сразу переехала. Квартира после ремонта, все новое, я — первый арендатор, до метро 15 минут пешком. Это потрясающе!
Maria Levkina
Поиски квартиры заняли ровно неделю, Андрей проверял все варианты и составлял подробное описание. Так же оказал помощь при подписании договора. И вот теперь, я снимаю квартиру без комиссии, от собственника, с хорошим ремонтом, в новом доме по приемлемой цене.
Dmitry Kovtun
Клиентоориентированность — на высшем уровне. И форма связи любая.. мне было удобно общаться через почту — не проблема: в будни и даже в выходные, и днем и ночью — постоянно на связи) В какой-то момент даже подумала, что личный помощник никогда не отдыхает))
Teresa Olehnovich
Услуга «Личный помощник» — это не только дешевле, чем платить деньги каким-то непонятным посредникам или риэлторам, но и гарантированная ежедневная консультация от грамотного специалиста. Одним словом, всё очень понравилось.
Алина Василевская
Моя оценка 5! Нашли с личным помощником то, что нужно!! Удобно и безопасно. Отличный, проверенный сайт! Спасибо, Локалс!
Еленка Потапова
Искал с помощью услуги «Личный помощник». Сервис справился с поставленной перед ним задачей — найти мне жильё в короткие сроки (дедлайн 1,5 недели). Спасибо!
Dimas
У меня только положительные впечатления остались. Мне присылал варианты каждый день, иногда даже дважды. Всегда оперативно реагировал на мои пожелания. В итоге, так и сняли одну из предложенных квартир и очень довольны.
Любовь












