


















1-комнатная квартира: Санкт-Петербург, проспект Энгельса, 136к1 (45.8 м²)
Продаётся уютная евродвушка, проспект Энгельса, 136, корп. 1.
Предлагаем к продаже светлую и функциональную квартиру на 2 м этаже кирпичного дома — идеальный вариант для тех, кто ценит время, безопасность и развитую инфраструктуру.
Адрес: проспект Энгельса, дом 136, корпус 1 (2 й этаж).
Основные параметры:
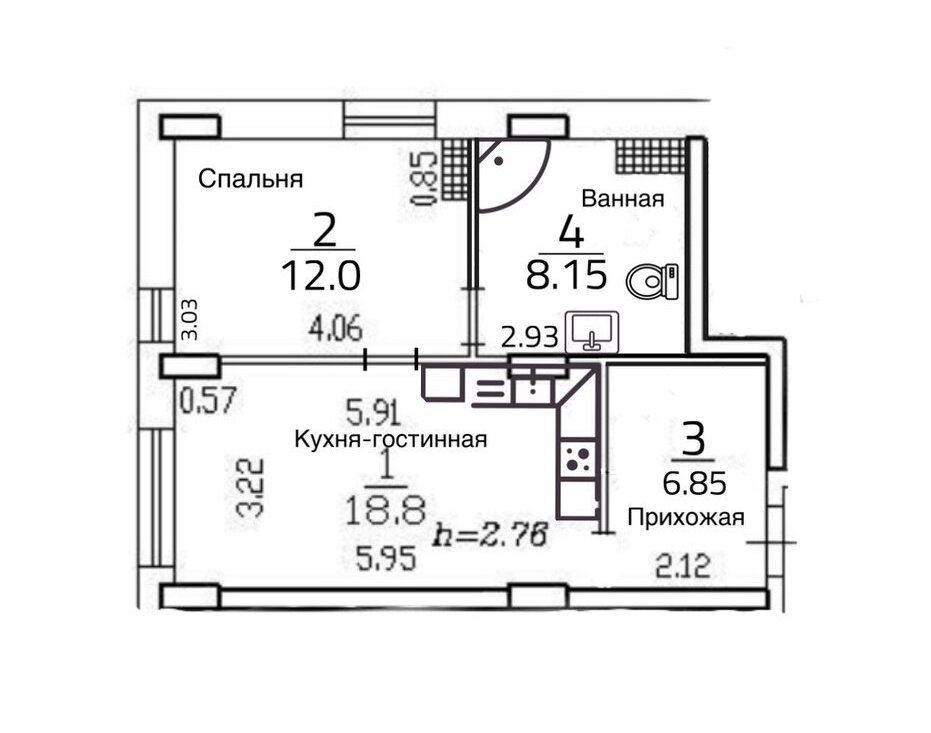
• общая площадь: 45,8 кв.м. ;
• тип дома: кирпичный;
• перекрытия: железобетонные;
• этажность дома: 9 этажей;
• высота потолков: 2,76м;
• установлен кондиционер.
Почему эта квартира — ваш лучший выбор?
• Метро в шаговой доступности. Всего 1 минута пешком до станции «Проспект Просвещения» (синяя ветка) — до центра Петербурга можно добраться за 20 минут.
• 2 й этаж — максимум удобства. Не нужно ждать лифта: быстрый выход из дома и экономия времени каждый день. При этом исправный лифт в доме есть — выбирайте, как вам удобнее!
• Безопасность и порядок. В доме работает консьерж — вы всегда можете быть спокойны за безопасность подъезда и сохранность общего имущества.
• Всё необходимое рядом. В минуте ходьбы — торговый центр «НОРД»: супермаркет «Перекрёсток» с новым ремонтом, магазины для дома, аптеки и многое другое. Всё для комфортной жизни — под рукой.
• Квартира для жизни. Жильё использовалось одним собственником много лет и полностью готово к переезду — без лишних хлопот и вложений.
Планировка и интерьер:
• просторная прихожая с большим шкафом купе — достаточно места для хранения;
• уютная кухня гостиная — идеальное пространство для семейных ужинов и приёма гостей;
• мастер спальня — зона для полноценного отдыха с большой ванной комнатой.
На данный момент на квартиру наложены ограничения, но они будут погашены в оперативном порядке при продаже.
Особенности
Другие однокомнатные квартиры
1-комнатная квартира: Санкт-Петербург, Ярославский проспект, 95 (45.6 м²)
1-комнатная квартира: Санкт-Петербург, Коломяжский проспект, 15к2 (45 м²)
Последние добавленные апартаменты
1-к кв. Санкт-Петербург пос. Парголово, проезд Толубеевский, 20к1 (34.0 м²)
2-комнатная квартира: Санкт-Петербург, проспект Космонавтов, 61к1 (44 м²)
О нас говорят
Хорошая услуга «Личный помощник». За вами закрепляют менеджера, который подбирает для вас варианты, помогает с подписанием договора и проверкой квартиры. Константин оперативно отвечал на наши вопросы и подстраивался под возникающие в ходе поиска требования.
Ins Fairy
Нашел себе отличную квартиру в Мск на Локалс. В этот раз пользовался услугой Личный помощник; Каждый день мне присылали варианты и по моим ответам уточняли мои критерии. В итоге выбрали прямо то, что мне было надо!
Ilya Malov
Отличный сервис! Нужный вариант подобрали уже на следующий день после обращения. Документы с арендодателем я подписала в конце той же недели и сразу переехала. Квартира после ремонта, все новое, я — первый арендатор, до метро 15 минут пешком. Это потрясающе!
Maria Levkina
Поиски квартиры заняли ровно неделю, Андрей проверял все варианты и составлял подробное описание. Так же оказал помощь при подписании договора. И вот теперь, я снимаю квартиру без комиссии, от собственника, с хорошим ремонтом, в новом доме по приемлемой цене.
Dmitry Kovtun
Клиентоориентированность — на высшем уровне. И форма связи любая.. мне было удобно общаться через почту — не проблема: в будни и даже в выходные, и днем и ночью — постоянно на связи) В какой-то момент даже подумала, что личный помощник никогда не отдыхает))
Teresa Olehnovich
Услуга «Личный помощник» — это не только дешевле, чем платить деньги каким-то непонятным посредникам или риэлторам, но и гарантированная ежедневная консультация от грамотного специалиста. Одним словом, всё очень понравилось.
Алина Василевская
Моя оценка 5! Нашли с личным помощником то, что нужно!! Удобно и безопасно. Отличный, проверенный сайт! Спасибо, Локалс!
Еленка Потапова
Искал с помощью услуги «Личный помощник». Сервис справился с поставленной перед ним задачей — найти мне жильё в короткие сроки (дедлайн 1,5 недели). Спасибо!
Dimas
У меня только положительные впечатления остались. Мне присылал варианты каждый день, иногда даже дважды. Всегда оперативно реагировал на мои пожелания. В итоге, так и сняли одну из предложенных квартир и очень довольны.
Любовь












