















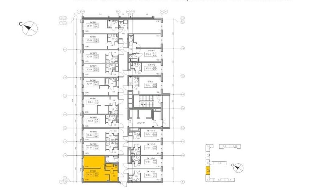
1-комнатная квартира: Санкт-Петербург, Архивная улица, 3к1 (35.83 м²)
Апартаменты с отделкой с видом на Неву и мосты, исторический центр. 13 этаж, переуступка апарт-комплекса бизнес-класса Zoom на Неве.
Продаю по переуступке прав евро-двушку в апарт-комплексе ZOOM на Неве (ГК ФСК) — вторая очередь, секция 3.4, сдача II квартал 2026 года. Ожидаемая доходность от аренды 70 т.р.
Ключевые характеристики:
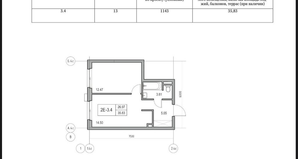
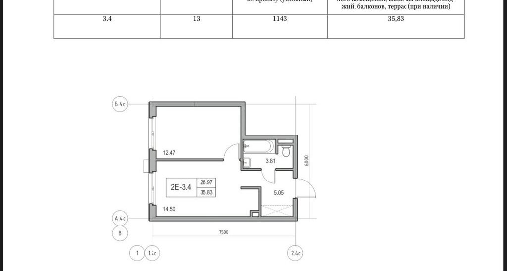
Площадь: 35,83 м² (по ДДУ)
Планировка: 2E-3.4 — полноценная евро-двушка (отдельная спальня + просторная кухня-гостиная ~14,5 м² + прихожая + совмещённый санузел)
Этаж: 13 из 17 (high flat, отличные виды)
Вид: боковой на Неву в сторону центра города, на Большой Смоленский мост и Финляндский железнодорожный мост
Отделка: чистовая fine dining от застройщика (без мебели, кухни) — заезжаете сразу после сдачи
Фото: прикрепляю план из ДДУ + рендеры вида/отделки.
Отличительные особенности:
- Вид на Неву и исторический центр — один из самых востребованных в комплексе
- Высокий этаж без шума с улицы
- Евро-планировка — комфортнее обычной 1-комнатной той же площади
- Готовая отделка — экономия времени и денег на ремонт, минимальные вложения для начала сдачи
- Траншевая ипотека от Сбера (оплатил только ПВ 20%, второй транш от банка до 30 мая)
- Нет обременений кроме ипотеки (прямая продажа)
Цена: 8 300 000 руб.
Расположение и инфраструктура:
- Октябрьская набережная, 40, лит. А — первая линия Невы, 10 мин. до Парка Строителей, 15 мин. до Лондон-молла, Ленты, Максидома, 15 мин. до метро "ул. Дыбенко", 12 мин. до КАД, 10 мин. до центра
- Единая архитектурная концепция. Сдержанные и монументальные фасады в неоклассическом стиле
- Парадный лобби для жильцов. Единый вход в комплекс с администратором, зоной ресепшн и охраной, зоной для бесконтактной доставки посылок и еды
- Подземный отапливаемый паркинг с доступом из парадной
- Зоны отдыха для взрослых и детей, Wi-Fi-покрытие во дворе и в паркинге, зоны для питомцев, арт-объекты и много другое. В шаговой доступности вся необходимая инфраструктура от детских садов и школ до супермаркетов и салонов
Особенности
Другие однокомнатные квартиры
Последние добавленные апартаменты
Комната Санкт-Петербург просп. Большой Петроградской стороны, 80 (14.0 м²)
Комната Санкт-Петербург 7-я Васильевского острова линия, 16-18 (16.0 м²)
О нас говорят
Хорошая услуга «Личный помощник». За вами закрепляют менеджера, который подбирает для вас варианты, помогает с подписанием договора и проверкой квартиры. Константин оперативно отвечал на наши вопросы и подстраивался под возникающие в ходе поиска требования.
Ins Fairy
Нашел себе отличную квартиру в Мск на Локалс. В этот раз пользовался услугой Личный помощник; Каждый день мне присылали варианты и по моим ответам уточняли мои критерии. В итоге выбрали прямо то, что мне было надо!
Ilya Malov
Отличный сервис! Нужный вариант подобрали уже на следующий день после обращения. Документы с арендодателем я подписала в конце той же недели и сразу переехала. Квартира после ремонта, все новое, я — первый арендатор, до метро 15 минут пешком. Это потрясающе!
Maria Levkina
Поиски квартиры заняли ровно неделю, Андрей проверял все варианты и составлял подробное описание. Так же оказал помощь при подписании договора. И вот теперь, я снимаю квартиру без комиссии, от собственника, с хорошим ремонтом, в новом доме по приемлемой цене.
Dmitry Kovtun
Клиентоориентированность — на высшем уровне. И форма связи любая.. мне было удобно общаться через почту — не проблема: в будни и даже в выходные, и днем и ночью — постоянно на связи) В какой-то момент даже подумала, что личный помощник никогда не отдыхает))
Teresa Olehnovich
Услуга «Личный помощник» — это не только дешевле, чем платить деньги каким-то непонятным посредникам или риэлторам, но и гарантированная ежедневная консультация от грамотного специалиста. Одним словом, всё очень понравилось.
Алина Василевская
Моя оценка 5! Нашли с личным помощником то, что нужно!! Удобно и безопасно. Отличный, проверенный сайт! Спасибо, Локалс!
Еленка Потапова
Искал с помощью услуги «Личный помощник». Сервис справился с поставленной перед ним задачей — найти мне жильё в короткие сроки (дедлайн 1,5 недели). Спасибо!
Dimas
У меня только положительные впечатления остались. Мне присылал варианты каждый день, иногда даже дважды. Всегда оперативно реагировал на мои пожелания. В итоге, так и сняли одну из предложенных квартир и очень довольны.
Любовь












