























1-к кв. Санкт-Петербург ул. Среднерогатская, 11к2 (41.5 м²)
!!! Уникальное предложение на рынке недвижимости Санкт-Петербурга: квартира формата 2 ЕВРО в современном доме класса: БИЗНЕС - ЛАЙТ на Среднерогатской улице по САМОЙ ЛУЧШЕЙ ЦЕНЕ В ДОМЕ !!!
Общая информация:
- Адрес: Россия, Санкт-Петербург, Среднерогатская улица, 11к2
- Год постройки: 2025
- Материал постройки: кирпично-монолитный
- Этажность: 12 этажей
- Парковка: подземный паркинг, наземная, огороженная территория
- Комнатность: 1(евродвушка)
- Этаж: 8
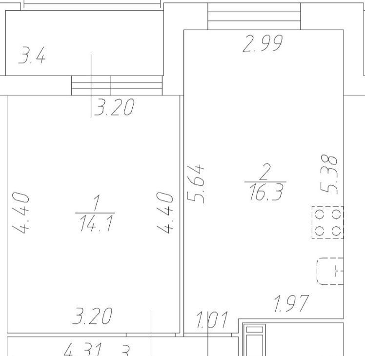
- Общая площадь: 41,5 кв. м
- Жилая площадь: 14,1 кв. м
- Площадь кухни: 16,3 кв. м
- Площадь лоджии: 3,4 кв. м
- Санузел: 4,8 кв. м
- Коридор: 6,3 кв. м.
- Высота потолков: 2,77 м
- Ремонт: white box
- Расположение квартиры в доме: не угловая
- Расположение на этаже: угловая по коридору (НЕ БУДУТ МЕШАТЬ ДОСТАВЩИКИ - БОЛЬШЕ ПРИВАТНОСТИ!)
- Санузел: совмещённый
- Лоджия: одна 3,4 кв. м.
Преимущества:
- Выгодная цена: отличное предложение для тех, кто ищет комфортное жильё в развитом районе.
- Удобное расположение: близость к основным транспортным магистралям и станциям метро, лёгкий доступ к центру города.
- Развитая инфраструктура: школы, детские сады, магазины, аптеки, спортивные клубы — всё в шаговой доступности.
- Просторная планировка: функциональное распределение пространства, возможность зонирования по своему вкусу.
- Качественная отделка: white box позволяет воплотить любые дизайнерские решения без дополнительных вложений.
Перспективы роста стоимости:
- Цена НАМНОГО НИЖЕ аналогичных квартир!!!
- Квартира в новом доме с современной инфраструктурой и удобным расположением обладает высоким потенциалом для роста стоимости, что делает её привлекательной инвестицией.
Звоните нам прямо сейчас! Запишитесь на просмотр и убедитесь в преимуществах этой квартиры лично.
Особенности
Другие однокомнатные квартиры
Последние добавленные апартаменты
1-комнатная квартира: Санкт-Петербург, Верхне-Каменская улица, 11к1 (33.6 м²)
3-комнатная квартира: Санкт-Петербург, 15-я линия Васильевского острова, 48 (60.3 м²)
О нас говорят
Хорошая услуга «Личный помощник». За вами закрепляют менеджера, который подбирает для вас варианты, помогает с подписанием договора и проверкой квартиры. Константин оперативно отвечал на наши вопросы и подстраивался под возникающие в ходе поиска требования.
Ins Fairy
Нашел себе отличную квартиру в Мск на Локалс. В этот раз пользовался услугой Личный помощник; Каждый день мне присылали варианты и по моим ответам уточняли мои критерии. В итоге выбрали прямо то, что мне было надо!
Ilya Malov
Отличный сервис! Нужный вариант подобрали уже на следующий день после обращения. Документы с арендодателем я подписала в конце той же недели и сразу переехала. Квартира после ремонта, все новое, я — первый арендатор, до метро 15 минут пешком. Это потрясающе!
Maria Levkina
Поиски квартиры заняли ровно неделю, Андрей проверял все варианты и составлял подробное описание. Так же оказал помощь при подписании договора. И вот теперь, я снимаю квартиру без комиссии, от собственника, с хорошим ремонтом, в новом доме по приемлемой цене.
Dmitry Kovtun
Клиентоориентированность — на высшем уровне. И форма связи любая.. мне было удобно общаться через почту — не проблема: в будни и даже в выходные, и днем и ночью — постоянно на связи) В какой-то момент даже подумала, что личный помощник никогда не отдыхает))
Teresa Olehnovich
Услуга «Личный помощник» — это не только дешевле, чем платить деньги каким-то непонятным посредникам или риэлторам, но и гарантированная ежедневная консультация от грамотного специалиста. Одним словом, всё очень понравилось.
Алина Василевская
Моя оценка 5! Нашли с личным помощником то, что нужно!! Удобно и безопасно. Отличный, проверенный сайт! Спасибо, Локалс!
Еленка Потапова
Искал с помощью услуги «Личный помощник». Сервис справился с поставленной перед ним задачей — найти мне жильё в короткие сроки (дедлайн 1,5 недели). Спасибо!
Dimas
У меня только положительные впечатления остались. Мне присылал варианты каждый день, иногда даже дважды. Всегда оперативно реагировал на мои пожелания. В итоге, так и сняли одну из предложенных квартир и очень довольны.
Любовь












