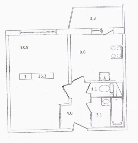
1-к кв. Санкт-Петербург ул. Коллонтай, 6к2 (35.3 м²)
Продам однокомнатную очень теплую и светлую квартиру общей площадью 35,3 кв.м., жилая комната 18.5 кв.м. кухня 8,6 кв.м., лоджия 3.3 кв.м. Квартира в отличном состоянии в декабре 2023 выполнен косметический ремонт, имеется интернет кабельное телевидение, радиоточка, лоджия застеклена оборудована шкафами. Территория дома закрытая имеются, детские площадки, паркинг. Дом обслуживает ТСЖ. В шаговой доступности магазин Лента, ТРК Лондон Молл, два парка (Боевого братства и Строителей, Ледовый дворец), новая взрослая и детская поликлиники, детский сад, школа, хорошая транспортная инфраструктура, 10-15 минут пешком до станции метро Проспект Большевиков, 2-3 мин до остановки трамваев и автобусов. Фотографии отображают действительное состояние квартиры. Проблемных соседей рядом, сверху и снизу нет. Свободная продажа напрямую от собственника, без обременений, и юридических проблем. Имеется видео квартиры. Непосредственный показ квартиры покупателю.
Особенности
Другие однокомнатные квартиры
Квартира-студия: Санкт-Петербург, Железнодорожный проспект, 14к3 (24 м²)
Последние добавленные апартаменты
1-комнатная квартира: Санкт-Петербург, проспект Луначарского, 11к1 (46.5 м²)
2-комнатная квартира: Санкт-Петербург, проспект Энергетиков, 9к3 (59 м²)
О нас говорят
Хорошая услуга «Личный помощник». За вами закрепляют менеджера, который подбирает для вас варианты, помогает с подписанием договора и проверкой квартиры. Константин оперативно отвечал на наши вопросы и подстраивался под возникающие в ходе поиска требования.
Ins Fairy
Нашел себе отличную квартиру в Мск на Локалс. В этот раз пользовался услугой Личный помощник; Каждый день мне присылали варианты и по моим ответам уточняли мои критерии. В итоге выбрали прямо то, что мне было надо!
Ilya Malov
Отличный сервис! Нужный вариант подобрали уже на следующий день после обращения. Документы с арендодателем я подписала в конце той же недели и сразу переехала. Квартира после ремонта, все новое, я — первый арендатор, до метро 15 минут пешком. Это потрясающе!
Maria Levkina
Поиски квартиры заняли ровно неделю, Андрей проверял все варианты и составлял подробное описание. Так же оказал помощь при подписании договора. И вот теперь, я снимаю квартиру без комиссии, от собственника, с хорошим ремонтом, в новом доме по приемлемой цене.
Dmitry Kovtun
Клиентоориентированность — на высшем уровне. И форма связи любая.. мне было удобно общаться через почту — не проблема: в будни и даже в выходные, и днем и ночью — постоянно на связи) В какой-то момент даже подумала, что личный помощник никогда не отдыхает))
Teresa Olehnovich
Услуга «Личный помощник» — это не только дешевле, чем платить деньги каким-то непонятным посредникам или риэлторам, но и гарантированная ежедневная консультация от грамотного специалиста. Одним словом, всё очень понравилось.
Алина Василевская
Моя оценка 5! Нашли с личным помощником то, что нужно!! Удобно и безопасно. Отличный, проверенный сайт! Спасибо, Локалс!
Еленка Потапова
Искал с помощью услуги «Личный помощник». Сервис справился с поставленной перед ним задачей — найти мне жильё в короткие сроки (дедлайн 1,5 недели). Спасибо!
Dimas
У меня только положительные впечатления остались. Мне присылал варианты каждый день, иногда даже дважды. Всегда оперативно реагировал на мои пожелания. В итоге, так и сняли одну из предложенных квартир и очень довольны.
Любовь












