





























1-к кв. Санкт-Петербург ул. Академика Константинова, 1к1 (38.0 м²)
Сдаётся новая 1комн.кв. 38м2 в жилом комплексе бизнес класса Наука на улице Академика Константинова дом 1 в непосредственной близости от станции метро Академическая.
Квартира сдаётся без мебели, только с кухней
Находится на 12ом этаже тринадцатиэтажного дома, в секции всего 7 квартир и полностью отсутствуют студии, поэтому минимум соседей. Окна панорамные, выходят на юго-западную, солнечную сторону, на зелёный двор и детскую площадку.
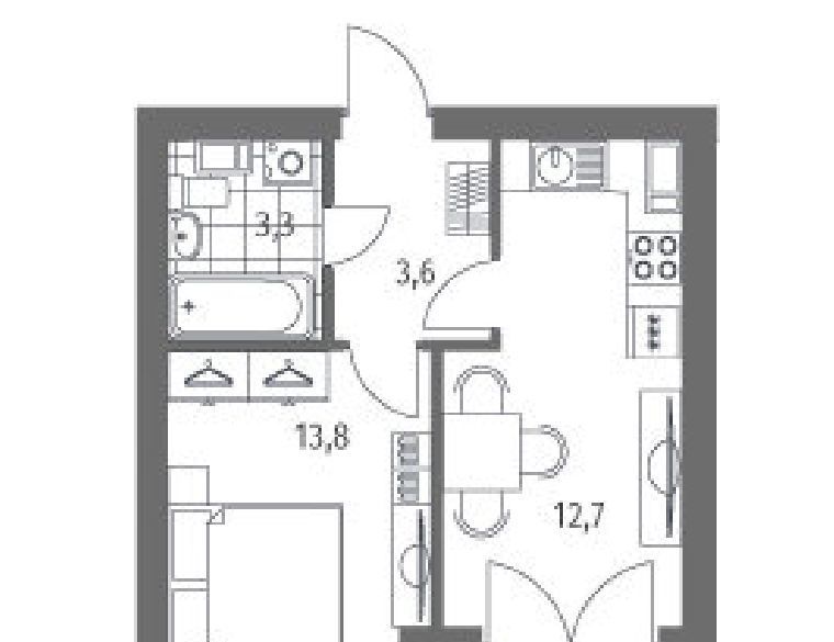
Планировка идеально продумана, в ней отлично сочетаются просторная кухня-гостиная с выходом на лоджию, светлая комната правильной формы и вместительный коридор.
Отделка выполнена из качественных материалов:
— Пол: ламинат 32 класс, дуб паркетный темный с фаской, плинтус SMARTPROFILE Paint, санузел — керамическии гранит 420x420 серыи, лоджия — керамогранит 330х330 черный
— Стены: обои гладкий флизилин 130 гр. под покраску, санузел — плитка керамическая 505x201 светлая
— Потолок: белый матовый натяжной ПВХ
— Электрика: спальни, обеденная зона кухни — люстра, рабочая зона кухни, коридоры, санузлы, лоджия — точечные светильники
— Сантехника: инсталляция с подвесным унитазом, душевой комплект, раковина мебельная, керамическая, смеситель для раковины, ванна акриловая, гигиеническая лейка со шлангом и держателем
— Прочее: санузел — зеркало настенное, ванная комната — комплект теплого пола с электронным термостатом, межкомнатные двери (эмаль белая матовая)
Сдаём на длительный срок, 60тыс + ку, БЕЗ КОМИССИИ (залог за последний месяц 100%).
Удобства
Балкон
Посудомоечная машина
Холодильник
Стиральная машина
Телевизор
Нагреватель воды
Кондиционер
Особенности
Можно курить
Подходит для мероприятий
Можно с животными
Подходит для семьи с детьми
Другие однокомнатные квартиры
1-комнатная квартира: Санкт-Петербург, Пискарёвский проспект, 25к2 (36 м²)
1-комнатная квартира: Санкт-Петербург, Пискарёвский проспект, 25к2 (44 м²)
1-комнатная квартира: Санкт-Петербург, Пискарёвский проспект, 25к2 (44 м²)
1-комнатная квартира: Санкт-Петербург, Светлановский проспект, 14к1 (36.8 м²)
1-комнатная квартира: Санкт-Петербург, Светлановский проспект, 14к1 (34 м²)
Последние добавленные апартаменты
2-комнатная квартира: Санкт-Петербург, проспект Просвещения, 35 (46 м²)
3-комнатная квартира: Санкт-Петербург, Большая Конюшенная улица, 19/8 (90 м²)
О нас говорят
Хорошая услуга «Личный помощник». За вами закрепляют менеджера, который подбирает для вас варианты, помогает с подписанием договора и проверкой квартиры. Константин оперативно отвечал на наши вопросы и подстраивался под возникающие в ходе поиска требования.
Ins Fairy
Нашел себе отличную квартиру в Мск на Локалс. В этот раз пользовался услугой Личный помощник; Каждый день мне присылали варианты и по моим ответам уточняли мои критерии. В итоге выбрали прямо то, что мне было надо!
Ilya Malov
Отличный сервис! Нужный вариант подобрали уже на следующий день после обращения. Документы с арендодателем я подписала в конце той же недели и сразу переехала. Квартира после ремонта, все новое, я — первый арендатор, до метро 15 минут пешком. Это потрясающе!
Maria Levkina
Поиски квартиры заняли ровно неделю, Андрей проверял все варианты и составлял подробное описание. Так же оказал помощь при подписании договора. И вот теперь, я снимаю квартиру без комиссии, от собственника, с хорошим ремонтом, в новом доме по приемлемой цене.
Dmitry Kovtun
Клиентоориентированность — на высшем уровне. И форма связи любая.. мне было удобно общаться через почту — не проблема: в будни и даже в выходные, и днем и ночью — постоянно на связи) В какой-то момент даже подумала, что личный помощник никогда не отдыхает))
Teresa Olehnovich
Услуга «Личный помощник» — это не только дешевле, чем платить деньги каким-то непонятным посредникам или риэлторам, но и гарантированная ежедневная консультация от грамотного специалиста. Одним словом, всё очень понравилось.
Алина Василевская
Моя оценка 5! Нашли с личным помощником то, что нужно!! Удобно и безопасно. Отличный, проверенный сайт! Спасибо, Локалс!
Еленка Потапова
Искал с помощью услуги «Личный помощник». Сервис справился с поставленной перед ним задачей — найти мне жильё в короткие сроки (дедлайн 1,5 недели). Спасибо!
Dimas
У меня только положительные впечатления остались. Мне присылал варианты каждый день, иногда даже дважды. Всегда оперативно реагировал на мои пожелания. В итоге, так и сняли одну из предложенных квартир и очень довольны.
Любовь












