





















1-к кв. Санкт-Петербург просп. Большевиков, 4К1 (34.1 м²)
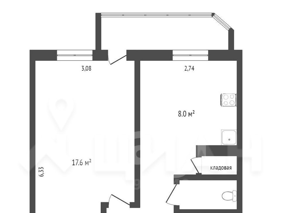
В прекрасной локации в продаже просторная теплая 1 комнатная квартира 34,1 м2 с кухней 8 м2, комнатой 19,5 м2 и видом на реку.
5 минут пешком до метро пр. Большевиков, при этом квартира в тихом дворе, из окон вид на реку Оккервиль и мостик. Зеленая зона вдоль реки - место для прогулок.
Все помещения правильной формы - большая комната с возможностью разделения на зоны, кухня, на котороый хватает места для полноценной стиральной машины, кладовка, большая (5 кв. м) широкая застекленная лоджия.
Отличная транспортная доступность: до станции м. Большевиков 5 минут пешком, до м. Дыбенко 15 минут пешком, большое количество общественного транспорта во всех направлениях, остановки общественного транспорта располагаются рядом с домом, для автомобилистов выезд на КАД 10-15 минут. Большой открытый двор в котором всегда есть парковка.
Ледовый дворец, Окей, другие магазины, кафе, банки, рестораны, салоны красоты, аптеки, пункты выдачи и т.д. - все в шаговой доступности в изобилии на пр. Большевиков.
Школа находится во дворе дома, детские сады, поликлиники, почта и другие социальные учреждения - в шаговой доступности.
Прямая продажа, один взрослый собственник, никто не прописан, в собственности более 25 лет, подходит под любой тип сделки.
Без обременений, мат.кап не использовался.
Показы по предварительной договоренности.
Агентов просьба не беспокоить!
Особенности
Другие однокомнатные квартиры
Последние добавленные апартаменты
1-комнатная квартира: Санкт-Петербург, улица Десантников, 12к1 (33.5 м²)
О нас говорят
Хорошая услуга «Личный помощник». За вами закрепляют менеджера, который подбирает для вас варианты, помогает с подписанием договора и проверкой квартиры. Константин оперативно отвечал на наши вопросы и подстраивался под возникающие в ходе поиска требования.
Ins Fairy
Нашел себе отличную квартиру в Мск на Локалс. В этот раз пользовался услугой Личный помощник; Каждый день мне присылали варианты и по моим ответам уточняли мои критерии. В итоге выбрали прямо то, что мне было надо!
Ilya Malov
Отличный сервис! Нужный вариант подобрали уже на следующий день после обращения. Документы с арендодателем я подписала в конце той же недели и сразу переехала. Квартира после ремонта, все новое, я — первый арендатор, до метро 15 минут пешком. Это потрясающе!
Maria Levkina
Поиски квартиры заняли ровно неделю, Андрей проверял все варианты и составлял подробное описание. Так же оказал помощь при подписании договора. И вот теперь, я снимаю квартиру без комиссии, от собственника, с хорошим ремонтом, в новом доме по приемлемой цене.
Dmitry Kovtun
Клиентоориентированность — на высшем уровне. И форма связи любая.. мне было удобно общаться через почту — не проблема: в будни и даже в выходные, и днем и ночью — постоянно на связи) В какой-то момент даже подумала, что личный помощник никогда не отдыхает))
Teresa Olehnovich
Услуга «Личный помощник» — это не только дешевле, чем платить деньги каким-то непонятным посредникам или риэлторам, но и гарантированная ежедневная консультация от грамотного специалиста. Одним словом, всё очень понравилось.
Алина Василевская
Моя оценка 5! Нашли с личным помощником то, что нужно!! Удобно и безопасно. Отличный, проверенный сайт! Спасибо, Локалс!
Еленка Потапова
Искал с помощью услуги «Личный помощник». Сервис справился с поставленной перед ним задачей — найти мне жильё в короткие сроки (дедлайн 1,5 недели). Спасибо!
Dimas
У меня только положительные впечатления остались. Мне присылал варианты каждый день, иногда даже дважды. Всегда оперативно реагировал на мои пожелания. В итоге, так и сняли одну из предложенных квартир и очень довольны.
Любовь












