1-к кв. Санкт-Петербург пос. Парголово, ул. Николая Рубцова, 5 (38.5 м²)
Продается уютная, теплая и светлая квартира недалеко от метро Парнас!
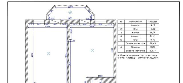
В квартире имеется просторная комната, большая кухня-гостиная, совмещенный санузел, гардеробная и лоджия.
В 2022 году в квартире проведен ремонт, заменены полы (ламинат), обои, плинтуса, установлен кухонный гарнитур, гардероб, проведен полный ремонт ванной комнаты. В июле 2025 года в квартире установлен кондиционер.
Данная квартира отличный вариант для молодой семьи! Рядом расположены детский сад и школа. В 10 минутах ходьбы новая поликлиника для взрослых и детей с травмпунктом, женской консультацией и отделением скорой медицинской помощи.
От дома до метро 12 минут пешком и 5 минут на автобусе.
Прямо в доме расположены Магнит, ресторан Мама Рома, Цех85, пвз Озон и ВБ, цветочный магазин, стоматология и т. д.
Еще одно преимущество данной квартиры - вид из окна на дорогу, а не в окна дома напротив.
Для комфортного проживания в квартире останется вся встроенная техника и частично мебель.
В кухне-гостиной останется кухонный гарнитур со встроенной техникой (духовой шкаф, плита, вытяжка, посуда моечная машина), 2 кухонных стула.
Коридор, Санузел и гардеробная остаются новому владельцу в том же виде, что и на фото!
В комнате останется только кондиционер.
Чистая сделка, 1 собственник (27 лет).
Риелторов прошу не беспокоить.
Особенности
Другие однокомнатные квартиры
Последние добавленные апартаменты
Квартира-студия: Санкт-Петербург, Большой Сампсониевский проспект, 74к2 (16 м²)
1-комнатная квартира: Санкт-Петербург, Комендантский проспект, 59к2 (38 м²)
О нас говорят
Хорошая услуга «Личный помощник». За вами закрепляют менеджера, который подбирает для вас варианты, помогает с подписанием договора и проверкой квартиры. Константин оперативно отвечал на наши вопросы и подстраивался под возникающие в ходе поиска требования.
Ins Fairy
Нашел себе отличную квартиру в Мск на Локалс. В этот раз пользовался услугой Личный помощник; Каждый день мне присылали варианты и по моим ответам уточняли мои критерии. В итоге выбрали прямо то, что мне было надо!
Ilya Malov
Отличный сервис! Нужный вариант подобрали уже на следующий день после обращения. Документы с арендодателем я подписала в конце той же недели и сразу переехала. Квартира после ремонта, все новое, я — первый арендатор, до метро 15 минут пешком. Это потрясающе!
Maria Levkina
Поиски квартиры заняли ровно неделю, Андрей проверял все варианты и составлял подробное описание. Так же оказал помощь при подписании договора. И вот теперь, я снимаю квартиру без комиссии, от собственника, с хорошим ремонтом, в новом доме по приемлемой цене.
Dmitry Kovtun
Клиентоориентированность — на высшем уровне. И форма связи любая.. мне было удобно общаться через почту — не проблема: в будни и даже в выходные, и днем и ночью — постоянно на связи) В какой-то момент даже подумала, что личный помощник никогда не отдыхает))
Teresa Olehnovich
Услуга «Личный помощник» — это не только дешевле, чем платить деньги каким-то непонятным посредникам или риэлторам, но и гарантированная ежедневная консультация от грамотного специалиста. Одним словом, всё очень понравилось.
Алина Василевская
Моя оценка 5! Нашли с личным помощником то, что нужно!! Удобно и безопасно. Отличный, проверенный сайт! Спасибо, Локалс!
Еленка Потапова
Искал с помощью услуги «Личный помощник». Сервис справился с поставленной перед ним задачей — найти мне жильё в короткие сроки (дедлайн 1,5 недели). Спасибо!
Dimas
У меня только положительные впечатления остались. Мне присылал варианты каждый день, иногда даже дважды. Всегда оперативно реагировал на мои пожелания. В итоге, так и сняли одну из предложенных квартир и очень довольны.
Любовь












