1-к кв. Санкт-Петербург Пискаревский просп., 1 (45.4 м²)
Квартира в собственности более 5 лет
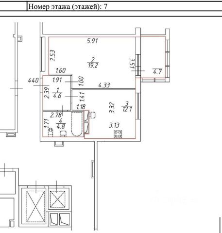
метраж: 40.7
дополнительно балкон 4.7
общая 45.4
Оконные блоки - деревянные (материал - сосна, стеклопакет с микровентиляцией, российского производства). Количество камер - 2. Остекление балконов/
- витражное холодное однослойное.
Автономные дымовые пожарные извещатели и тепловые датчики.
Стальные панельные радиаторы.
Лифты фирмы Schindler, по 2 шт. в каждом подьезде.
Система очистки горячей и холодной воды
Благоустроенный внутренний двор, продуманное озеленения двора.
Умеренная квартплата
Охрана .
Детские площадки.
Выполнены стояки холодного и горячего водопровода с запорным краном и прибором учета без разводок к приборам. Выполнены стояки канализации без разводок к приборам.
Квартира без ремонта.
На фото, варианты возможных планировок, предварительно согласованы. (без переноса мокрых точек).
Готовы сразу выйти на сделку.
Нет обременений.
На сделке готовы присутствовать лично. (не по доверенности)
Просьба агентов не беспокоить.
Не звоните. (телефон не работает на прием звонков)
На все вопросы ответим через приложение Циан.
Все документы на руках.
пишите.
Особенности
Другие однокомнатные квартиры
1-комнатная квартира: Санкт-Петербург, Ультрамариновая улица, 8 (47 м²)
1-комнатная квартира: Санкт-Петербург, Заставская улица, 46к1 (36.1 м²)
Последние добавленные апартаменты
1-комнатная квартира: Санкт-Петербург, Гражданский проспект, 130к1 (34 м²)
3-комнатная квартира: Санкт-Петербург, Светлановский проспект, 70к1 (88 м²)
О нас говорят
Хорошая услуга «Личный помощник». За вами закрепляют менеджера, который подбирает для вас варианты, помогает с подписанием договора и проверкой квартиры. Константин оперативно отвечал на наши вопросы и подстраивался под возникающие в ходе поиска требования.
Ins Fairy
Нашел себе отличную квартиру в Мск на Локалс. В этот раз пользовался услугой Личный помощник; Каждый день мне присылали варианты и по моим ответам уточняли мои критерии. В итоге выбрали прямо то, что мне было надо!
Ilya Malov
Отличный сервис! Нужный вариант подобрали уже на следующий день после обращения. Документы с арендодателем я подписала в конце той же недели и сразу переехала. Квартира после ремонта, все новое, я — первый арендатор, до метро 15 минут пешком. Это потрясающе!
Maria Levkina
Поиски квартиры заняли ровно неделю, Андрей проверял все варианты и составлял подробное описание. Так же оказал помощь при подписании договора. И вот теперь, я снимаю квартиру без комиссии, от собственника, с хорошим ремонтом, в новом доме по приемлемой цене.
Dmitry Kovtun
Клиентоориентированность — на высшем уровне. И форма связи любая.. мне было удобно общаться через почту — не проблема: в будни и даже в выходные, и днем и ночью — постоянно на связи) В какой-то момент даже подумала, что личный помощник никогда не отдыхает))
Teresa Olehnovich
Услуга «Личный помощник» — это не только дешевле, чем платить деньги каким-то непонятным посредникам или риэлторам, но и гарантированная ежедневная консультация от грамотного специалиста. Одним словом, всё очень понравилось.
Алина Василевская
Моя оценка 5! Нашли с личным помощником то, что нужно!! Удобно и безопасно. Отличный, проверенный сайт! Спасибо, Локалс!
Еленка Потапова
Искал с помощью услуги «Личный помощник». Сервис справился с поставленной перед ним задачей — найти мне жильё в короткие сроки (дедлайн 1,5 недели). Спасибо!
Dimas
У меня только положительные впечатления остались. Мне присылал варианты каждый день, иногда даже дважды. Всегда оперативно реагировал на мои пожелания. В итоге, так и сняли одну из предложенных квартир и очень довольны.
Любовь












