
























1-к кв. Санкт-Петербург Кременчугская ул., 17к3 (53.9 м²)
Продается просторная 2 евро комнатная квартира в историческом центре города в ЖК "Царская Столица"!
Дом кирпично-монолитный. Застройщик "Эталон".
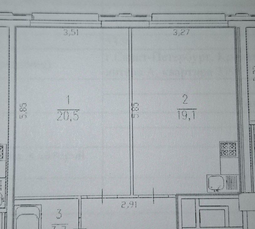
Общая площадь — 53,9 кв. м, спальня — 20,5 кв. м, кухня-гостиная — 19,1 кв. м. Квартира расположена на 1-м этаже 11-этажного дома, построенного в 2016 году. Высота потолков — 2.75 метра.
Квартира отличается удачной планировкой с изолированными помещениями, что обеспечивает комфортное проживание. В зимний период в помещениях поддерживается комфортная температура благодаря хорошему теплосбережению здания.
Объект находится в самом сердце Санкт-Петербурга с развитой инфраструктурой:
- Метро пл. Восстания, пл. Александра Невского, Московский вокзал, Невский проспект в пешей доступности (15-20 минут)
- В шаговой доступности расположены детские сады, школы, аптеки, супермаркеты и другие объекты повседневного спроса.
- На территории комплекса ведется видеонаблюдение, круглосуточная служба консьержа
- Двор закрыт для автомобилей
- Детские и спортивные площадки
- Многоуровневый охраняемый паркинг в 2х минутах ходьбы
Также есть возможность приобрести за отдельную стоимость 2 машиноместа в паркинге рядом с домом.
Один взрослый собственник, без обременений, перепланировок нет.
Звоните, с удовольствием покажу и отвечу на интересующие вопросы!
Особенности
Другие однокомнатные квартиры
1-комнатная квартира: Санкт-Петербург, Черниговская улица, 11к1 (35.4 м²)
1-комнатная квартира: Санкт-Петербург, Черниговская улица, 13к2 (40 м²)
Последние добавленные апартаменты
1-к кв. Санкт-Петербург пос. Парголово, ул. Федора Абрамова, 15 (40.0 м²)
Студия Санкт-Петербург, Санкт-Петербург, Петергоф ул. Парковая, 20к3с4 (25.0 м²)
О нас говорят
Хорошая услуга «Личный помощник». За вами закрепляют менеджера, который подбирает для вас варианты, помогает с подписанием договора и проверкой квартиры. Константин оперативно отвечал на наши вопросы и подстраивался под возникающие в ходе поиска требования.
Ins Fairy
Нашел себе отличную квартиру в Мск на Локалс. В этот раз пользовался услугой Личный помощник; Каждый день мне присылали варианты и по моим ответам уточняли мои критерии. В итоге выбрали прямо то, что мне было надо!
Ilya Malov
Отличный сервис! Нужный вариант подобрали уже на следующий день после обращения. Документы с арендодателем я подписала в конце той же недели и сразу переехала. Квартира после ремонта, все новое, я — первый арендатор, до метро 15 минут пешком. Это потрясающе!
Maria Levkina
Поиски квартиры заняли ровно неделю, Андрей проверял все варианты и составлял подробное описание. Так же оказал помощь при подписании договора. И вот теперь, я снимаю квартиру без комиссии, от собственника, с хорошим ремонтом, в новом доме по приемлемой цене.
Dmitry Kovtun
Клиентоориентированность — на высшем уровне. И форма связи любая.. мне было удобно общаться через почту — не проблема: в будни и даже в выходные, и днем и ночью — постоянно на связи) В какой-то момент даже подумала, что личный помощник никогда не отдыхает))
Teresa Olehnovich
Услуга «Личный помощник» — это не только дешевле, чем платить деньги каким-то непонятным посредникам или риэлторам, но и гарантированная ежедневная консультация от грамотного специалиста. Одним словом, всё очень понравилось.
Алина Василевская
Моя оценка 5! Нашли с личным помощником то, что нужно!! Удобно и безопасно. Отличный, проверенный сайт! Спасибо, Локалс!
Еленка Потапова
Искал с помощью услуги «Личный помощник». Сервис справился с поставленной перед ним задачей — найти мне жильё в короткие сроки (дедлайн 1,5 недели). Спасибо!
Dimas
У меня только положительные впечатления остались. Мне присылал варианты каждый день, иногда даже дважды. Всегда оперативно реагировал на мои пожелания. В итоге, так и сняли одну из предложенных квартир и очень довольны.
Любовь












