1-к кв. Санкт-Петербург Дальневосточный просп., 12к2 (35.8 м²)
Продаётся отличная светлая однокомнатная квартира в жилом комплексе Legenda Дальневосточного. Удобное транспортное сообщение: ближайшие станции метро — Новочеркасская и проспект Большевиков, до которых 5 минут на транспорте. Рядом трамвайные, автобусные и троллейбусные остановки.
Во дворе комплекса расположены все необходимые магазины, кофейни, пекарня, а также пункты выдачи популярных служб (Ozon, Wildberries, СДЭК) на 1-м и 2-м этажах корпусов. Напротив дома — ресторан Токио-сити. В пешей доступности детские сады, школы и прочая социальная инфраструктура.
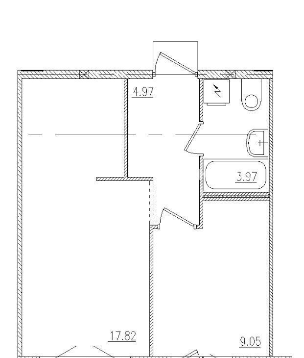
Квартира имеет функциональную планировку: кухня совмещена с гостиной, просторное окно выходит на улицу, отдельная спальня с выходом на балкон, санузел совмещённый. В квартире сделан ремонт от застройщика: по всей площади — натяжные потолки, на полу — ламинат и керамогранит. Есть системы хранения в прихожей и спальне.
Комфортное проживание обеспечивают подземный паркинг с лифтовым спуском и наземный парковочный комплекс за шлагбаумом для жильцов и гостей (въезд по домофону). Круглосуточная охрана и видеонаблюдение. Установлена современная система умный дом с мобильным приложением: вы можете просматривать камеры двора и открывать дверь, не подходя к домофону. Вход в комплекс через пост охраны.
Во дворе — благоустроенная зелёная территория с декоративными растениями, газонами, искусственными насыпями. Для детей — площадки, лабиринт и зоны отдыха. Для любителей спорта — поле для футбола, баскетбола и волейбола. Двор закрыт для проезда машин.
В комплексе работает управляющая компания с диспетчерской и бухгалтерией на первом этаже корпуса.
Квартира в собственности более 5 лет, один взрослый собственник. Помощь агентов не требуется — есть свой риэлтор. Один взрослый собственник.
Особенности
Последние добавленные апартаменты
1-комнатная квартира: Санкт-Петербург, проспект Луначарского, 11к1 (46.5 м²)
2-комнатная квартира: Санкт-Петербург, проспект Энергетиков, 9к3 (59 м²)
О нас говорят
Хорошая услуга «Личный помощник». За вами закрепляют менеджера, который подбирает для вас варианты, помогает с подписанием договора и проверкой квартиры. Константин оперативно отвечал на наши вопросы и подстраивался под возникающие в ходе поиска требования.
Ins Fairy
Нашел себе отличную квартиру в Мск на Локалс. В этот раз пользовался услугой Личный помощник; Каждый день мне присылали варианты и по моим ответам уточняли мои критерии. В итоге выбрали прямо то, что мне было надо!
Ilya Malov
Отличный сервис! Нужный вариант подобрали уже на следующий день после обращения. Документы с арендодателем я подписала в конце той же недели и сразу переехала. Квартира после ремонта, все новое, я — первый арендатор, до метро 15 минут пешком. Это потрясающе!
Maria Levkina
Поиски квартиры заняли ровно неделю, Андрей проверял все варианты и составлял подробное описание. Так же оказал помощь при подписании договора. И вот теперь, я снимаю квартиру без комиссии, от собственника, с хорошим ремонтом, в новом доме по приемлемой цене.
Dmitry Kovtun
Клиентоориентированность — на высшем уровне. И форма связи любая.. мне было удобно общаться через почту — не проблема: в будни и даже в выходные, и днем и ночью — постоянно на связи) В какой-то момент даже подумала, что личный помощник никогда не отдыхает))
Teresa Olehnovich
Услуга «Личный помощник» — это не только дешевле, чем платить деньги каким-то непонятным посредникам или риэлторам, но и гарантированная ежедневная консультация от грамотного специалиста. Одним словом, всё очень понравилось.
Алина Василевская
Моя оценка 5! Нашли с личным помощником то, что нужно!! Удобно и безопасно. Отличный, проверенный сайт! Спасибо, Локалс!
Еленка Потапова
Искал с помощью услуги «Личный помощник». Сервис справился с поставленной перед ним задачей — найти мне жильё в короткие сроки (дедлайн 1,5 недели). Спасибо!
Dimas
У меня только положительные впечатления остались. Мне присылал варианты каждый день, иногда даже дважды. Всегда оперативно реагировал на мои пожелания. В итоге, так и сняли одну из предложенных квартир и очень довольны.
Любовь












