



























1-к кв. Санкт-Петербург Богатырский просп., 2А (41.4 м²)
Агентов убедительная просьба не беспокоить, уже подписан договор со своим агентом.
В прямой продаже шикарная, просторная, светлая квартира в ЖК "Приморский Квартал". Ближайший корпус к метро. Кирпично-монолитный дом. 3 лифта (2 грузовых и пассажирский). Из парадной доступен выход как во двор, так и на Богатырский проспект. Зеленый двор с ландшафтным дизайном, прогулочными зонами, парковками для велосипедного транспорта, подземными и надземными паркингами, внутренняя служба охраны.
О КВАРТИРЕ:
- 8-ой этаж
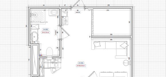
- общая площадь 41,3 кв.м ;
- застекленная утепленная лоджия - 6,04 кв. м;
- кухня-гостиная 24 кв. м;
- комната 8 кв. м ;
- совмещенный санузел 4,34 кв. м;
- гардеробная 4 кв.м ;
- прихожая 4 кв. м;
Окна выходят в тихий двор
****
Квартира с дизайнерским ремонтом, полностью соответствует фото. Первая продажа, без долгов и обременений. 1 взрослый собственник, никто не прописан. Полная сумма в договоре
Полностью укомплектована дорогой мебелью и техникой. Встроенная гардеробная с системами хранения. Подоконники из массива дуба. Коллекторная система разводки водоснабжения с системой фильтрации. Функциональная кухня под потолок со столешницей из кварцевого агломерата. Потолки и стены под покраску. Ремонт делался для себя.
На территории школа с бассейнами, детские сады, площадки, кофейни, салоны красоты, магазины, банки.
Пешая доступность до метро Пионерская 5 минут. Напротив большой Удельный парк и парк-сквер с местом дуэли Пушкина, ТРЦ Голливуд, Сити Молл, большой спортивный центр "ГАЗПРОМ"
Звоните, с радостью отвечу на ваши вопросы!
Особенности
Другие однокомнатные квартиры
Последние добавленные апартаменты
2-комнатная квартира: Санкт-Петербург, 13-я линия Васильевского острова, 58-60 (49 м²)
1-комнатная квартира: Санкт-Петербург, улица Кораблестроителей, 44к2 (36 м²)
О нас говорят
Хорошая услуга «Личный помощник». За вами закрепляют менеджера, который подбирает для вас варианты, помогает с подписанием договора и проверкой квартиры. Константин оперативно отвечал на наши вопросы и подстраивался под возникающие в ходе поиска требования.
Ins Fairy
Нашел себе отличную квартиру в Мск на Локалс. В этот раз пользовался услугой Личный помощник; Каждый день мне присылали варианты и по моим ответам уточняли мои критерии. В итоге выбрали прямо то, что мне было надо!
Ilya Malov
Отличный сервис! Нужный вариант подобрали уже на следующий день после обращения. Документы с арендодателем я подписала в конце той же недели и сразу переехала. Квартира после ремонта, все новое, я — первый арендатор, до метро 15 минут пешком. Это потрясающе!
Maria Levkina
Поиски квартиры заняли ровно неделю, Андрей проверял все варианты и составлял подробное описание. Так же оказал помощь при подписании договора. И вот теперь, я снимаю квартиру без комиссии, от собственника, с хорошим ремонтом, в новом доме по приемлемой цене.
Dmitry Kovtun
Клиентоориентированность — на высшем уровне. И форма связи любая.. мне было удобно общаться через почту — не проблема: в будни и даже в выходные, и днем и ночью — постоянно на связи) В какой-то момент даже подумала, что личный помощник никогда не отдыхает))
Teresa Olehnovich
Услуга «Личный помощник» — это не только дешевле, чем платить деньги каким-то непонятным посредникам или риэлторам, но и гарантированная ежедневная консультация от грамотного специалиста. Одним словом, всё очень понравилось.
Алина Василевская
Моя оценка 5! Нашли с личным помощником то, что нужно!! Удобно и безопасно. Отличный, проверенный сайт! Спасибо, Локалс!
Еленка Потапова
Искал с помощью услуги «Личный помощник». Сервис справился с поставленной перед ним задачей — найти мне жильё в короткие сроки (дедлайн 1,5 недели). Спасибо!
Dimas
У меня только положительные впечатления остались. Мне присылал варианты каждый день, иногда даже дважды. Всегда оперативно реагировал на мои пожелания. В итоге, так и сняли одну из предложенных квартир и очень довольны.
Любовь












